Создание несъемной опалубки из рубероида
1. В качестве опалубки для буронабивного фундамента в данном примере будем использовать самый экономичный вариант, а именно рубероид.
Подготавливаем кусок рубероида нужной нам длины. В нашем примере нам нужен кусок длиной 2м (1,7 м под землей – 0,3м уширение без рубероида + 0,3м над землей + 0,3м запас для обрезки по уровню). Скручиваем рубероид нужного нам диаметра (25см) в виде трубы. Для данной задачи лучше использовать некий шаблон, на который будем накручивать рубероид. На примере у нас металлическая труба. Шаблон можно сделать самостоятельно, проявив смекалку. Вариантов много.
После того как рубероид накрутили (толщина в 2 слоя) необходимо зафиксировать полученную рубашку из рубероида от раскручивания. Здесь нам поможет широкий упаковочный скотч. Скрепим в 4 местах (можно и больше, главное чтобы надежно). Если у вас рубероид с пылевидной посыпкой, то скотч к нему не пристанет. Есть вариант обмотать гильзу из рубероида сначала стретч-пленкой а затем уже скотчем. Это также придаст большую жесткость вашей опалубке.

2. Крепим мусорный пакет к низу опалубки из рубероида. Для чего это нужно. Если у вас высокие грунтовые воды либо просто стоит вода от дождей, то лить бетон в воду не рекомендуется. Также пакет будет являться неким барьером между грунтовой средой и бетоном. По технологии ТИСЭ пакет не используется. Цементное молочко попадает напрямую в грунт образуя грунтобетон, что является дополнительным усилением для опоры (со слов Яковлева – автора технологии ТИСЭ).
Не стоит путать мусорный мешок для помойного ведра с мусорным пакетом 120л, в который на субботниках собирают мусор. Он большой и достаточно плотный. Вот его и будем использовать. Крепим его к низу нашей опалубки скотчем. Опалубка из рубероида у нас подвижная, поэтому постарайтесь использовать скотч, чтобы он действительно крепко зафиксировал пакет (усиленно обмотать скотчем край пакета к рубашке из рубероида). www.gvozdem.ru

3
Ту часть пакета, которая у нас будет использоваться под уширение можно аккуратно спрятать в трубу опалубки. Важно! Продумайте размещение пакета, чтобы во время заполнения бетона не образовалось складок, которые могут сделать наше уширение не цельной конструкцией
Виды ростверков
Ростверк является объединяющей сваи конструкцией, основное предназначение которой равномерно распределить нагрузки от дома на фундаментные опоры. При этом необходимо учитывать, что сами сваи выставляются в процессе сооружения строго по вертикали, ростверк по горизонтали.
В строительстве домов на буронабивных сваях используются разные ростверковые конструкции, которые отличаются друг от друга материалами, а также местом расположения элемента. По материалам разделение такое:
Монолитный ростверк. Его заливают из бетонного раствора с возведением опалубки и укладки в нее армирующего каркаса.

- Сборный. Для этого обычно используют или металлические профили, или деревянные брусы. Вариант – сложный в производстве монтажных работ и низкой прочности соединения элементов фундамента.
- Сборно-монолитный. В частном домостроении не используется, потому что связан со сложностью изготовления элементов конструкции, которые соединяются между собой при помощи замков, шпонок и других деталей.
По способу расположения ростверка эта разновидность фундамента делится на два типа:
- с висячим ростверком;
- с заглубленным.
В первом случае горизонтальная конструкция не касается земли, во втором она частично погружена в грунт.
Устройство буронабивных свай
Буронабивные сваи по технологии ТИСЭ
Фундамент буронабивной ленточный
Фундаментная плита

Бетонный портал г. Перми — динамично развивающаяся сеть растворо-бетонных узлов (РБУ, БРУ) или бетонных заводов в Перми и Пермском крае, это слаженный логистический центр доставки товарного бетона для строительных нужд малого и среднего бизнеса вовремя и в срок. Качество Продукции гарантировано ГОСТом
Цель нашей работы — укрепление и расширение сбыта готовой бетонной продукции на объекты Пермского края по оптимальным ценам. Помочь заказчикам с выбором правильной марки бетона и не остаться обманутым. Мы на стороне Заказчиков. Наша миссия — поддерживать положительные отзывы от заказчиков.
Четкая система организации процессов производства и доставки позволяет выполнять самые сложные задачи в поставках бетона и других строительных материалов на максимально выгодных для заказчика условиях. Мы отчетливо представляем нужды потребителей и готовы решать их в полном объёме.
Искренне надеемся на успешное и долгосрочное сотрудничество! Звоните.
Плюсы свайно-ростверкового фундамента
Тот или иной вид фундамента принимают на основании конструктивных расчетов, где определяют максимальную нагрузку на основание, размер всех составляющих конструкцию элементов. Но все же и перед инженерами часто встает вопрос, какую конструкцию принять, опираясь на результаты исследования. Почему отдают предпочтение свайно-ростверковому фундаменту:
- Высокая несущая способность опор позволяет использовать их под здания и сооружения любого размера. Они надежно и жестко входят в рыхлый грунт, достигая его твердых слоев. При колебаниях грунта в следствии сейсмической активности или сезонных перепадов температур и влажности, почва двигается, а свая остается неподвижной. Это исключает разрушение здания и нарушение целостности его несущего остова. Из-за этой особенности данный тип фундамента широко применяют в районах, где часто происходят землетрясения.
- Облегченные стальные сваи подходят для строительства небольших домов и хозяйственных сооружений.
- Разная длина опорных столбов позволяет устраивать ровное основание для возведения строений на холмистых и гористых местностях, достаточно правильно подобрать из длину и распределить по неровному участку. Этот прием используют при создании многоуровневых домов.
- Низкая стоимость материала и работы относительно ленточного фундамента.
- Сваи не боятся грунтовых вод: в глубоких пластах, где происходит опирание, их зачастую нет. Это показатель не принимается к расчетам фундамента.
- Пренебрегают и уровнем промерзания грунта в регионе или местности, поскольку нижние слои грунтового среза не подвергаются температурным колебаниям, а ростверк с землей не соприкасается. Определять уровень зимнего промерзания бессмысленно.
- Отсутствие контакта ростверка с землей обеспечивает сухость стен и снижают риск проникновения в дом грызунов.
- Небольшой срок монтажа и легкость установки;
- Ремонтопригодность составляющих фундамент элементов;
- Фундамент не требует подготовительных грунтовых работ, участок не нужно выравнивать, что снижает затраты на его обустройство.
- Сделать монтаж несущей конструкции еще дешевле можно, заменив труд наемных рабочих на свой. Изучив некоторые инструкции, каждых застройщик сможет без труда самостоятельно обустроить сваи и собрать ростверк.
Внушительный перечень достоинств конструкции располагает к ее выбору. Чтобы не делать поспешных выводов, стоит ознакомиться с обратной стороной медали.
Создаем арматурные каркасы для наших свай
Для данной задачи будем использовать арматуру с диаметром 10мм. Арматурный каркас можно изготавливать в 2 вариантах: с армированием уширения столба и без армирования уширения. Насколько нужно армирование уширения столба вопрос спорный и может быть решен только в результате точных проектных расчетов с учетом всех технических характеристик материалов, нагрузок и с учетом всех возможных факторов. Поэтому в данной статье пойдем по сложному пути и рассмотрим более надежный вариант армирования пятки столба.
План работ. Заготавливаем 4 прутка длиной где-то 2,4 м (1,65м в земле + 0,3м над землей + 0,3 для связи с ростверком + 0,1м для пятки столба). Для армирования уширения столба будем загибать концы арматуры, чтобы она имела вид буквы L. Длина загиба будет зависеть от диаметра пятки в том месте, где будет происходить ее армирование (3-5 см от низа уширения). В нашем случае длина загиба где-то около 10-13см. После того как прутки у нас готовы сшиваем их в арматурный каркас. Сварка здесь, разумеется, не подходит, поэтому связывать будем с помощью вязальной проволоки. При этом связь делаем не очень прочной, чтобы была возможность прокрутить арматуры по своей оси. Желательно сделать засечки на концах верха арматуры, чтобы был ориентир, на сколько крутить арматуру, чтобы она разместилась в нашем уширении под нужным углом.
Если вы решили делать арматурный каркас без армирования уширения, то в этом случае делаем все то же самое, что и выше, только связь арматур делаем жесткой (сваркой либо вязальной проволокой).

Буронабивные сваи: за и против
Если стройплощадка находится в зоне, где применение технологий, вызывающих малейшую вибрацию грунта – без буронабивных свай, как правило, не обойтись.
Однако технология их изготовления, хоть и отработана, но довольно трудоемка и требует точного соблюдения. Уровень профессиональной подготовки и опыт сотрудников, выполняющих эти работы должен быть соответствующий, так как этот процесс, в зависимости от состояния грунтов на участке имеет массу нюансов. Буронабивные сваи, фото:
В слабых, песчаных, пылеватых грунтах, на торфяниках и в некоторых других случаях поверхность буронабивных свай получается неровной. Такая поверхность более подвержена разрушительному воздействию влаги и силам пучения при промерзании почвы, чем гладкая поверхность готовых забивных свай. Смотрите так же:
- Как закрыть свайный фундамент
- Усиление свайного фундамента
Правила и последовательность расчетов
После того как было принято решение о сооружении фундаментной конструкции на сваях, застройщику необходимо приступить к выполнению расчетов, которые следует проводить в определенной последовательности:
- В первую очередь придется определить нагрузку, которая будет оказываться в процессе эксплуатации на фундаментную конструкцию. Для этого застройщику следует рассчитать не только массу несущих стен и перестенков, но и кровли, напольных покрытий, фасадной и внутренней облицовки, плит перекрытий и т. д.
- После этого определяется полезная нагрузка, которая будет оказываться на фундамент. В данном случае речь идет о бытовой технике, мебели, количестве людей, которые будут проживать в здании (в расчет принимается величина, колеблющаяся в диапазоне 150-200 кг/кв.м.).
- К полученной при расчетах сумме застройщик должен прибавить вес, который будет оказывать на все здание снег в зимнее время года. Для большинства регионов Российской Федерации используется величина 180 кг/кв.м.
- Все суммы нагрузок необходимо умножить на коэффициент запаса, величина которого составляет 1,1. В некоторых случаях целесообразно задействовать другой показатель – 1,2.
- Рассчитывается нагрузка, которая будет оказываться на одну сваю без ее проседания в грунт.
Если застройщик примет решение приобрести готовые опоры, то ему в обязательном порядке нужно узнать у продавца не только основные технические параметры, но и их способность выдерживать конкретный тип нагрузки.
Как рассчитать количество свай для фундамента
Правильный расчет количества используемых свай нуждается в предварительной геодезической разведке. Прежде всего, необходимо рассчитать уровень промерзания грунта в зимний период, учитывая, что данный показатель отличается в разных регионах. Для прочной установки сваи ее нижний конец должен находиться ниже этого уровня.
А также необходимо выяснить степень плотности слоев грунта. Чем выше плотность, тем меньшую глубину сваи следует закладывать на этапе проектирования. К примеру, для полускальных и крупноблочных пород она будет минимальной (но не меньше 0,5 метра), а для песчаных и глинистых грунтов придется углубляться по максимуму.
1. Вычисление потенциальной предельной нагрузки на сваи
Перед началом расчета количества свай для фундамента следует выяснить несущую способность отдельной сваи. Общий вид формулы выглядит следующим образом:
В этом случае W является искомой фактической несущей силой, Q – расчетное значение несущей силы, рассчитанное для отдельной сваи по материалу, размерам и характеристикам грунта; k – дополнительный «коэффициент надежности», расширяющий эксплуатационный запас фундамента.
2. Вычисление расчетной нагрузки на сваи
Далее нам необходимо найти параметр Q, без которого расчет свайного фундамента невозможен. Расчетная нагрузка определяется по формуле:
Где S равно площади поперечного сечения лопастей сваи, а Ro – это показатель грунтового сопротивления на глубине размещения лопастей. Сопротивление грунта можно брать из готовой таблицы:
Таблица 2
Что касается «коэффициента надежности» условного фундамента, его величина может варьироваться в пределах 1,2-1,7. Логично, что чем меньше коэффициент, тем ниже себестоимость фундамента на этапе проектирования, поскольку для достижения заданного значения несущей силы не потребуется использования большого количества свай. Чтобы уменьшить коэффициент следует провести качественный и достоверный анализ грунта на стройплощадке, привлекая специалистов.
3. Расчет нагрузки от конструкции здания
На завершающем этапе проектирования свайного фундамента проводится расчет количества свай. Для этого потребуется просуммировать все элементы конструкции здания: от капитальных стен и перекрытий, до стропильной системы и кровли. Провести точное вычисление всех компонентов довольно сложно, поэтому рекомендуем воспользоваться одним из специализированных калькуляторов. И также в калькулятор расчета вносятся эксплуатационные нагрузки, включающие предметы интерьера, мебель, бытовую технику и даже проживающих в доме людей.
4. Подсчет требуемого количества свай
Перед тем как рассчитать количество задействованных свай нам нужно получить на предыдущих этапах две величины: совокупную массу здания (M) и несущую способность сваи (W) умноженную на «коэффициент надежности». Значение несущей способности можно взять из Таблицы 1. Итак, если масса равна 58 тонн, а скорректированная несущая способность сваи СВС-108 равна 3,9 тонн, то:
Как показал пример расчета, для дома весом в 58 тонн потребуется 15 свай марки СВС-180. Следует отметить, что это значение приблизительно и не учитывает правила точного распределения свай согласно СНиП:
- Первые должны быть установлены в точках пересечения несущих конструкций;
- Остальные монтируются равномерно между обозначенными углами;
- Минимальное расстояние между отдельными сваями 3 метра;
5. Глубина установки свай и расстояние между ними
Базовое значение глубины установки сваи рассчитывается исходя из глубины промерзания грунта в конкретно регионе, плюс 25 сантиметров. И также перед тем как рассчитать свайный фундамент, необходимо выяснить:
- Уровень прочности сваи по материалу и конструкции;
- Несущую способность грунта;
- Провести расчет осадки свайного фундамента, со временем возникающей под нагрузкой здания;
- Дополнительные параметры (температурный режим в течение года, объем осадков, нагрузки от ветра и др.).
Изучение характеристик грунта
Несущая способность буронабивной сваи будет во многом зависеть от прочностных характеристик основания. В первую очередь стоит выяснить прочностные показатели грунтов на участке. Для этого пользуются двумя методами: ручным бурением или отрывкой шурфов. Грунт разрабатывается на глубину на 50 см больше, чем предполагаемая отметка фундамента.

Схема буронабивного фундамента
Перед тем, как рассчитать свайный фундамент рекомендуется ознакомиться с ГОСТ «Грунты. Классификация» приложение А. Там представлены основные определения, исходя из которых, тип грунта можно определить визуально.
Далее потребуется таблица с указанием прочности грунта в зависимости от его типа и консистенции. Все необходимые для расчета характеристики приведены на картинках ниже.

Глинистая почва в области подошвы сваи

Глинистая почва по длине сваи

Песчаный грунт

Крупнообломочные породы
Проверка сплошности бетона буронабивных свай
Реальная несущая способность бетонного фундамента соответствует проектной только если бетон сплошной, отсутствуют пустоты.
Это важно!
Визуальный контроль сплошности ствола невозможен. Проверка осуществляется двумя способами: с частичным разрушением бетона или без него.
В соответствии с международными стандартами при использовании первого способа частичному разрушению подвергаются 20 % свай, что неэкономично.
Основные технологии неразрушающего контроля:
- тестирование на поверхности (PET);
- межскважинный мониторинг (CHUM).
В первом случае на сваю поступают ударные импульсы, ультразвуковой датчик тестера фиксирует отраженные волны, прибор интерпретирует информацию графически. Преимущества этого метода – малые затраты и высокая скорость.
Во втором случае в стволы контрольных свай в процессе бетонирования вмуровывают по всей длине параллельно друг другу металлические трубки ультразвукового преобразователя. Для контроля трубки заполняют водой или (в зимнее время) антифризом. Жидкость обеспечивает акустический контакт. Контролируется сплошность бетона в пространстве между трубками. Точность измерений зависит о количества и материала трубок. Эта технология более энергоемкая, но обеспечивает высокий уровень детализации дефектов.
Неразрушающие технологии контроля экономичны, эффективны, практически не зависят от глубины погружения сваи (допустимая длина стержня – 100 метров), а также обеспечивают высокую скорость проверки (до 100 штук в день). Контроль может осуществлять один оператор.
Законченные объекты, которыми мы гордимся
г. Москва, мостовая опора
Фотоотчет по установке свай специалистами ООО «ПСК Основания и Фундаменты»
Подробнее
Тверь, Свиноводческий комплекс
Устройство буроинъекционных свай при строительстве свиноводческого комплекса
Подробнее
г. Жуковский, Московская область
Фотоотчет установки шпунтового ограждения при строительстве жилого дома
Подробнее
Фотоотчет установки ограждения котлована при строительстве многоэтажного дома в г. Мытищи
Подробнее
г. Москве, Берсеневская набережная
Фотоотчет монтажа буросекущихся свай при устройстве бетонной форшахты в Москве
Подробнее
г. Москва, Дмитровское шоссе
Фотоотчет устройства буронабивных свай при реконструкции транспортной развязки
Подробнее
Смотреть другие наши проекты
Наш экскаватор Hyundai R330LC c вибропогружателем OMS OVR 80 S на объекте
Вибропогружение труб ООО «ПСК Основания и Фундаменты»
Работы по извлечению труб вибропогружателем специалистами ООО «ПСК Основания и Фундаменты»
Вибропогружение труб ООО «ПСК Основания и Фундаменты»
Вибропогружение труб ООО «ПСК Основания и Фундаменты»
Вибропогружение труб ООО «ПСК Основания и Фундаменты»
Укладка бетона

Схематическое отображение составляющих элементов буронабивного основания После того как процесс бурения завершен, сооружена опалубка и каркас, можно выполнять заливку бетонной смеси. Бетон укладывается слоями с поэтапным уплотнением – штыковкой. Для этого подходит только «тяжелый» раствор. Этот термин подразумевает использование следующих «тяжелых» заполнителей:
- кварцевый песок;
- щебень/гравий (прочных пород).
Бетонирование каждой буронабивной сваи выполняется непрерывно. Это означает, что временной промежуток между укладкой каждого слоя не должен превышать 1 часа. Процесс полного схватывания бетона завершается по истечении 28 дней, после чего можно нагружать полученную фундаментную конструкцию.
Особенности забивного фундамента на ЖБИ-сваях
Железобетонные сваи бывают двух видов – цельными и полыми. Полые изготавливаются при помощи центрифуги, имеют чаще всего круглую форму и используются в строительстве одноэтажных зданий. Не подходят для возведения фундамента в сейсмически активных зонах, торфяных почвах. В отличие от цельных, полые свайные столбы имеют меньший вес, что значительно упрощает работу с ними.

ЖБИ-сваи.
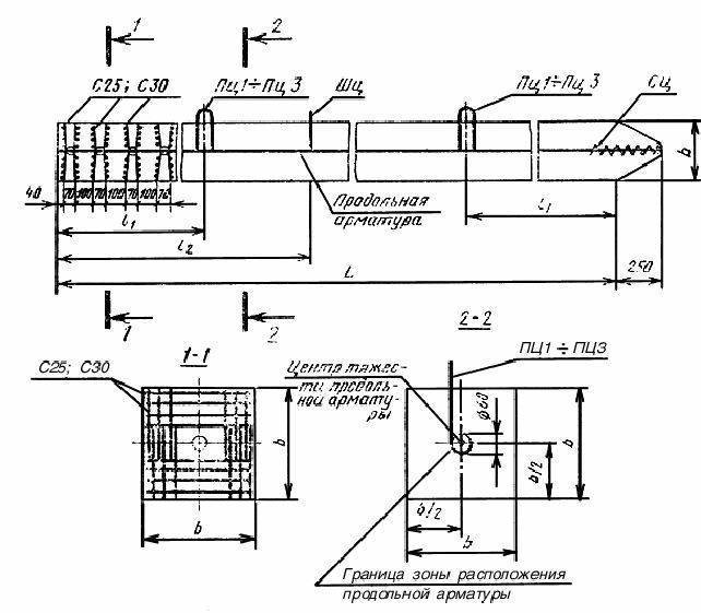
Маркировка свай из железобетона в соответствии с ГОСТом
- «С» – столбы с поперечным армированием.
- «СК» – сваи круглые, имеющие полость.
- «СП» – столбы квадратной конфигурации, имеют круглую полость, за счет чего снижается их вес. Армируются как напрягаемым, так и обычным методом.
- «СГ» – прямоугольные сваи из тяжелого бетона. За счет увеличения площади сечения, отличаются большей несущей способностью, чем квадратные.
- «СЦ» – сваи с квадратным сечением без поперечного армирования.
- «1СД» – колонновидные сваи.
- «2СД» – колонновидные сваи, предназначенные для установки по средним осям.
- «ССН», «ССВ» – составные свайные столбы.
Особенности армирования
Для изготовления используется гидротехнический бетон и стальная арматура. Армирование может быть как обыкновенным или натяжным.
Особенность армирования с помощью предварительно напряженной арматуры в том, что металлический элемент, прежде чем бетонировать, растягивают с помощью домкрата или другого приспособления.

Расположение арматуры внутри сваи.
После застывания бетона, напряжение с металлического элемента снимается – прекращается подача тока или ослабляется фиксация домкратом. Такой способ увеличивает прочность изделия.
В зависимости от положения, сваи армируются двумя способами.
- Продольное армирование. Представляет собой основную рабочую арматуру.
- Поперечное армирование. Его цель – объединить продольную арматуру и принимать ударную нагрузку в процессе забивания сваи.
Применение забивного ЖБИ фундамента
Железобетонный свайный фундамент – наиболее распространенный тип фундаментов. Он используется для:
- строительства частных домов;
- строительства производственных зданий и сооружений;
- строительства многоэтажных и малоэтажных построек;
- для построек из кирпича, древесины, газобетона, пеноблоков и других материалов;
- как основание под каркасные дома, гаражи, беседки и другие хозяйственные постройки.
Особенности ЖБИ-фундамента
- Бетонные сваи обладают высокой прочностью и выносливостью. Согласно ГОСТу, прочность бетонного столба должна быть не меньше 200 кгс/см2. Минимальный вес, который может выдержать свая – 125 тонн.
- Бетон склонен к разрушению в неблагоприятной среде – почвах с высоким содержанием хлоридов, кальция, сульфатов и других минеральных солей и щелочей.
- Большой вес ЖБИ-свай затрудняет транспортировку и установку.
- Использование для фундамента того или иного типа свай зависит, в первую очередь, от особенностей почвы.
Подбор типа ЖБИ-основания под почву
- Свайные столбы напряженного армирования применяются для установки в грунтах, обладающих средней плотностью.
- Сваи обычного армирования – для монтажа на песчаных и глиняных почвах.
- Свайные столбы продольного ненапряженного армирования – на грунтах склонных к сжиманию, не имеющих глины и валунов.
- Колонновидные сваи применяются на глиняных и средней плотности грунтах.
- Круглые сваи полого сечения – для одноэтажных зданий на устойчивых почвах.
Железобетонные сваи, залитые на месте: Характеристики
Технические параметры железобетонных свай варьируются в широком диапазоне, что позволяет выбрать оптимальный вариант для конкретного проекта. Характеристики железобетонных конструкций зависят от класса используемого бетона, чем выше класс бетона, тем прочнее будет конструкция.
Одним из ключевых параметров является прочность сваи на сжатие, этот параметр определяет надежность сваи, что влияет как на процесс погружения конструкции, так и на прочностные параметры готового фундамента. Этот параметр зависит от класса бетона и конструкции каркаса.
При выборе железобетонных свай следует также учитывать следующие особенности:
- Морозостойкость, которая обозначается как F.
- Влагостойкость ворса W.
- Вес сваи (строительная единица).
Размеры железобетонных свай обеспечивают возможность создания высокопрочного фундамента при любых условиях строительства.
Поможем с расчётами и работами по свайному фундаменту
Мы опытная компания по погружению железобетонных свай и шпунтов, с большим парком техники и большим количеством сданных объектов. Поможем Вам с возведением свайного фундамента любой сложности, примеры наших работ на фото. Видео наших работ. Ждём Вашего обращения по заявке:
Цены на услуги
…
Подробнее
Расчёт нагрузки на фундамент
Неприятно наблюдать, как в недавно построенном доме появляются на стенах трещины. Самое печальное в этой ситуации, что исправить практически ничего изменить нельзя,…
Подробнее
Смета на забивку свай — техкарта на забивку свай
Существуют 2 типа сметы — коммерческая смета смета Данная смета составляется с учетом спроса и предложений, загруженности оборудования и специфики конъюнктуры. Наша…
Подробнее
Расчёт нагрузки на фундамент
Ознакомьтесь с материалом о том зачем это делается, а также как грамотно и верно выполнять расчёт нагрузки на фундамент.
Плюсы и минусы свайно-ростверкового фундамента
Конструкция свайно-ростверкового фундамента представлена свайными опорами, объединёнными вверху плитами или балками…







































