Как сделать систему обогрева своими руками?
Подготовка поверхности
Сначала нужно подготовить к монтажным работам поверхность основания и слив. Для этого:
Между стен фундамента удаляют грунт, утрамбовывают поверхность.
Перед этим закладывают канализационные трубы для сточных вод.
Засыпанный слой песка и щебня высотой 15 см хорошо утрамбовывают, а следом закладывают утепление из керамзита толщиной 150–200 мм.
К водостоку делают небольшой уклон.
После выполнения этих действий проверяют ровность и угол наклона поверхности
Важно соблюсти равномерность уклона, чтобы не получить застой воды в отдельных углублениях.. Совет
Использовать для укладки основания другие смеси (не песок или щебень) не рекомендуется
Другие обсыпные материалы могут дать усадку со временем и нарушить целостность всей системы прогрева.
Совет
Использовать для укладки основания другие смеси (не песок или щебень) не рекомендуется. Другие обсыпные материалы могут дать усадку со временем и нарушить целостность всей системы прогрева.
Необходимые материалы и инструменты
Важно запастись достаточным количеством теплозащитного материала. На выбор:
- войлок;
- стекловата;
- керамзит;
- пенопласт.
Если лаги деревянные, то утеплитель кладётся между ними и покрывается слоем гидроизоляции, например, плёнкой. Пароизоляция делается из рубероида, пергамина или плёнки толщиной 0,2 мм. Дополнительно приобретают водоотталкивающие и антисептические средства.
Понадобятся:
- рубероид;
- жёсткий и влагонепроницаемый утеплитель в виде пеноплекса;
- арматурная сетка;
- демпферная лента;
- хомуты для крепления сетки;
- маячки;
- саморезы;
- молоток и другие инструменты для монтажа.
Способы монтажа нагревательного контура
На бетонной стяжке удаляются все неровности, затем производится гидроизоляция путём заливки на поверхность горячего битума. Поверх кладутся листы рубероида внахлёст на 10 см. Сверху снова заливается битум, кладётся очередной слой рубероида. Утеплитель укладывается в толщину 5 см, соблюдая небольшой уклон. К арматурной сетке крепится труба, по периметру проклеивается демпферная лента
Внимание
Демпферная лента должна хорошо прилегать к основанию по всему его периметру.
Все стыки стен и пола должны быть заклеены, чтобы избежать потери тепла и предотвратить температурные расширения. Нагревательный контур укладывается по инструкции, крепится к сетке пластмассовыми хомутами
После подсоединения системы и оценки её работоспособности подсоединяют систему. При наличии давления в контуре дополнительно осуществляют заливку. После её застывания можно стелить напольное покрытие.
Плиты из полистирола требуют аналогичного подхода к монтажу. Основание также хорошо подготавливают, вычищают от мусора, выравнивают, устанавливают поверх гидроизоляцию. При этом рубероид кладётся в 2 слоя. По периметру обкладывается демпферная лента, размещаются теплоизоляционные маты с бобышками, имеющими светоотражающее основание. Монтаж производится по схеме в пазы между бобышками. При подключении проверяется работа системы и отсутствие в ней течи. По установленным маячкам заливают стяжку. Не забывают при этом выполнять небольшой уклон по направлению к стоку. После затвердевания бетона на поверхность стелют покрытие.
Деревянный пол требует особого подхода к монтажу. Трубы прокладываются прямо по поверхности чернового покрытия. Затем основание счищают от грязи, укладывают полиэтиленовую плёнку. Она будет служить надёжной гидроизоляцией путём вмонтирования в демпферную ленту. На саморезы фиксируют лаги, располагая их поперёк основных досок. Затем приступают к теплоизоляции (прокладка утеплителя с натягиванием дополнительного слоя плёнки). Это нужно выполнить для защиты от влаги. Поперёк лаг устанавливаются деревянные рейки, в пазы между ними прокладывается фольга или размещается металлический профиль. На фольгу или в профиль складываются трубы, проверяется работоспособность системы.
Совет
Подложка монтируется из фанеры или ДСП. Финишное покрытие формируется из плитки или дерева.
Особенности системы
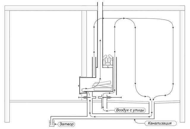
В силу того, что в качестве нагревательной установки будет использоваться не котел, а печь, сверху, над топкой, следует организовать теплообменник. Как правило, для этих целей применяется самый обычный бак из нержавейки или любого другого метала, который не склонен к образованию коррозии при контакте с влагой. Еще можно взять регистр из труб. Принципиальной разницы в этом нет. От установленного над печью теплообменника для теплого пола осуществляется прокладка трубопровода в те помещения, где в этом есть необходимость.
Для того чтобы «отработанный» теплоноситель имел возможность снова вернуться в обменник, потребуется еще и небольшая циркуляционная насосная установка. Без нее конструкция сможет полноценно функционировать, при условии, что печь располагается ниже уровня напольной поверхности. Кроме этого потребуются и трубы нестандартного для таких отопительных блоков диаметрального размера. Так, для устройства скрытого нагревательного блока, который будет запитываться от печи, нужно приобрести трубы Ø24 мм, тогда как при укладке трубопровода в стандартных условия используется труба Ø16 мм.
Проектирование водяного пола в бане
При определении длины труб воспользуйтесь такими рекомендациями:
- Максимальная площадь помещения, обогреваемая одним контуром — 20 кв. м. Если в бане задуманы теплые полы в моечной и комнате отдыха, контуров делают два, и каждый подсоединяют к коллекторному шкафу индивидуально.
- В каждом контуре — не больше 60 м труб.
- Расстояние между трубами после раскладки на полу — в среднем 30 см.
- На подсоединение к коллекторному шкафу требуется 2 м труб.
При расчете мощности котла принимайте во внимание много факторов, в том числе объем помещения и материал стен и др. Также учитывайте, что температура воды в трубах должна быть не более 55 градусов, хотя в котле она гораздо выше
Неверные расчеты мощности приведут к невозможности функционирования системы, лучше обратитесь в специализированные компании.
Выбор напольного покрытия, особенности теплоносителя
При обустройстве традиционной русской баньки своими руками обычно собирают деревянный настил в силу его эстетичности и аутентичности, экологичности и простоты монтажа. Реже встречается пол, выложенный керамической плиткой с применением морозостойкого клея. В составе последнего должно быть не менее 40% минеральных добавок, в приоритете равномерно белые и однородные по консистенции смеси.
Так как отопление в бане не регулярное, зимой велик риск замерзания воды и повреждения труб. Антифриз, используемый в теплых полах как теплоноситель, состоит из разведенного гликоля, если монтируются металлические трубопроводы, приветствуются антикоррозийные присадки
Важно обеспечить полную герметичность зоны стыков, чтобы исключить контакт антифриза с воздухом
Жидкость может нагреваться от печки с водяным контуром либо от котла. В первом случае подразумевается обустройство теплообменника из металлического бака. Если использовать с этой целью сваренную из труб решетку, полы будут быстрее и качественнее нагреваться. Циркуляцию теплоносителя в системе обеспечивает насос.
Инструменты и материалы
Для изготовления водяной системы обогрева пола в бане нужно подготовить ряд расходных материалов, инструментов:
- байпас и вентиль для его регулировки;
- змеевик, который будет выполнять роль теплообменника;
- металлическую емкость на 100 литров;
- термоголовку — механизм для регулировки температурного режима отопления;
- коллектор — деталь, которая распределяет воду по разным контурам трубопровода;
- насос для обеспечения циркуляции жидкости по трубам.
Дополнительно понадобятся различные фитинги, утеплитель, крепежные элементы, гидроизоляция, армирующая сетка, пароизоляция.
Устройство водяного пола от банной печи
Отопительные контуры, по которым перемещается нагретая рабочая среда.
Смеситель (коллектор), в нем происходит разделение жидкости по контурам. В нем же происходит нагретой от печи воды, с более прохладной. Все дело в том, что печь не в состоянии подогревать воду до определенной температуры. Часто температура рабочей среды не допускает ее помещения в отопительный контур и поэтому приходится ее перемешивать с холодной водой.
Теплообменный блок. В нем происходит передача тепла от печки теплоносителю. Конструкции модуля описаны ниже.
Для обустройств нагревательной системы применяют пластиковые или металлические трубы. Только, при этом надо помнить о том, что при их прокладке требуется использовать единый кусок трубы. При укладке нагревательного элемента недопустимо использовать фитинги или другие формы соединения. Такие стыки повышают вероятность возникновения протечки, для устранения, которой придется вскрывать напольное покрытие и стяжку.
В основании трубопроводов, по которым подается теплоноситель от банной печи должна быть расположена бетонная плита. Для снижения потерь тепловой энергии между трубами и бетонным основанием требуется проложить слой утеплителя. Для этого допустимо применение вспененного полиэтилена, с фольгированной поверхностью. Можно использовать пенопласт, пеноизол или минеральную вату.
Первоначально, водяной тёплый пол не предназначался для установки в банном помещении. Поэтому, при укладке такого «пирога» в бане, требуется укомплектовать его дополнительными элементами.
Устройство водяного тёплого пола от банной печи включает в себя несколько узлов:
Контур тёплого пола — это главный рабочий элемент, который уложен равномерно по всему полу помещения с определённым шагом, залитый стяжкой из бетонно-цементной смеси. Следует правильно выбирать модель труб, в данной ситуации не каждая подойдёт. Лучше всего использовать – медные, металлопластиковые или гофры из нержавеющей стали. Однако многие отдают предпочтение сшитым полиэтиленовым трубам с повышенной термостойкостью, со сроком службы не менее 30 лет, или полипропиленовым, с гарантийным сроком не меньше 50 лет.
Смесительный узел — важная часть система, так как печка не способна подогревать теплоноситель до нужного уровня. Она нагревает воду практически до стадии закипания, в таком состояние её нельзя поставлять в контур. Поэтому, необходим смесительный узел, в нём кипяток будет смешиваться с отработанным теплоносителем до требуемых 40 градусов, и в таком виде направляться в трубопровод. С помощью него осуществляется регулирование, настройка и автоматическое поддержание температурного уровня тёплого пола в нужном режиме.
Теплообменник — ёмкость, змеевик или регистр, расположенный над топкой, там нагревается жидкость от печи. При использовании антифриза — как теплоносителя, потребуется оборудовать отдельный теплообменник, тогда антифриз не сможет попасть в воду для мытья.
Циркуляционный насос — необходим, чтобы равномерно распределялся и двигался теплоноситель по трубопроводу. Без него тёплый водяной пол не может функционировать, так как он обеспечивает контур дополнительным давлением для циркуляции жидкости. Подбирая мощность насоса самостоятельно, нужно учитывать площадь отапливаемого помещения, чем она больше, тем выше должна быть его производительность.
Чтобы снизить нагрузку на насос, рекомендовано разделить трубопровод на несколько частей равной длины.
Дренаж — необходим для удаления лишней жидкости из парной и помывочной комнаты банного помещения. Обустроить его своими руками можно с учётом следующих двух моментов: соорудив отвод для воды — отверстие для слива, через него вода будет стекать в трубу и выводится в канализационную яму; залив стяжку с уклоном по направлению сливного отверстия — тогда вся вода будет стекать в сторону уклона.
Если рассматривать устройство тёплого водяного пола в бане от печи в виде «пирога», то оно состоит из:
- чернового пола — бетонного или деревянного;
- гидроизоляционного слоя — он препятствует образованию конденсата;
- утеплителя — уменьшает теплопотери;
- арматурной сетки — защищает изоляцию;
- отражателя из фольги — направляет тепло в нужном направлении;
- нагревательного элемента — трубы уложенные спиралью;
- бетонной стяжки — имеющей уклон по направлению стока;
- финишного покрытия.
При самостоятельной укладке тёплого пола на грунт, требуется обустроить песчаную подушку, сверху её необходимо засыпать керамзитом, на него расстелить гидроизоляционный слой.
Помимо этого, понадобится дополнительная установка смесительного узла, теплообменника и насоса.
Теплый пол от печки
Воплощение проекта в жизнь
Для того чтоб сделать теплые полы, которые подключаются к системе отопления, нужно выполнить ряд факторов.
Прежде всего, эта система должна включать циркуляционный насос. Сама система может быть рассчитана на одну трубу или на две.
Для неё так же нужно рассчитать длину контура, например для двухтрубной – это максимум 50 метров , для однотрубной – 30 .
Если комната большая, и вы не можете вместить в это число – то пройдется делать несколько контуров.
Предварительная подготовка пола
Чтоб не тратить тепло и понапрасну греть плиты перекрытия, нужно перед монтажом системы подготовить основание.
1. Если пол покрыт кафелем, паркетом или чем-то другим, то это покрытие нужно удалить. Затем осмотреть цемент и в случае необходимости затереть швы цементом и выровнять поверхность пола при помощи цемента смешанного с крупным песком.
2. По периметру пола на стыке стен и пола устанавливаем демпферную ленту (она нужна для сохранения стяжки при изменении температур).
Имейте в виду, что ширина ленты должна быть больше, чем ширина бетонной стяжки. Можно крепить, если стены ровные на клеящую основу, если не неровные – на дюбель-гвозди.

3. Затем нужно положить твердую теплоизоляцию, например экструдированный полистирол в виде плит или рулонный вспененный полиэтилен с фольгированным покрытием.
4. Сверху укладывают обычную полиэтиленовую пленку (чтоб бетон не протекал).
5. После этого укладывают пластиковые направляющие, а на них металлическую сетку с ячейками от 10 см.
Пол под печку с укладкой водного контура и заливкой стяжки
После того как мы подготовили пол, нужно уложить и закрепить полиэтиленовые трубы для воды.
Укладывать лучше «улиткой» (как показано ниже), так создается меньше углов и не распределяется пространство на «холодные и горячие зоны».
Интересно! Из чего сделать полы в доме. ТУТ!
Трубы укладывают с расстоянием 15см (если у вас теплый климат – то 30см ).
Решайте сами если нужно сделать пол более теплым – делайте шаг меньше, даже на определенном кусочке пола.
Последовательность:
1. Трубы укладывают точно по плану, начиная от распределительного пункта, к тому же немного расстояния оставляют для подключения труб.
Заниматься укладкой лучше вдвоем: один укладывает, второй закрепляет к сетке.

2. После предварительной раскладки (пока без закрепления) трубы подводят к распределителю и закрепляют.
3. Подключение осуществляется с помощью соединительной связки к распределителю. После закрепления систему наполняют водой (проверка на повреждения).
4. Теперь осуществляют финальную часть – стяжку бетоном (для этого подойдет бетон 200 мелкозернистый).
Сначала ставят и закрепляют маяки, затем заливают бетоном (бетон должен покрывать трубы и арматуру на высоту 6 см). Не застывший бетон ровняют правилом (длинной деревянной планкой).
Принцип обустройства теплых полов в старинных домах

Русская изба на одну семью отапливалась одной русской печью. В связи с дороговизной кирпича и экономией пространства не все могли позволить сооружать печное отопление в нескольких помещениях. При разборе домов 18-19 веков постройки под жилым ярусом были обнаружены защитные теплосберегающие самодельные экраны.
Принцип монтажа тепловой подушки в старинной русской избе:
- после сборки сруба и выстраивания печи по периметру дома устанавливали частокол высотой до 0,5 м с шагом между вешками 30-40 см;
- пролеты между стойками закрывали гибкими ветками по методу плетения. Каждый элемент огибал вешку как плетень. Все ряды плотно подгонялись друг к другу, чтобы не было зазоров;
- собранную плетенную изгородь обрабатывали с обеих сторон смесью из глины и соломы. После высыхания покрытие приобретала прочность и не имела пустот;
- пространство, находящееся за плетеным экраном, засыпали землей и утрамбовывали;
- половые лаги стелили таким образом, чтобы пол располагался вплотную к теплосберегающему экрану.
Особенности системы теплого пола в бане от банной печи

Трубы для контура подбирают 24 мм в диаметре, чтобы снизить риск замерзания воды из-за редкой эксплуатации помещения Особенности такого отопителя связаны с характером эксплуатации бани. Эта постройка не отапливается постоянно. Теплый пол работает только во время эксплуатации сауны или парной. С одной стороны, это означает низкую интенсивность использования, с другой – увеличение пусковой нагрузки.
Источником тепла в бане выступает кирпичная или металлическая печь. Ее задача – отопить помещение и нагреть некоторый объем воды. В таком устройстве теплообменник в принципе отсутствует. Чтобы подключить к печи систему теплый пол, обе конструкции модифицируют.
- Оборудуют теплообменник – бак из нержавейки или регистр из труб. Теплообменник размещают над топкой. От него тянут трубопровод вниз к полу и в другие отапливаемые помещения.
- Трубы, обслуживающие теплообменный бак, нужны нестандартные – 24 мм в диаметре, а не 16 мм.
- Систему оснащают насосом, так как иначе обеспечить возврат остывшей жидкости в теплообменник невозможно.
- Нет возможности регулировать степень нагрева. Банная печь нагревается очень сильно и подает в систему практически кипяток. Это неприемлемо. Устройство оснащают специальным блоком для смешения воды из печи и обратки.
- Так как размеры банной печи невелики, теплообменник здесь монтируют небольшой. Чтобы компенсировать недостаточную мощность, возле печи устанавливают аккумуляторный бак и соединяют его с теплообменником.
Действительно ли необходим теплый пол в бане?
Многих обладателей саун и бань интересует вопрос: нужен ли теплый пол в бане? По мнению профессионалов, он обладает многими преимуществами:
- инновационная система обогрева быстрее просушивает помещение;
- обеспечивает длительность эксплуатационного периода мебели, штукатурки и отделки в бане;
- повышение устойчивости к возникновению плесени и грибков;
- создание благотворного микроклимата в помещении, что позволяет принимать разные гигиенические процедуры;
- способствует созданию оптимальной атмосферы для отдыха.
Особенное значение имеет система теплого пола в бане из натурального дерева. Теплый пол в отдельно стоящей деревянной бане препятствует возникновению процесса гниения, тем самым продлевая эксплуатационный период древесины.
В соответствии с утверждением врачей, холодный пол в бане способен вызывать простудные заболевания, да и ступать по нему совсем неприятно. Куда полезнее и комфортнее ходить по теплому покрытию босыми ногами.
Монтаж
Существуют различные методы установки теплых полов в бане, которые характеризуются общими правилами монтажа и определенными особенностями. Необходимо знать пошаговое руководство. Практически все системы теплого пола должны укладываться на теплоизолирующий материал, после чего покрываются стяжкой, на которую укладывается напольное покрытие.
Помимо этого, гидроизоляция выступает в качестве препятствия для образования конденсата в конструкции, состоящей из нескольких слоев. В качестве подобного слоя может выступать минеральная вата, керамзит, полиэтиленовая толстая пленка и многое другое. Рассмотрим установку различных систем.
Электрический теплый пол с использованием кабеля
Визуально данный кабель нельзя отличить от обыкновенного провода. Различие заключается исключительно в функциональном назначении. Нагревающийся кабель способен преобразовывать электрическую энергию в тепло. Подобная система характеризуется наличием термостата, благодаря которому вы сможете регулировать мощность и быстроту достижения требуемой температуры.
Помимо этого, производители обычно предоставляют датчики температуры, благодаря которым вы сможете контролировать режим работы кабельной системы.
Следует обратить внимание на то, что электрический кабель, используемый в теплых полах, может быть одножильным либо двухжильным. Первый вариант характеризуется большим электромагнитным излучением, однако, оно все равно находится в пределах нормы. Второй вариант характеризуется простотой выкладки, поскольку не нуждается в подведении двух концов к термостату, так как достаточно одного
Второй вариант характеризуется простотой выкладки, поскольку не нуждается в подведении двух концов к термостату, так как достаточно одного.
Если кабельный пол будет укладываться на поверхность из дерева, то требуется позаботиться о безопасности. Древесина должна быть обработана антипиренами, невзирая на то, что между проводом и напольным покрытием не будет непосредственного контакта.
Для тех, кто желает обустроить баню с помощью электрического теплого пола, производители предоставляют разные приспособления, которые будут полезными при установке. В качестве этих приспособлений выступают специальные направляющие, дополненные крепежами, и монтажная сетка. С помощью направляющих вы сможете разместить кабель на оптимальном расстоянии друг от друга
Важно, чтобы от кабеля на стене было расстояние минимум 5 см, а от иных нагревательных приборов – не менее 10 см
Пленочный теплый пол
Это наиболее дешевый и быстрый вариант установки. Здесь термопленка выпускается в специальных рулонах. От вас требуется просто распределить мат по полу, закрепить полосы с помощью клейкой ленты либо иным другим простым способом. Здесь не требуется цементная стяжка, которая затрачивает много времени. В данной ситуации инфракрасные маты заливают плиточным клеем, на который непосредственно укладывается плитка. В некоторых случаях покрытие укладывают прямо на маты.
Водяной пол
Может быть установлен различными способами. На выбор того или иного варианта влияет предпочтение владельца бани и технические характеристики напольного покрытия. Самыми распространенными являются два способа установки.
- Бетонный тип, который аналогичен установке электрического теплого пола. Разница заключается лишь в том, что трубы имеют большую толщину.
- Настильный способ, который пользуется особой популярностью, так как не перегружает напольное покрытие.
Установка теплого пола посредством бетонной стяжки является наиболее распространенным вариантом, минусом которого является лишь то, что он нуждается в достаточно больших временных затратах. В данном случае вы можете не бояться перегрева, поэтому подобный способ укладки выбирается достаточно часто. Учтите, что не рекомендуется устанавливать трубы близко друг другу. Оптимальное расстояние между ними – 30 см.
Данный случай не предусматривает наличие изгибов и изломов. Скрепляться трубопроводы должны с помощью хомутов и дюбелей. В некоторых случаях используется проволока. Представленный способ предусматривает проведение трубопровода по спирали либо змейкой. Такой вариант построить не очень сложно.
Альтернативы
Неплохой альтернативой водяному теплому полу могут служить электрические и инфракрасные теплые полы. Разберем их подробнее.
Электрические теплые полы
Похожи по своей сути на водяные полы. Электрический греющий кабель, который заменяет отопительный контур, является основной отличительной чертой таких полов. Все остальные процессы происходят аналогично.
Система требует установки дополнительного автомата и тщательной гидроизоляции. Зато, не требуется прокладка отопительного контура, насос и теплообменник. Если в предыдущем случае у нас не было дополнительных затрат (при достаточной мощности котла) на эксплуатацию, то тут придется немало заплатить за электричество.

Различают два вида греющего кабеля: с одной жилой и с двумя.
Преимущества следующие:
- пол прост в изготовлении;
- водяной контур для обогрева обойдется дороже;
- установка такой системы подогрева не занимает много времени;
- термостат позволяет легко задать нужную температуру подогрева.
Минус: высокий расход электроэнергии для обогрева.
Такая система может применяться не только в бане, но и для подогрева полов в доме.
Инфракрасные теплые полы

Существующее банное помещение ставит целесообразность реализации водяного теплого пола под большой вопрос. В этом случае, на помощь приходит инфракрасный пол. Он не требует демонтажа старого покрытия. Тонкую пленку с нагревателем легко постелить на любое основание. Устройство финальной стяжки в банном помещении также не обязательно.
Мнение эксперта
Павел Круглов
Печник с 25-летним стажем
Если нужно бюджетное решение для действующей бани — это лучший выбор. Для обогрева смежных помещений, это тоже оптимальное решение.
Теплые полы: краткий обзор видов
Сегодня теплый пол в комнате отдыха бани – это привычное явление, уже ставшее неотъемлемой частью комфорта. Особенно, когда речь идет о плитке, а не дереве.
Чтобы обеспечить прогрев поверхности, могут применяться следующие виды полов:
- водяные;
- электрические кабельные;
- инфракрасные;
- воздушные.
Пример водяных теплых полов
На первом этапе руководствоваться выбором следует исходя из финансового положения и требований самих полов:
- Водяные. Необходима идеально-ровная поверхность. Придется докупать дополнительное оборудование для контроля за температурой. Довольно дорогой вид, хоть и самоокупаемый.
- Кабельные. Потребляют много энергии, поэтому следует удостовериться, что текущая проводка справится с напряжением. Дешевле водяных.
- Инфракрасные. Они не имеют каких-либо специфических требований. Доступный.
- Воздушные. Очень дорогостоящие в плане установки.
Пример электрического кабельного пола
Более подробно обо всех видах, кроме воздушного, который является слишком дорогим, далее в статье.
Зачем нужно дополнительное отопление
Конечно, при очень сжатом бюджете от дополнительного отопления можно отказаться, используя только классический вариант – хорошую чугунную или кирпичную печь
. Этого будет вполне достаточно, чтобы принимать баню, а потом с разбега нырять в роскошные сугробы, испытывая при этом всю неповторимую гамму чувств. Но если вы можете позволить себе потратить дополнительные средства, то ваша баня станет ещё более уютной и комфортной.

Печь-каменка — самый популярный способ обогрева бани
Под дополнительным отоплением обычно понимают дополнительное отопительное оборудование, позволяющее поддерживать высокую температуру не только в парилке, но и в предбаннике. Ведь многие ценители бань любят посидеть с компанией друзей в предбаннике после посещения самой бани, чтобы поговорить за жизнь, вспомнить былые времена и обсудить планы на будущее.
К сожалению, при использовании обычных печей протопить предбанник не получается. И если летом это не составляет проблемы, то зимой может стать причиной дискомфорта. Практически всё тепло отдаётся парилке, в результате чего находиться в предбаннике даже несколько минут, чтобы раздеться или одеться, бывает неприятно из-за крайне низкой температуры. Что уж говорить про посиделки и долгие беседы!
Зато при установке дополнительного отопления вы всегда сможете поддерживать в предбаннике, который располагается на одном уровне с парилкой или же на мансарде, подходящую для вас температуру.
Последовательность монтажа водяного тёплого пола в бане
Как было сказано раннее, водяной по имеет ряд преимуществ, но требует основательного монтажа и установки таких дополнительных элементов, как водяной насос и котёл для нагрева жидкости. Но можно сделать тёплый пол в бане, работающий от печки, при этом котёл устанавливать не надо.
Последовательность укладки водяного пола в бане:
- Удаление старого покрытия. Это может быть деревянный пол или бетонная стяжка. Старое покрытие удаляется вплоть до плиты, после чего необходимо убрать весь мусор и проверить уровень пола. Если он недостаточно ровный, то следует залить новую бетонную стяжку, которая только улучшит теплоизоляционные качества в помещении.
- Укладка теплоизоляционного материала. Чаще всего используют плиты из пенопласта или пенополистирола. Эти материалы наиболее долговечны и надёжны, а также имеют доступную цену. По периметру комнаты должна быть размещена демпферная лента, которую крепят с помощью простых саморезов. На современной ленте, с одной стороны предусмотрен специальный клейкий слой, поэтому монтаж существенно упрощается.
После укладки пенопластовых плит, следует пройтись по полу. Если поверхность немного «гуляет», то необходимо снять слой утеплителя и убрать из-под него ранее незамеченный мусор. После того как утеплитель будет уложен и выровнен, его накрывают теплоизоляционной плёнкой.
Укладка теплоизоляции
- Укладка трубопровода. В качестве основания под трубопровод используют специальную плёнку, с заранее приготовленной разметкой. Разметка представлена бобышками – небольшими выступами, между которыми удобно укладывать трубы водяной системы. Достаточно положить пластиковую трубу между бобышками и немного её придавить, пока она не зафиксируется в полости между пазами.
Правильная схема размещения трубопровода
Если вместо специальной плёнки был использован простой армированный каркас, то к нему трубы крепят с помощью стандартных пластиковых хомутов или электротехнических кабельных стяжек.
Укладка трубопровода на специальную поверхность
- Монтаж коллекторного шкафа. Коллекторный шкаф необходим для того, чтобы собрать все коммуникации в одном месте. К данной точке подходят все трубопроводы, расположенные на полу. Также к данному шкафу подводят трубу подачи жидкости и трубу, по которой остывший теплоноситель заново попадает в котёл.
Предварительный монтаж трубопровода под коллекторный шкаф
- Залить стяжку и уложить напольное покрытие. Для большей крепости конструкции лучше всего использовать 2 армирующие сетки: под трубопроводом (в самом начале укладки пола) и над ним. Далее вся поверхность готового пола заливается бетоном. В стяжке не должно быть полостей и пустых пространств.
Наиболее популярны для такой системы металлопластиковые трубы с внутренним диаметром 16 мм. Они обладают длительным эксплуатационным сроком и с данной продукцией очень удобно работать.
После того, как стяжка будет готова, систему необходимо проверить, для чего включить котёл, нагреть воду и запустить насос, который подаст в систему теплоноситель. Если трубопровод не герметичен, то на бетонной стяжке сразу же появится пятно. К сожалению, в таком случае необходимо производить демонтаж пола и устанавливать его заново.
Очень удобно использовать в данной системе не котёл, а жар от банной печи. Единственным недостатком такой системы является невозможность предварительного прогрева помещения, ведь для нагрева жидкости необходимо растопить печь. Но при этом существует определённая экономия, так как необходимость в приобретении котла отпадает.






































