Как подобрать материал для вытяжки
Для решения таких задач применяется кирпич, нержавеющая, оцинкованная сталь или керамический материал. Проанализируем более детально каждую из них.
Коаксиальная вентиляция
Эта вытяжка газового котла в частном доме состоит из короткой внешней и длинной внутренней трубы. Помимо этого к ней относятся всякие принадлежности: хомуты, колена, прокладки, а также – приемник для конденсата. Еще такую конструкцию называют «труба в трубе» и используется она в газовых отопительных приборах с закрытой камерой горения.

Устройство и принцип работы одинаковый для всех котлов такого типа:
- Труба, расположенная внутри, подсоединятся с одной стороны к патрубку котла, а ее другая сторона выводится на улицу и по ней выходят продукты сгорания. Она сделана из нержавейки и выдерживает перепады высоких температур.
- Труба, расположенная снаружи, присоединяется одним концом к входному отверстию, а другой конец выводится за пределы помещения. В этом канале происходит поступление свежего воздуха.
- Во время эксплуатации агрегата, выработанные продукты горения за счет тяги по внутреннему каналу отводятся наружу, и в то же время к камере сгорания поступает свежий воздух по внешнему каналу.
Данное коаксиальное устройство обладает следующими достоинствами:
- Дымоход безопасен. Это возможно потому, что выходящие горячие продукты горения тут же охлаждаются холодным воздухом, поступающим извне.
- Повышенная производительность. Свежий воздух при подаче нагревается и увеличивает КПД агрегата.
- Экологичность системы.
- Установка на кухне. Такой настенный отопительный прибор не портит общий интерьер в помещении.
Еще одной особенностью монтажа таких котлов с коаксиальной циркуляцией воздуха является то, что в доме для частного проживания монтировать дымоход можно как вертикально, так и горизонтально.
Кирпичная кладка
Сейчас кирпич все реже применяется для вентиляционных колодцев.
Это вызвано двумя основными причинами:
Во-первых, его недолговечностью, через 7-10 лет кирпич начинает крошиться, и кладка теряет герметичность, а значит, она теряет свое предназначение. Разрушается он из-за того, что в канале температура меняется и в результате образуется конденсат, который зимой замерзает. Более приемлемо делать дымоходы из этого материала, когда стенки постоянно испытывают контакт с горячими отходами.
Во-вторых, кирпичная кладка – это трудоемкий процесс, у такого вентиляционного канала непростое устройство и неоправданные расходы.
В связи с этим, более удачным вариантом будет являться кирпичная шахта с заложенной внутри оцинкованной трубой для вентиляции. Собирается она по частям из 2-х метровых контуров, а толщина стенок подбирается с учетом температуры отводящих газов.

Стальная вытяжка
Отработанный газ при работе газового котла имеет температуру около 430 градусов, а при эксплуатации твердотопливных котлов еще больше. Поэтому трубы для вытяжки газового котла в частном доме изготавливаются из нержавеющей стали с толщиной стенок 0,7-1 мм. Данные изделия вполне стабильны к действию конденсата на поверхности стенок.
Надо отметить, что период эксплуатации этих вентиляционных труб ощутимо меньше, чем кирпичных и керамических. В то же время стандартные стальные вытяжки проще при замене, так как они легче и не нуждаются в специализированных основаниях для придания прочности.
Такие каналы изготавливаются в разных вариантах:
- Размещение в специально выложенном колодце из кирпича;
- Из заводских контуров. При этом всякий контур представляет собой сэндвич-трубу с двумя стенками. Здесь одна труба расположена в другой, а зазор заполнен теплоизолирующим материалом.
Использование таких вытяжек упрощает установку, при этом они монтируются как внутри помещения, так и снаружи.
Категория котельной по взрывопожарной и пожарной опасности
Котельная – помещение с классом функциональной пожарной опасности Ф5.1, соответственно, категорируется по СП 12.13130. В СП 89.13330 ей присваивается кат. Г, но данное положение не категорическое – расчеты проводят индивидуально.
Котельная почти всегда имеет кат. Г. В исключительных случаях, если такое показывает расчет категории, возможна одна из позиций В. Разные части постройки могут иметь иные значения (см. СП 89.13330).
Сооружения встроенного, пристроенного, крышного типа выполняют с пожаробезопасными параметрами не ниже, как у обслуживающих ими сооружений. Отдельно стоящие постройки должны полностью отвечать правилам для производственных объектов.
Другие параметры по классификации ПБ такие:
| Тип | Степень огнестойкости | Класс конструктивной пожароопасности |
| Отдельные пристроенные, встроенные | I и II | C0 |
| III | C0, C1 | |
| Отдельные с надежностью отпуска 2 ст. | IV | C0, C1 |
| Крышные | III | C0 |
Окно в газовой котельной. Требования СНиП к котельным
Предисловие. Рассмотрим в данной статье требования к котельной в частном доме, СНиП 2015 на размер окна в газовой котельной, вентиляцию и дымоход в данном помещении.
Все представленные в материале требования обязательны при обустройстве котельных в домашних условиях для безопасной работы газового отопительного оборудования.
В статье указаны все нормы к котельной для газового котла в частном доме.
Согласно действующему СНиП 2015 года, а также инструкции Минстроя России по размещению оборудования для отопления и горячего водоснабжения, при размещении газовых и твердотопливных мощностью до 150 кВт в отдельном помещении жилого здания, данное помещение должно отвечать ряду норм и требований. В том числе, диаметр приточной вентиляции, размер окна в котельной, материал отделки стен, высота дымохода и т.д.
1. Требования к помещению котельной в коттедже
• газовое оборудование недопустимо устанавливать в жилых комнатах;• высота потолков в помещении должна быть не менее 2,2 метра;• не допускается отделка стен, потолков и полов горючими материалами;• между полотном двери и полом должен быть зазор для поступления воздуха;
• размеры окна определяются, как 0,3 кв.м окна на каждые 10 куб.м помещения.
2. Вентиляция в котельной с газовым котлом СНиП
• помещение должно иметь вентиляционный канал диаметром не менее 110 мм;• подача воздуха производится через отверстие в двери или зазор между полом;• размеры приточных отверстий должны быть не менее 8 кв.см на 1 кВт мощности котла;
• вентиляцию следует утеплить и сделать уклон горизонтальной трубы в сторону улицы.
• для дымохода в стене пробиваются канал, который необходимо утеплить;• не допускается подача продуктов сгорания в жилые помещения;
• дымоход газового или твердотопливного котла должен быть выше конька крыши;
• котел устанавливается на полу или на стене, вдали от электроприборов;
• обеспечивается свободный подход к котлу для обслуживания со всех сторон.
Требования к размеру окна в газовой котельной
Фото. Дымоход и окно газовой котельной
Высота от пола до потолка должна быть не менее 220 см в котельной.
Настенные котлы необходимо устанавливать не менее 1 метра над уровнем пола и при этом дымоход должен выходить на улицу на высоте не менее 2 метров от уровня земли на участке.
Утепленная котельная должна быть оборудована дверью и окном. Если в топочной дополнительно устанавливается газовая колонка для водопровода, то объем котельной по нормам СНиП не увеличивается.
В котельной необходимо установить одно или несколько металлопластиковых окон с общей площадью остекления не менее 0,5 кв. метра для проветривания топочной в случае возможной утечки газа.
В котельной деревянного дома должен быть приток воздуха через отверстие с улицы не менее 150 х 200 мм или зазор под дверью не менее 20 мм. Следует утеплить перемычку окна, чтобы снизить теплопотери помещения.
Требования к газовой котельной в частном доме
Фото. Размещение настенного газового котла
Установить отопительный котел в деревянном доме можно на кухне и в специальных помещениях – топочных. В санузлах котлы устанавливать запрещено.
Если для отопительного оборудования предусмотрено отдельное помещение, то необходимо ознакомиться с требованиями СНиП 2016 к котельным – помещениям, где размещается газовый или твердотопливный котел, а также вспомогательное оборудование для отопительной системы коттеджа.
Высота потолков в котельной не менее 220 см, объем помещения составлять должен не менее 15 кубических метров или 6 квадратных метров.
Обязательно в котельной должно быть окно площадью остекления не менее 0,5 квадратных метра, а также отверстие под дверью для подачи свежего воздух.
В помещении запрещено устанавливать электроприборы, так как необходимо пространство для свободного доступа к оборудованию.
Фото. Расположение оборудования в топочной
По площади котельная в частном доме должна быть не менее 6 квадратных метров.
Газовое оборудование на природном газе устанавливать допускается на любом этаже, в том числе в подвальном или мансардном этаже жилого деревянного и кирпичного дома.
На практике все перечисленные требования не всегда соблюдаются.
Технадзор и пожарные инспекторы достаточно жестко смотрят только на площадь котельной, размер окна, наличие дверей и вытяжки, а также на площадь приточной вентиляции и вытяжки.
Все эти параметры следует заранее согласовать с проектной документацией. Компании, предоставляющие услуги проектирования газоснабжения выполняют проект котельных согласно всем действующим СНиП.
(22 votes, average: 3,59 5) Загрузка…
Какие должны быть двери в котельной
Если это отдельное помещение в жилом доме, то двери ведущие из топочной должны быть огнеупорными. Это значит, что они должны сдерживать огонь на протяжении 15 минут. Под эти требования подходят только сделанные из металла
Фабричные или самодельные — не столь важно, лишь бы по параметрам подходили
Если же в топочной сделан выход на улицу, тут должны стоять неукрепленные двери. Причем в СНиПе написано «слабо укрепленные». Это необходимо для того чтобы при взрыве коробку просто выдавило взрывной волной. Тогда энергия взрыва будет направлена на улицу, а не на стены дома. Второй плюс легко «выносимых» дверей — газ сможет свободно выходить.
Двери в котельную продаются сразу с решеткой в нижней части
Часто в проекте ставят дополнительное требование — наличие в нижней части двери забранного решеткой отверстия. Оно необходимо для обеспечения притока воздуха в помещение.
Требования к газовой котельной в доме из дерева
Основные правила установки настенного газового котла в деревянном доме, затрагивают три важных области:
- Нормы, оговаривающие минимальные требования к котельной.
- Правила подключения системы дымоудаления и вентиляции.
- Существующие правила пожарной безопасности.
Допустимые нормы обустройства газовой котельной внутри деревянного здания, оговаривают типы и виды внутренней отделки, систему безопасности, наличие пожарной сигнализации и средств пожаротушения.
Для установки котла в деревянном доме, нужно строгое соблюдение существующих требований. Газовая котельная является местом повышенной пожарной опасности, что потребуется учитывать при обустройстве.
Нормы помещения котельной
Требования к установке напольного газового котла отопления в деревянном доме, учитывают особенности эксплуатации и повышенную пожарную опасность, связанную с конструкционным материалом здания. В связи с этим, нормы указывают на необходимость соблюдения следующих требований:
- Объем помещения котельной рассчитывается, исходя из общей производительности отопительного оборудования. Газовый котел до 30 кВт, устанавливают в изолированном помещении не менее 9 м³. При условии, что высота потолков будет не менее 2,5 м.
- Разрешается расположение газового котла в любом техническом помещении деревянного дома. Санитарные нормы запрещают устанавливать отопительное оборудование в жилых комнатах, а также кухнях-гостиных. Некоторые ограничения затрагивают месторасположение котла в доме. Нормы ППБ запрещают оборудовать помещение котельной в подвале, но допускают, с несколькими оговорками, установку газового котла в цокольном этаже.
- Котельная огораживается от жилых комнат стеной. Для увеличения огнестойкости, стены покрывают специальными пропитками. В котельной устанавливают дверное полотно с минимальной шириной 80 см, не прилегающее внизу к коробу, для постоянного притока свежего воздуха.
Обязательно наличие естественного освещения, а также форточки для проветривания.
Если согласовать проект будущего дома с представителями газового хозяйства еще на этапе изготовления рабочих схем, можно избежать ненужных материальных затрат на переделку здания.
Организация вентиляции и дымоудаления
В деревянном доме, особое внимание уделяют установке приточно-вытяжной вентиляции и правильному подключению системы дымоотведения. Минимальные требования, распространяющиеся на котельную:
- Устройство вытяжки – диаметр вентиляционного канала, рассчитывается исходя из производительности котла – 8 см² на каждый киловатт мощности.
- Установка трубы дымоотведения осуществляется с соблюдением противопожарных расстояний и разрывов. Высота дымохода, рассчитывается, в зависимости удаленности от козырька кровли. Оголовок трубы нельзя закрывать декоративными элементами. Для увеличения характеристик тяги, рекомендуется установить дефлектор.
Не допускается, чтобы горизонтальный участок дымохода, имел суммарную длину более 3 метров. На всю систему дымоотведения, разрешается установить не более 2 поворотных муфт.
Некоторые требования к дымоходам и приточной вентиляции, оговариваются в правилах пожарной безопасности.
Пожарные нормы для котла на газе в доме из дерева
Пожарные правила затрагивают: размещение котла, обустройство котельной и монтаж системы дымоотведения:
- Размещение котла – оптимально использование под нужды котельной, отдельно стоящего здания, изготовленного из негорючих материалов: керамического или силикатного кирпича, пеноблоков, газобетона и т.п. Допускается установка котельной в доме, при условии, соблюдения условий ППБ.
- Пол и стены котельной облицовывают негорючими материалами. Если такой возможности нет, требования по пожаробезопасности, оговаривают необходимость частичной защиты поверхностей в месте расположения котла и проведения дымохода. Стены и пол защищают негорючими базальтовыми утеплителями. Дополнительную защиту, обеспечивают специальные противопожарные составы. Потребуется предварительная подготовка стен, потолка, полов, посредством обработки мастиками или пропитками, с высокой степенью огнестойкости.
При прохождении дымохода через плиты перекрытия и кровлю, используют специальную противопожарную разделку.
Огнестойкие материалы для стен, которыми рекомендуется облицевать поверхность – это штукатурные гипсовые растворы, ГВЛ плиты и др.
Требования к месту расположения котла
В инструкции по монтажу производители обычно указывают минимально необходимые зазоры и расстояния, необходимые для нормального обслуживания или ремонта котлоагрегата. Например, такие требования предъявлены в паспорте известного Buderus Logamax U072-18K (см. фото ниже).
Требования к расстояниям в инструкции газового настенного Buderus Logamax U072-18K.
Минимальные расстояния часто отличаются в зависимости от модели, но в среднем необходимо рассчитывать:
- зазор между котлом и стеной в 2 см (обычно обеспечивается стандартным креплением);
- свободное пространство в 1 метр перед лицевой панелью котла;
- свободное пространство в 80-150 см слева и справа от котла;
- расстояние в не менее, чем 150 см до потолка;
- деревянная стена должна быть изолирована негорючим материалом или металлическим листом толщиной не менее 3 мм;
- стена должна выдерживать нагрузку от 35-70 кг (в зависимости от модели), в противном случае ее необходимо укрепить.
Требования к помещению для установки газового котла в частном доме
В соответствии с нормативами СНиП 42-01 и МДС 41.2-2000, помещение, в котором устанавливается газовый котел, должно соответствовать таким минимальным параметрам:
- площадь помещения – более 4 квадратных метров;
- высота потолка – не менее 2,5 м;
- объем помещения – не менее 15 м3 (при размещении на кухне существуют отличия, описанные ниже);
- наличие двери с шириной дверного проема не менее 800 мм, согласно пожарной безопасности дверь должна открываться наружу;
- наличие под дверью зазора не менее 20 мм;
- наличие естественного освещения (через окно) из расчета 0,03 м2 площади остекления на каждый 1 м3 объема помещения (например, для комнаты объемом 15 м3 площадь остекления – 0,03*15 = 0,45 м2);
- наличие в котельной вентиляции из расчета – вытяжка в объеме 3-х кратного воздухообмена в час, приток воздуха – объем вытяжки + воздух необходимый для сгорания газа (если котел с открытой камерой сгорания. При наличии закрытой камеры сгорания воздух для горения забирается не с помещения, а через коаксиальный дымоход);
- стены, ограждающие помещение от соседних, должны иметь предел огнестойкости не менее 0,75 ч (REI 45) или быть покрыты конструкцией с таким же пределом огнестойкости, предел распространения огня должен быть равен нулю (негорючие материалы);
- пол в помещении – горизонтально ровный, из негорючего материала.
Актуальные нормы для установки котла на кухне
Согласно МДС 41.2-2000 на кухне разрешается устанавливать котлы мощностью до 60 кВт. Работники газовой службы часто могут ссылаться на другие нормативы, где указана максимальная допустимая мощность 35 кВт, поэтому перед установкой котла мощностью 35÷60 кВт проконсультируйтесь с местной газовой службой. Учитывается только мощность отопительного оборудования, другие газовые приборы в расчет не берутся.
В остальном, помимо вышеперечисленных требований к отдельному помещению, при размещении на кухне существуют некоторые отличия:
- минимальный объем помещения – не менее 15 м3 + 0,2 м3 на каждый 1 кВт мощности котлоагрегата (например, при установки котла мощностью 24 кВт объем помещения равен 15+0,2*24 = 19,8 м3);
- окно должно быть открываемым или оснащаться форточкой;
- наличие необходимого для притока воздуха зазора в нижней части двери сечением не менее 0,025 м2 (Сечение = Ширина*Высоту).
Правильная организация пристройки под котельную
Если выделить отдельное помещение под котельную невозможно, а устанавливать котел на кухне не хочется, котельную просто пристраивают к внешней стене дома. Также пристройки актуальны в деревянных домах, когда после обеспечения стен огнеупорной конструкцией, размеры комнаты не будут соответствовать минимальным нормам. К пристройке применяются те же требования, что и для стандартных помещений под котельную, но с некоторыми дополнениями:
-
- пристройка должна быть официально оформлена, без регистрации газовая служба попросту не допустит подключения;
- пристраивается котельная к глухой стене, на расстоянии не менее 1 метра до ближайших окон и дверей;
- стены пристройки не должны быть связаны со стеной дома;
- стены пристройки и стена самого дома должны соответствовать пределу огнестойкости не менее 0,75 ч (REI 45).
Газовые котлы отопления: самая подробная инструкция по выборуЧек-лист по критериям выбора, рейтинг моделей в 2021 году
Для чего нужен расширительный бак в котельной
В водяной системе отопления для ее корректного функционирования устанавливается расширительный бак. На самом деле он решает несколько задач.
Во-первых, при тепловом расширении воды образуется ее переизбыток. Давление растет, и это отражается на работоспособности всех элементов: они работают на пределе прочности. В самом уязвимом месте образуется течь.
Чтобы временно «спрятать» тот самый лишний объем, и используется расширительный бак. После нагревания излишки жидкости попадают в него, сжимая находящийся там воздух и сдвигая диафрагму. А остывая, вода сжимается, и диафрагма возвращается на место. Таким образом выполняется регулирование давления в системе.
Во-вторых, расширительный бак защищает трубы от гидроудара в момент включения насоса и, в-третьих, препятствует появлению воздушных пробок.
Требования к газовой котельной
В России газовые котельные пользуются куда большим спросом, чем, к примеру, твёрдо- или жидкотопливные, и связано это с простотой эксплуатации и дешевизной обслуживания газового оборудования.распространены повсеместно, они используются в частных и многоквартирных домах, и даже на производстве, особенно если неподалёку располагается уже проложенная газовая магистраль. Пользоваться другими видами котельных в такой ситуации просто нецелесообразно.
У газовых котельных достаточно много преимуществ, среди которых высокий КПД, автономность, низкий уровень вредных выбросов в атмосферу. Но и требований к газовой котельной при этом предъявляется много — они подробно изложены в нормах наи нормах на газоснабжение (СНиПы).
На практике, однако, могут пригодиться далеко не все из этих требований.
Отдельное помещение для газовой котельной
Требования к газовой котельной диктуют необходимость в отдельном помещении, только если мощность используемой установки превышает 60 кВт. Для котла меньшей мощности отдельная «жилплощадь» не нужна, но помещение (например, кухня), в котором он будет установлен, должно соответствовать нескольким важным пунктам:
- высота потолков — от 2,5 м;
- объём воздуха — от 15 м³;
- достаточно мощная система вентиляции;
- наличие открывающегося окна или окна с форточкой.
Если же мощность газовой котельной превышает 60 кВт, то по нормам строительство отдельного помещения для неё является обязательным
При этом неважно, где именно оно будет расположено: на крыше, в подвале, рядом с домом или на каком-либо из этажей
Требования к газовой котельной как к помещению — такие же, как к обыкновенной комнате, где располагается котёл, но стены при этом должны быть огнеупорными и выдерживать высокую температуру на протяжении не менее 45 минут (на случай ЧП).
Стоит помнить, что требования к газовой котельной изменяются в зависимости от мощности оборудования.
Требования к помещению под газовую котельную
В большинстве случаев газовая котельная всё же требует отдельного помещения: например, когда отапливать необходимо большие помещения. В такой ситуации рекомендуется или пристроить котельную к отапливаемому зданию, или возвести её неподалёку.
Строительство котельной любого типа начинается с консультации со специалистами, за которой следует проектирование, затем — приобретение оборудования, монтажные работы, пуск-наладка и регистрация свежевыстроенной котельной в ответственных органах. Продумывание помещения под котельную начинается ещё на моменте проектирования. Технические характеристики могут варьироваться в зависимости от нужд заказчика, но требования к газовой котельной как к помещению всегда остаются одинаковыми:
- Помещение. Высота потолков должна составлять как минимум 2,5 м. Самое главное требование к газовой котельной в отдельном помещении — её огнеупорность, поэтому стены, пол и потолок необходимо отделать материалом, не поддерживающим горение. Для стен, к примеру, идеально подойдёт керамическая плитка, для пола — бетон. Дверной проём должен быть не менее 0,8 м в ширину, а размер окна — 0,3 м³ на каждые 10 кубометров помещения.
- Вентиляция. Подача свежего воздуха может осуществляться или через сообщённую с отапливаемым зданием вентиляционную систему, или с улицы. При этом размеры вентиляционных отверстий рассчитываются, исходя из: 30 кв. см на 1 кВт, если воздух поступает из вентиляционной системы помещения, и 8 кв. см на 1 кВт, если воздух поступает с улицы.
- Дымоход. Для дымохода в стене котельной требуется проделать два отверстия: непосредственно для дымохода и для его технологического обслуживания чуть ниже. Дымоход обязательно должен быть газонепроницаемым, выходящим наружу не ниже конька крыши — только так создадутся необходимые условия для корректного вывода продуктов горения наружу.
- Установка котла. Газовый котёл устанавливается вдали от любых источников огня, на расстоянии как минимум 10 см от стены, а также таким образом, чтобы доступ к нему был открыт с любой стороны.
Вентиляционная система котельного помещения
Чтобы отопительный прибор функционировал максимально эффективно (а принцип его работы, еще раз напоминаем, основывается на сгорании газа и следующего за этим выделения тепла), нужно, чтобы в помещение постоянно поступал свежий воздух, крайне необходимый для удаления продуктов сжигания топлива. В большинстве случаев для того, чтобы воздухообмен в котельной достиг необходимого уровня, достаточно обычной естественной вентиляции. Ветхие двери и оконные коробки, а также ряд других мест, где по той или иной причине имеются щели, обеспечивает вполне достаточный объем свежего воздуха. Но если всего этого не хватает, так как помещение герметизировано, то желательно присмотреться к возможности оборудования дополнительной вентиляционной системы. А если этого не сделать, то продукты горения так и будут оставаться внутри комнаты, оставляя после себя следы в виде сажи и копоти на всех поверхностях. Более того, непривлекательная внешность топочной – это лишь наименьшая проблема, которая постигнет вас при отсутствии должной вентиляции.
Вентиляция естественного характера
Если мощность отопительного прибора не будет превышать 30 киловатт, то для монтажа естественной вентиляции необходимо попросту просверлить в стенах дыры 10-15 сантиметров и установить в него пластиковую трубу соответствующего размера – так мы сделаем своего рода канал-воздуховод. Остается лишь самая малость: защитить этот канал от проникновения насекомых и попадания мусора в него. Для этого мы можем использовать обычную сетку, изготовленную из железа либо пластика. Кроме того, внутреннюю часть канала нужно обеспечить клапаном обратной тяги, необходимым для того, чтобы воздух выходил из помещения. Аналогичным образом нужно оборудовать и вентиляционную вытяжку, к тому же, ее при выходе следует защитить от атмосферных осадков.
Но в каком месте лучше разместить приточное отверстие? Что говорят нам по этому поводу требования к котельной в частном доме? Говорят они следующее: такое отверстие должно располагаться рядом с топливником, снизу. При этом свежий воздух будет поступать непосредственно в сжигающую камеру, но не витать по всему помещению топочной. Вытяжку же лучше оборудовать сразу над прибором, ведь продукты сжигания, как известно, будут подниматься вверх.
Искусственная вентиляция
Не во всех случаях имеется возможность оборудовать естественную вентиляцию. Ведь она во многом зависит от погодных условий, да и контролировать ее работу вы никак не сможете. Тогда лучше прибегнуть к другой ее разновидности – вентиляции искусственного характера.
Важно! Главные элементы подобной конструкции – вентиляторы, подбирать их следует исходя из того, какой максимум расходуемого воздуха нужно котлу, прибавив к этому еще 30 процентов. Собственно, по вентиляции у нас все
Собственно, по вентиляции у нас все.
Виды оборудования
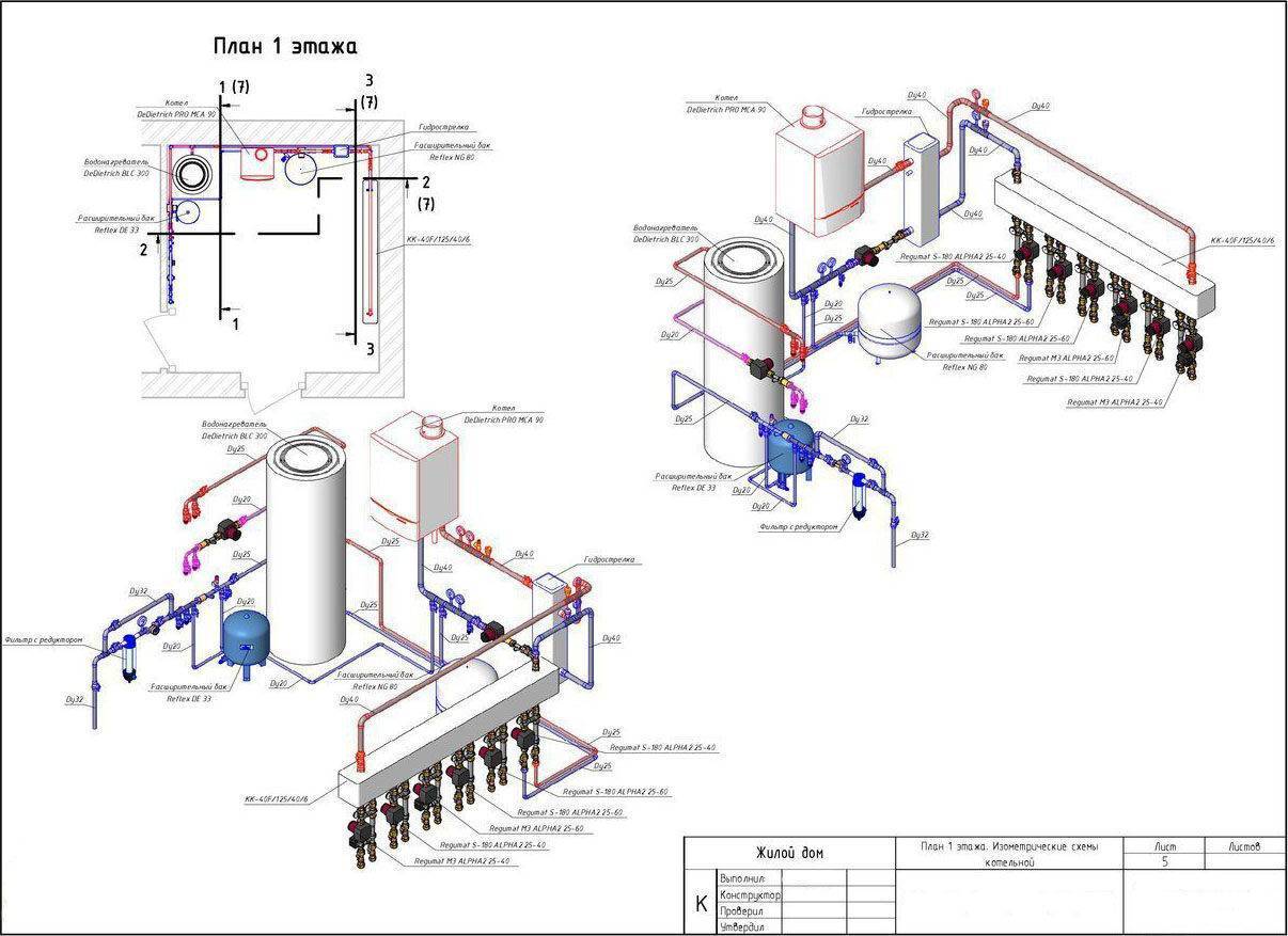
Отопительное оборудование для котельной загородного дома – это целый комплект устройств:
- котел – основополагающий элемент отопительной системы;
- бойлер – для нагрева воды для бытовых потребностей жителей дома. Не нужен, если используется многоконтурный котел, который одновременно греет и теплоноситель, циркулирующий в трубах, и воду для бытового применения;
- система труб и радиаторов;
- коллектор распределительный – для распределения теплоносителя в системах отопления с несколькими контурами;
- бачок расширительный – нужен для выравнивания давления в отопительной системе;
- насос – для ускорения циркуляции теплоносителя в системе;
- дымоход – необходим для вывода продуктов сгорания топлива из котла. При установке электрического котла дымоход не нужен;
- вентиляционная система естественного или принудительного типа (не обязательна при функционировании электрического котла);
- система контроля загазованности воздуха (для газовых котельных).
Комплектация топочной дополнительным техническим оснащением зависит от вида топлива и типа отопительной системы.
В зависимости от вида топлива оборудование принято классифицировать следующим образом:
- газовое. Данное оборудование имеет высокий коэффициент полезного действия, считается наиболее экономичным, но его применение возможно только при наличии в населенном пункте газопровода;
- электрическое. Из преимуществ следует отметить отсутствие необходимости подключения к газовой магистрали, минимум требований к вентиляции, возможность монтажа в жилом помещении;
- твердотопливное (уголь, дрова, торф, кокс). Эксплуатация такого котла требует повышенной пожаростойкости всех поверхностей в котельной дома. Этого можно достичь путем облицовки их листовой сталью толщиной 2,5 мм.
Наиболее актуальным является газовое отопительное оборудование, поэтому несколько слов о таких котлах. Классификация данных устройств выполняется по нескольким признакам.
По конструктивному решению:
- одноконтурные – используются только для обеспечения отопления дома. Называются аббревиатурой АОГВ, что означает «агрегат отопительный газовый водогрейный»;
- двухконтурные – применяются для одновременного отопления и нагрева воды для бытового использования. Их называют АКГВ, т. е. «агрегат комбинированный газовый водогрейный».
По способу монтажа:
- напольные – монтируются на полу, как правило, имеют большую мощность;
- настенные – котлы мощностью до 60 кВт, фиксируемые на стене. Насос циркуляции, расширительный бачок, теплообменник – все это помещено внутри корпуса котла. Дымоход одновременно служит для вывода продуктов сгорания и для подачи воздуха с улицы, необходимого для горения. Такой дымоход называется коаксиальным.
По мощности котла, т. е. по возможности котла в единицу времени выработать определенное количество тепловой энергии. Выбор котла нужной мощности для котельной загородного дома осуществляется исходя из размеров отапливаемой площади.
Формула для расчета:
(Площадь помещения) х (Мощность для отопления 10 м2) / 10
При этом следует учитывать, что удельная мощность зависит от климатических условий региона:
Эксплуатация и техника безопасности
Поскольку система, работающая с газом, не является безопасной, то при любых отклонениях от нормы, надо отключить оборудование и обратиться в компанию, занимающуюся его ремонтом и обслуживанием. Подачу топлива необходимо немедленно прекратить в нескольких случаях. К ним относится:
- появление запаха газа;
- перегрев теплоносителя;
- отключение электроэнергии;
- срабатывание тревожной сигнализации;
- нарушение целостности участка трубопровода;
- пламя, погасшее без отключения и каких-либо других причин;
- некачественная работа вентиляции, недостаточная тяга в дымоходе;
- изменение показаний датчиков, которые явно свидетельствуют о неполадках в системе;
- обнаружение некорректной работы системы или приборов контроля, одного или нескольких.
Чтобы предотвратить внештатные ситуации, рекомендуют ежедневно проверять электрический кабель и его изоляцию. Любой дефект требует его скорейшей замены. Наличие в газовой котельной водопровода или емкостей с водой — обязательное условие
К дополнительным мерам предосторожности относится:
- приобретение огнетушителей;
- монтаж пожарной сигнализации;
- запас песка, другого безопасного сыпучего материала.
Для больших котельных необходимо подготовить схемы эвакуации, однако к «газовым помещениям», обслуживающим частные дома, это требование, как правило, не относится.
Помещение для этого вида нагревательного оборудования, в первую очередь, призвано обеспечить безопасность людей, поэтому говорить про принцип работы газовой котельной не совсем правильно. Действует в ней именно оборудование, а комната лишь создает оптимальные условия для приборов. И для человека, защищенного ее стенами от далеко не самого безопасного вида топлива.
В завершение темы — популярное видео, короткое, емкое и, судя по отзывам, честное:






































