Камень и дерево
Камень, как и дерево, также органично вписывается в ландшафт загородного участка. Конечно, ровная плита в природе практически не встречается, но можно использовать пиленный камень.

Следующий вариант проще в исполнении — скамья сложена из небольших глыб дикого камня. А так как такая поверхность не только холодная, но и неровная, то без подушек уже не обойтись.


Не менее популярен для изготовления основания скамьи бетон. Но делать на один раз сложную по контуру форму для заливки сложно, а вот небольшую опалубку просто. И даже «холодный шов» при заливке в два приема на прочность конструкции (такой, как на этой фотографии) не повлияет.

Еще один вариант искусственного камня — полые строительные бетонные блоки. Достаточно их скрепить между собой хорошим кладочным клеем, а в полости заложить брус, и лавочка готова.

Проекты скамеек – от простого к сложному
Рассмотрим несколько вариантов исполнения скамеек, которыми чаще всего пользуются начинающие плотники. Изготовив их, вам непременно захочется создать что-то оригинальное.
Скамья, совмещенная с беседкой
Самый простой вариант в силу нескольких факторов:
- Вам понадобится одна или две доски для сиденья и несколько брусков для опор – это все.
- Все элементы крепятся непосредственно к беседке, этим обеспечивается жесткость и прочность всей конструкции.
- Здесь не нужно фигурно вырезать различные элементы – все режется ровно по размеру, что значительно снижает вероятность ошибок и просчетов.
Отличный вариант для беседки, с которым справятся практически все. Главным недостатком такого решения является то, что скамейку нельзя перенести в другое место – она становится частью конструкции беседки.
Простейшая скамья в процессе сборки – здесь можно обойтись и без проекта
Классический вариант скамьи
Этот тип очень распространен в сельской местности ввиду простоты изготовления и высокой надежности.
Материалы, необходимые для сборки скамьи
Для этого понадобится всего одна доска толщиной 40 мм нужной ширины и длины. Какова оптимальная ширина – решать вам, а какой будет длина, зависит от размеров беседки (скамья должна быть короче на 20-30 см).
Отрезается 2 куска длиной 40 см для ножек и примерно такой же фрагмент для ребер жесткости (распилив его по диагонали, мы получим 2 усилителя). После этого в нижней части опор выпиливаются треугольники – это будут ножки и конструкция собирается с помощью саморезов.
В итоге получится примерно такое изделие
Такая скамья будет служить вам долгие годы, главное – своевременно покрывать ее защитными составами и при возможности убирать на зиму в гараж или кладовку.
Скамья со спинкой из брусков
Простая в исполнении, но очень привлекательная скамейка в беседку
Такая скамейка для беседки своими руками делается достаточно быстро и просто. Чтобы ее изготовить, не нужна инструкция на несколько страниц, все довольно несложно и наглядно.
Ее основные особенности:
- Она полностью собирается из бруска 40*50, 40*60 и других размеров. Главное, чтобы материал был достаточно прочным и сухим.
- Ширина конструкции и ее высота выбирается вами самостоятельно, исходя из особенностей беседки и высоты стола.
- Для большего комфорта в верхней части опор для спинки делается скос, но если его не будет, ничего страшного – просто спинка будет прямой, а не слегка наклоненной.
Преимуществом этой модификации является ее универсальность – на основе этого проекта можно изготовить множество скамеек с использованием как бруса, так и доски. При желании вы можете предусмотреть и подлокотники, но в беседке, как правило, они больше мешают, чем приносят пользы.
Классическая скамейка
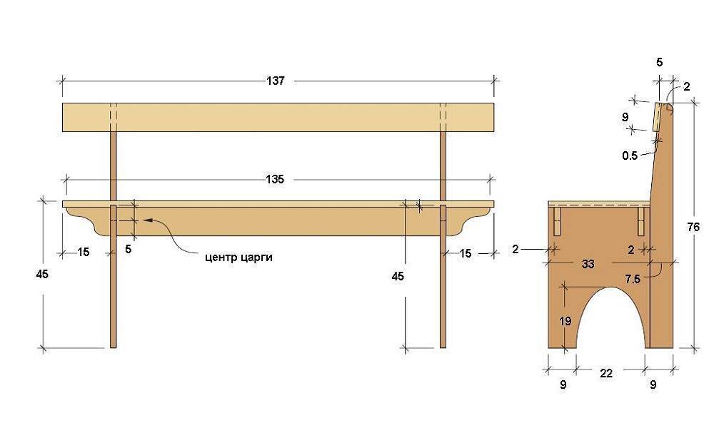
Такая скамья для беседки своими руками под силу только тем, у кого имеется оборудование, с помощью которого можно сделать фигурную резку бруса. Кроме того, в месте соединения ножек необходимо сделать на ширину бруса выемку вполдерева.
В принципе, данные элементы можно заказать у плотника, это будет стоить немного, а остальные работы провести самостоятельно. В результате у вас получится отличная скамья, которая станет настоящим украшением беседки.
На данном чертеже даны все размеры и количество комплектующих для сборки
Скамья с металлическими опорами
В настоящее время в торговых центрах можно приобрести готовые опоры для скамейки. Чаще всего они отливаются из чугунного сплава. Также можно заказать изделия для беседки, выполненные методом художественной ковки.
Вас не будет беспокоить вопрос, как сделать скамейку в беседке. Ведь достаточно приобрести бруски нужной длины и прикрутить их к опорам с помощью мебельных болтов. И все – скамейка готова.
С помощью готовых опор можно добиться отличного результата
Еще один интересный вариант
После того, как вы сделаете скамейки для беседки своими руками, можно изготовить и несколько стульчиков. Они очень просты в изготовлении, не занимают места и могут использоваться не только в беседке.
Интересный вариант – африканский стул
Стул состоит из двух досок и легко складывается. Для его производства нужен лишь лобзик, зато потом вы сможете удивить своих гостей таким оригинальным решением.
Краткая характеристика различных видов скамеек с фото
Классическая. Обычная деревянная скамейка. Конструкция простая. Внешний вид ее можно изменить, сделав спинки например крестообразными, или изменить фигуру поручней.
Металлическая. Она всегда красивая. Готовится металлический каркас, а затем соединяется вместе. Изделие можно украсить различными металлическими фигурами. Есть в таком изделии маленький недостаток: сидеть на металле некомфортно.
Поэтому на сиденье надо закрепить доски. Комбинация металла с деревом создает особое впечатление. К тому же на такой скамейке очень комфортно отдыхать.
Каменные конструкции. Это всегда не только красиво, но и очень оригинально. Вид сказочный. Такое сооружение ставится на века. Его не сдвинуть с места.
Здесь необходимо очень тщательно подойти к выбору места, чтобы скамья прекрасно смотрелась на фоне сада, всего участка, украшала его. Есть один недостаток такой скамьи: камень сильно холодит, надо продумать как утеплить сиденье.
Садовая скамейка своими руками: фото удачных самоделок
Принимая решение по поводу обустройства своего дачного или приусадебного участка, можно выбрать для изготовления скамеек и лавочек десятки различных вариантов. И пользоваться для их изготовления различными материалами – от покупных до тех, которые оказались под рукой. Нередко такие самоделки не только не уступают фабричной продукции, но и превосходят её, если не по прочности, то по эстетическим характеристикам.
Варианты садовых скамеек
Из-за того, что такие конструкции чаще всего расположены на улице без навесов, одним из основных моментов при изготовлении является обязательная обработка специальными материалами. Для металла это краска, для дерева – пропитки и лаки. В то время как цвет скамейки, её размеры, материалы и стиль выбираются исключительно в соответствии со вкусом и возможностями владельца участка.
Watch this video on YouTube
Предыдущая БлагоустройствоКак сделать благоустройство территории частного дома своими руками: принципы и основные элементы
Следующая БлагоустройствоКак создать красивый и функциональный ландшафтный дизайн дачного участка: фото-идеи
Скамья из дерева с Х-образными ножками
Такая конструкция состоит из 3 основных элементов – ножек, сиденья и спинки. Её особенность заключается именно в ножках. Фактически это два отрезка, которые соединяются между собой под углом (крест-накрест), не требуя промежуточных элементов.
Чтобы такая скамейка была устойчивой, для её изготовления нужно использовать доску толщиной 3,5-4 см и шириной 15 см. Её сборка производится в несколько этапов:
- Изготовление и соединение ножек. Подготовить 2 отрезка длиной 47 см и 61 см со следующими величинами углов:При сборке первой должна идти меньшая доска (ножка 1), а за ней – большая (ножка 2). После полной сборки скамьи меньшая доска будет располагаться с внутренней её стороны.Чтобы соединить отрезки между собой, достаточно использовать 2-4 самореза по дереву 3,5х55 мм. Для большей надежности стыки можно обработать клеем ПВА.
- Установка сиденья. Эта часть конструкции состоит из 2 досок длиной 150 см, шириной 15 см и толщиной 4 см. К ножкам их нужно прикрутить с помощью саморезов по дереву 4,2х70 мм. Для каждой доски потребуется выделить по 2 самореза на каждый край, т. е. для закрепления сиденья всего уйдёт 8 саморезов. Между досками нужно оставить зазор около 1 см, благодаря которому капли дождя не будут скапливаться на сиденье.
- Монтаж спинки. Необходимо взять 2 доски (диной 150 см, шириной 15 см и толщиной 4 см), а также 2 бруска сечением 40х50 мм (длиной 65 см). Бруски нужно закрепить к внутренним сторонам ножек с помощью саморезов по дереву 4,2х70 мм. Для большей надежности стыки нужно обработать влагостойким клеем ПВА. К данным брускам остается закрепить доски, чтобы сформировать спинку скамьи.
- Установка нижней распорки. Данная деталь сделает скамейку более устойчивой, а конструкцию – надёжной. В качестве распорки можно использовать брус 40х50 мм. Его нужно прибить между внешними ножками.
Иной способ изготовления скамьи с Х-образными ножками показывается в видео ниже:
Выбор и подготовка материалов для деревянной скамейки
Требования к материалу стоит предъявлять довольно высокие:
- отсутствие гнили, грибковых и плесневых поражений, следов деятельности древоточцев. Наличие таких повреждений сильно сокращает срок службы садовой мебели и затрудняет работу с деревом;
- единство породы. Совместив в одном изделии, например, дуб и сосну, мастер через некоторое время неизбежно столкнется с необходимостью ремонта – мягкая сосна прогниет и начнет ломаться, а дуб сохранит свою прочность. Кроме того, такая комбинация внешне выглядит эстетично только при условии очень внимательно подбора элементов;
- отсутствие явных дефектов – трещин, выпадающих сучков, смоляных кармашков и прочего.
С подготовкой пиломатериалов вопрос сложнее. Поскольку мебель будет эксплуатироваться на свежем воздухе (то есть в том числе под дождем, снегом, в периоды затяжной сырости или, напротив, излишней сухости), стоит позаботиться о защитных пропитках и покрытиях.
Мастера рекомендуют:
- растительные масла (особенно льняное) и олифу;
- покрывные краски, предназначенные для уличных работ по дереву;
- комбинированные пропитки, дающие одновременно защиту от влаги и солнца, имеющие антисептические и декоративные свойства (изменение цвета, выявление текстуры).
Металл и дерево
Самые простые по конструкции лавочки на металлическом каркасе используют квадратный профиль.
Можно сварить из профильной трубы две боковины в виде буквы «Н», а деревянное сиденье из массива будет служить еще и «ребром жесткости».

В следующем примере в качестве элемента жесткости также используется массив из дерева, но опоры выполнены в виде квадрата с поперечиной для крепления сиденья.

А это простейшая самонесущая конструкция из квадратного профиля, у которой прочность и жесткость сварного основания достаточная, чтобы сиденье сделать из деревянного бруска.

На следующей фотографии представлена скамейка фабричного производства.

рмнт.ру
Подготовка к постройке
Скамейка со спинкой очень удобна. Наиболее популярный материал для изготовления самой различной садовой мебели — деревянные поддоны. Для сооружения скамейки для дачи можно найти старые изделия или купить новые, так как они будут иметь более привлекательный вид. Одна паллета весит около 15–20 кг. Её размеры составляют 120х100х12 см (обычный поддон) и 120х80х12 см (европоддон).

Деревянные поддоны для изготовления дачной скамейки используются чаще всего
Перед началом работы надо их хорошо отшлифовать и обработать антисептическими средствами. Чертежей или схем для изготовления скамеек из поддонов обычно не делают, так как в этом нет необходимости.

Скамейка из поддонов может быть выкрашена в любой цвет
Советы по выбору материала
Выбирая поддоны необходимо обратить внимание на их целостность и внешний вид (если вы не собираетесь скамейку красить)
Важно, чтобы они были не разломанными и без слишком бросающихся в глаза дефектов. Некоторые неровности, сколы, выемки можно зашлифовать и затереть шпаклёвкой
Но если поддон эксплуатировался слишком долгое время, и уже где-то треснули доски и обломались края, то не стоит брать такой материал
Некоторые неровности, сколы, выемки можно зашлифовать и затереть шпаклёвкой. Но если поддон эксплуатировался слишком долгое время, и уже где-то треснули доски и обломались края, то не стоит брать такой материал.
Расчёт материала для устройства скамейки и подбор инструментов
Материалов и инструментов понадобится немного, так как конструкция скамейки довольно простая и лёгкая в монтаже. Материалы для лавочки:
- поддоны — 2–3 штуки;
- уголки железные — 6 штук;
- деревянные бруски для крепления ножек (длина 40–50 см, сечение 50х50 или 60х60 мм) — 4 штуки;
- бруски или толстые канаты для изготовления подлокотников — 2 штуки;
- водоотталкивающий лак или краска;
- небольшие матрасы (по размеру сидения и спинки скамейки) и подушки.
Инструменты для изготовления дачной скамейки:
- шурупы, шайбы, болты;
- набор свёрл;
- шлифмашинка;
- плотницкий рубанок;
- рулетка на 5 или 10 м;
-
дрель и шуруповёрт.
Где можно поставить кованую лавку или скамью
Согласно правилам ландшафтного дизайна, лавочки садовые кованые устанавливаются именно в зонах отдыха, рядом с водоемом, зоной барбекю или в беседке. Там, где нужна мебель для оформления гостевой зоны и приготовления блюд, подойдут лавки с сиденьями из дерева или камня. Но следует учесть, что каменные сиденья будут некомфортными в холодное время года. Если предполагается круглогодичное активное использование зоны отдыха, то лучше отдать предпочтение «теплым» материалам для отделки сидений, например, пластику или дереву.

Дополните кованую скамью подушками и пледом — и вы получите великолепный уголок для отдыха
Отлично смотрится такая садовая мебель, стоящая вдоль длинных аллей для прогулок в саду. Ее ажурные основания не закрывают обзор и не утяжеляют ландшафт. Кованая лавка или скамья, затерянная среди деревьев и кустарников, установленная возле живой изгороди в дальнем участке сада или под декоративной аркой, будет прекрасным уголком уединения для влюбленных пар. А скамья у входа в дом станет своеобразным местом ожидания или просто местом, куда можно поставить пакеты с покупками.
Скамейки для дачи из дерева своими руками
Теперь давайте поговорим немного об изготовлении таких предметов мебели. Разберем два варианта.
Деревянная скамейка без спинки
Основные детали простой формы Для работы потребуются следующие материалы:
- 4 доски сечением 80*30 мм, длина 1500 мм
- Один брус сечением 70*40 мм той же длины.
- Два отрезка по 40 см бруса 40*30 мм.
- Клееный щит размером 1000*1000 мм или больше, толщиной 40 мм – из него будут вырезаны фигурные опоры.
Готовый чертеж деревянной лавочки Все детали будут скрепляться саморезами.
- Для начала из листа картона изготавливается шаблон, повторяющий форму ножек скамьи (можно разработать собственный дизайн).
- По нему делается разметка щита – нужны две одинаковые детали.
- Края заготовок шлифуются и скругляются фрезером, для придания красоты.
- Далее в них делается по прямоугольному отверстию сечением 70*40 мм, и в них забивается соответствующий брус. Детали входят плотно и дополнительно могут соединяться клеем ПВА.
- Сверху на стойки набивается по короткому бруску для создания более широкой опоры для настила.
- С определенным отступом монтируются доски для сиденья.
Чертеж скамейки из дерева с размерами
Скамейка из дерева своими руками чертежи Очень понятный и достаточно простой план. На нем указаны размеры всех деталей и показана их форма. Несмотря на то, что конструкция имеет криволинейный вид, собирается она из прямоугольного бруса и рейки. Не хватает информации по типу крепежа, его размерах и точках установки, хотя это все можно доработать и самому.
Качественнее всего будут держать болтовые соединения. Варианты на шкантах, пазах и гребнях тоже надежны, но, не будучи плотником, сделать их качественно не получится. Так же смело используйте саморезы из нержавеющей стали – они прочны и не подвержены коррозии.
Как сделать скамейку со спинкой
Для создания скамейки со спинкой своими руками мастеру понадобятся следующие инструменты:
- митральная и циркулярная пила;
- карандаш;
- рулетка для измерений;
- дрель с оптимальным набором сверл.
Далее приводится перечень необходимых материалов для будущей скамьи (все доски следует брать по 2,5 м длиной):
- доски размером 2х3 (7 штук);
- доски размером 2х4 (1 штука);
- доски размером 2х6 (1 штука);
- брусья размером 2х2 (2 штуки);
- клей для работ по дереву;
- наждачный материал;
- комплект шурупов по 5 см и 8 см.
Начинать собирать скамейку со спинкой стоит из задних ножек. Но сначала нужно убедиться, что все необходимые доски помечены и пронумерованы. Это обезопасит от путаницы и исправлений по ходу сборки. Далее к задним ногам прибавляют передние вместе с сидением, опорой для подлокотников с нижними подрамниками. Все крепящие элементы должны быть ровными и фиксировать друг друга.
Перед началом сборки желательно выложить все доски в нужном порядке и по форме, чтобы убедиться, что все совпадает и подходит. Только потом соединяют крепежи с элементами конструкции.
Одним из последних этапов создания скамьи со спинкой будет фиксация нижних планок к основанию каркаса. К ним сверху крепится сидение и непосредственно спинка. Чтобы скрыть материалы крепежа (шурупы), их просверливают с нижней и обратной стороны планок.
Требования, которым должна соответствовать садовая скамейка
Удобство
Скамейка должна быть удобной
В первую очередь нужно продумать эргономичную конструкцию мебели для отдыха. Она должна быть удобной, комфортной. Лучше всего изготовить мебель со спинкой, на которую можно откинуться и расслабиться.
Безопасность
Безопасной
Садовая скамейка должна быть крепкой, тщательно собранной и выдерживать большие нагрузки. Для этих целей лучше всего использовать качественные материалы и фурнитуру.
Устойчивость к изменению влажности и температуры
Надежной
Так как мебель изготавливается для сада или двора, материал должен без дефектов и повреждений переносить все климатические изменения.
Дополнительный функционал – навесы над скамейками
Если на участке нет теневых зон, то для защиты от солнца можно предусмотреть дополнительно козырек. Давайте посмотрим несколько вариантов его исполнения.
Навес можно установить отдельно или сделать его часть конструкции, как на представленном фото. Тут мы видим 4 стойки из бруса, на которых сделана верхняя обвязка. Кровлю формируют установленные на ребро доски – классическая форма перголы. По бокам конструкции добавлены шпалеры из рейки. Все это станет надежным основанием для вьющихся растений, которые через некоторое время дадут красивую, и прохладную тень.
Навес-пергола
Установка большого навеса позволяется сделать из простой скамьи качели. Такой функционал оценят по достоинству и взрослые и дети.
Лавочка для дачи из пластиковых бутылок
Мы просто выкидываем пластиковые бутылки, а можно их собрать, и сделать из них удобную скамейку — диван для дачи своими руками. Для этого понадобится минимум подручных материалов и инструментов.

Чертёж сборки брусков из бутылок для скамейки очень прост
Материалы и инструменты:
- пластиковые бутылки (количество зависит от размера конструкции);
- широкий скотч;
- ножницы;
- плотная и прочная ткань;
- синтепон или поролон.
Шаги по изготовлению скамейки-дивана из пластиковой тары:
-
Отрезается верхняя часть каждой бутылки. Делается это с помощью острых ножниц. Затем отрезанную часть горлышком с закрученной крышкой вставляется в нижнюю часть.
-
После этого туда же вставляется вторая бутылка. Сверху на неё натягивается нижня часть третьей такой же обрезанной бутылки. В итоге должен получиться плотный и прочный брусок, который и будет основным материалом для изготовления скамейки-диванчика.
-
Четыре бруска скрепляется плотно скотчем. Обматывать надо хорошо, так как диван-скамейка должен получиться довольно прочным и надёжным, чтобы он мог выдержать не только большой вес, но и простоял долгие годы.
- Далее, полученные квадратные заготовки также скрепляются между собой по четыре штуки. Должна получиться ещё одна заготовка, но из 18 бутылок. Наращиваются заготовки до тех пор, пока не получится конструкция нужного размера.
-
Спинку диванчика и поручни из аналогичных брусков заготовок. Для этого связываются бутылки в другом порядке.
- Сверху для дачного диванчика можно сшить мягкий чехол из ткани, синтепона или поролона. Здесь всё зависит от фантазии мастера.
Видео: кресло из пластиковых бутылок своими руками
https://youtube.com/watch?v=AqO9GJXCby0
Какой бы вариант изготовления скамейки для дачи вы ни выбрали, каждый из них будет по-своему хорошим и недорогим. Используя только подручные материалы, минимум крепежей и инструментов, вы можете обставить территорию дачи по вашему вкусу практически бесплатно. А можно разделить участок на зоны, и в каждом разместить мебель из разных материалов. Будет очень оригинально.
Примеры и технологии создания дачных лавочек и скамеек своими руками
Конструкции лавки и скамейки имеют некоторые отличительные черты. Строительство лавки – простейший способ организовать сидячее место в саду. Изделие не имеет спинки и, в отличие от скамейки, обладает простым внешним исполнением.
Создание лавки – быстрый и легкий способ организации места для отдыха в саду
Создаваемая своими руками деревянная скамейка со спинкой может иметь более сложное декоративное исполнение:
- нестандартную форму;
- подлокотники;
- конструкцию, украшенную резными и коваными элементами.
Простейшие идеи для создания дачных лавочек
Чтобы оживить конструкцию простой лавочки, необязательно придумывать сложный чертеж и ломать голову над созданием дополнительных аксессуаров для сада. Достаточно воспользоваться двумя деревянными ящиками и несколькими досками.
Оригинальная деревянная скамейка со столиком, предназначенная для сидения двух человек
Ящики в этом случае будут выполнять функцию опор. После изготовления лавки их можно наполнить землей и организовать небольшую цветочную клумбу. Из досок делается сиденье, которое устанавливается между ящиками. Материал обязательно нужно хорошо зашлифовать с помощью наждачной бумаги, убрать все неровности и заусеницы.
Полезный совет! Из лавок на основе ящиков можно сделать садовую скамейку со спинкой своими руками. Достаточно установить конструкцию к стене и на ее плоскость прибить в необходимом месте несколько досок в качестве спинки.
Рис. 1-1. Схема скамейки с деревянными ящиками для цветов: 1 — устройство скамейки и расчет материалов: А — лаги (доски 2х4 длиной 17 1/2” — 6 шт., доски 2х4 длиной 20 1/2” — 4 шт.); В — дно ящика (3/4 фанера 20 1/2” x 20 1/2” — 2 шт.); С — тримы (доски 1х4 длиной 23 1/2” — 16 шт.); D — боковые ламели (доски 1х6 длиной 25” — 32 шт.); Е — тримы для облицовки верха (доски 2х4 длиной 45” — 8 шт.); F — каркас сиденья (доски 2х4 длиной 63” — 2 шт., доски 2х4 длиной 17 1/2” — 2 шт.); G — поперечные планки (доски 1х2 длиной 17 1/2” — 5 шт.); Н — сиденье (доски 1х4 длиной 60” — 5 шт.).; 2 — облицовка борта; 3 — установка стенок ящика для цветов; 4 — монтажные размеры стенок ящика; 5 — схема устройства дна ящика для цветов
Конструкции из древесины имеют определенный недостаток. Материал сам по себе требует постоянного ухода, а в данном случае дерево еще и соприкасается с почвой, периодически необходимо выполнять полив растений. Чтобы сделать лавочку более практичной, деревянные ящики можно заменить бетонными или каменными тумбами. Клумбы из бетона можно сделать самостоятельно или приобрести в магазине.
Для сиденья следует использовать обработанные доски или половину оцилиндрованного бревна. Выбор сырья зависит от того, в каком стиле выполнен дизайн сада или дворика. Закреплять сиденье рекомендуется металлическими уголками, фиксируемыми к бетону с применением дюбелей, а к древесине с помощью сквозных болтов или саморезов.
Рис. 1-2. Схема скамейки с деревянными ящиками для цветов: 6 — монтажные размеры каркаса сиденья; 7 — усиление конструкции скамейки; 8 — установка реек сиденья; 9, 10 — монтаж ящика
В качестве опор можно использовать вазоны с карликовыми деревьями или декоративными кустами
Единственное, но очень важное требование – емкость должна быть очень прочной. В сиденье вырезается отверстие по форме вазона в том месте, где обычно находятся ножки скамеек. Размер отверстия должен быть достаточным, чтобы создать условия для роста растения и ухода за ним, однако, при этом оно не должно превышать размер емкости
По сути, сиденье из досок помещается поверх вазонов и фиксируется за счет силы тяжести и веса сидящих
Размер отверстия должен быть достаточным, чтобы создать условия для роста растения и ухода за ним, однако, при этом оно не должно превышать размер емкости. По сути, сиденье из досок помещается поверх вазонов и фиксируется за счет силы тяжести и веса сидящих.
Угловая деревянная скамейка с ящиками для цветов, установленная на веранде частного дома
Кресло-скамейка для сада из паллет
У разумного хозяина любой материал имеет свою ценность. Садовую мебель можно без проблем сделать из грузовых паллет. Причем, разбирать-то их особо не требуется: из одной паллеты делается спинка, а из другой – сидушка. Остается только подумать над тем, из чего изготовить подлокотники и ножки.
Вот что должно получится
Одна из паллет усиливается за счет дополнительных брусков, которые крепятся с помощью саморезов.
Усиливаем углы паллеты
После этого берется брус, размерами 100х100 мм и произвольной длины, после чего отрезается 4 одинаковых отрезка, длиной до 80-ти см. Они крепятся в тех местах, где расположены бруски усиления, поставленные заранее. Как результат, достаточно будет ножек, длиной 20-25 см. Для крепления используются саморезы, длиной не меньше 150 мм. В процессе работы нужно сделать, чтобы бруски были правильно прикручены, чтобы можно было установить ножки одинаковой длины.
Прикручиваем ножки-опоры для подлокотников
Если после этих действий не удается получить абсолютно ровную конструкцию, то ножки можно подпилить по окончании, если лавочка не установится ровно.
Ножки прикрутили
Вторая палетта крепится к задним стойкам, а по обеим бокам – дощечки для подлокотников.
Почти готово
Далее – по необходимости. Если хочется иметь мягкую мебель, то достаточно приобрести поролон, вырезать необходимый кусок и обшить влагостойким материалом. Таким же образом можно поступить и со спинкой.
Если таких планов нет, то можно просто тщательно обработать деревянные элементы наждачной бумагой, после чего скамейка просто красится любой краской, любого цвета.
Готовый продукт: кресло из паллет







































