Какие стиральные машины можно установить под раковину
Под раковину-кувшинку устанавливать можно малогабаритные стиральные машины. Они должны быть невысокими и неглубокими. Для людей среднего роста умывальники в ванной комнате устанавливают на высоте 80 см. С учетом того, что раковина имеет высоту около 20 см, высота стиралки должна быть около 60 см. Для высоких людей нормальная высота установки раковины — до 100 см. В этом случае стиральная машина может быть высотой около 80 см.

Пример выбора стиральной машины под раковину по высоте
При монтаже не забудьте оставить зазор между корпусом и сифоном. При отжиме машина может вибрировать, чтобы вибрация не передавалась и требуется этот зазор.
Глубина машины тоже выбирается исходя из размеров раковины (или наоборот, смотря что уже имеется в наличии). В среднем, при размере раковины над мойкой 50 см, глубина стиралки 32-36 см, при мойке 60 см — до 51 см.
При установке учтите, что сифон не должен прикасаться к корпусу. Причина та же — вибрация при отжиме.

Выбор стиральной машины под мойку по глубине
Между корпусом машины и стеной остается солидный зазор, в который удачно укладывается канализационная труба. Если ее диаметр больше, ее можно частично спрятать в стену.
Установка раковины над стиральной машиной: плюсы и минусы
Преимуществ у раковин, предназначенных для монтажа над стиральной машиной, не так уж и много: возможность установки дополнительного оборудования и экономия места в ванной. Поэтому, прежде чем приступить к выбору умывальника и его монтажу, рекомендуем ознакомиться с минусами такого решения:
Для размещения над стиральной машиной потребуется приобретать раковину специального типа. Кроме того, при необходимости скомпоновать устройство на небольшой высоте (доступной для детей или людей маленького роста) понадобится бытовая техника нестандартных размеров.
В конструкции слива используется сифон уменьшенной высоты
Этому моменту следует уделить особое внимание, поскольку при отсутствии детали в комплекте поставки найти её будет проблематично.
Конфигурация раковины с горизонтальным сливом, которая более всего подходит для такой установки, способствует застаиванию воды и приводит к возникновению засоров. Придётся гораздо чаще мыть и прочищать как сливное отверстие раковины, так и сифон.
Удобно расположиться возле умывальника не получится, поскольку нижнее пространство под ним будет занято «электрической прачкой».
Как видите, такой способ имеет некоторые недостатки, поэтому рассматривать возможность совместной установки раковины и бытовой техники следует крайне взвешенно и только в том случае, когда других вариантов решения проблемы не существует.

Раковина над стиральной машиной — подходящий вариант для малогабаритных квартир
Выбор раковины
Раковину, которую можно установить над стиральной машиной, называют кувшинкой. Поводом для этого послужила небольшая высота чаши и характерная плоская форма в виде листьев кувшинки.
Также существуют другие конструктивные особенности, которые следует изучить, перед тем как поставить стиральную машину под раковину. В частности речь идет о расположении слива, в кувшинке он находится в задней части, а не в середине, как у стандартной раковины. Отверстие для установки смесителя может располагаться в любом месте.
Для изготовления раковин-кувшинок могут использоваться различные материалы. В последнее время популярностью пользуется новый материал – полимербетон, характеризующийся высокой устойчивостью к агрессивной среде и механическому воздействию. Полимербетон можно назвать качественной имитацией натурального камня, при визуальном осмотре трудно найти различия между природным и искусственным камнем. Также спросом пользуются стеклянные, керамические, акриловые и металлические раковины.
Форма и дизайн раковины над стиральной машиной могут быть разными. В продаже можно встретить прямоугольные, квадратные и овальные чаши с прямыми или закругленными углами. Намного реже, но все-таки встречаются чаши нестандартной конфигурации.
Цветовое решение раковины со смещенным сливом подобрать несложно, благодаря широкому ассортименту. Но при выборе изделия внешний вид большого значения не имеет, более важными считаются линейные характеристики.
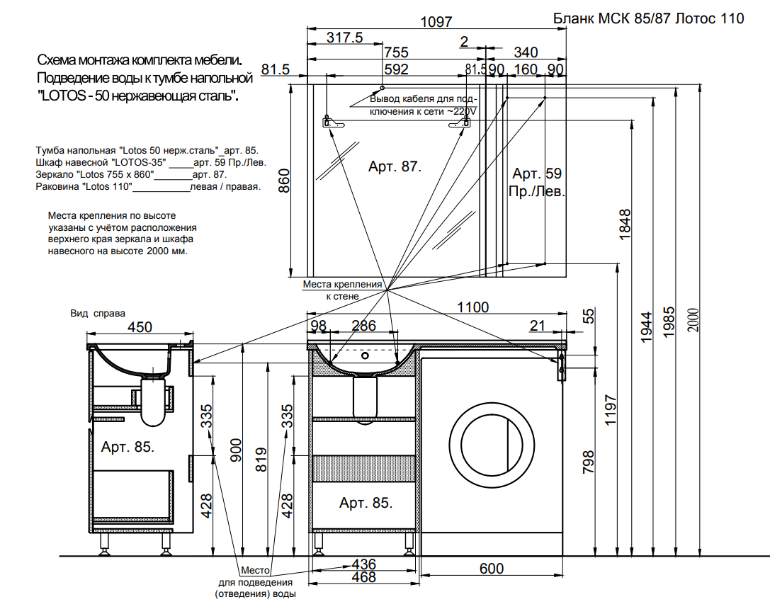
Также при решении вопроса, как встроить стиральную машину под раковину, следует учитывать размер технологического зазора между бытовым прибором и стеной, который в обязательном порядке для расположения трубок и проводов соответствующих коммуникаций.
По мнению опытных специалистов, над стиральной машиной, глубина которой составляет 36-39 см, следует устанавливать раковину 50 50 под стиральную машину. Если бытовой прибор имеет глубину 50-51 см, то длина чаши должна быть не меньше 60 см.
По форме различают круглые и щелевидные сливы. В первом случае конструкцией предусмотрена установка плоского сифона непосредственно под сливным отверстием. Так как сифон располагается над стиральной машинкой, существует вероятность короткого замыкания в случае протечек. Это можно назвать основным недостатком модели. Однако есть у круглых сливов преимущество – вода практически не застаивается, следовательно, засоры случаются реже.
Преимуществом раковины со щелевым сливом над стиральной машинкой является размещение сифона за бытовым прибором. Это предотвращает попадание воды на панель стиральной машины. Недостаток модели с таким сливом – узкое отверстие, которое из-за частых засоров требует регулярной чистки.
Некоторые модели раковин-кувшинок имеют систему слива-перелива. В этом случае чаша не переполняется и на бытовой прибор не попадает вода, благодаря наличию сливных отверстий на боковой и нижней части раковины. В качестве дополнения могут использоваться пробки-заглушки или автоматическая система.
Также можно установить стиральную машину в ванной под раковину другого типа.
Самыми распространенными можно назвать следующие варианты:
- Чаша, вмонтированная в стол, тумбу или столешницу.
- Накладная раковина на стиральную машину для ванной, установленная на любой горизонтальной поверхности.
Установка раковины
Все монтажные мероприятия выполняются аналогично установке техники и раковины по отдельности. Весь процесс включает несколько стадий: разметку, монтаж кронштейна, сборку мойки, подключение к ней смесителя, организацию канализации и водоснабжения.
Сначала выполняется установка мойки и вспомогательных элементов для стиральной машины (сама техника устанавливается уже после крепления раковины). Если необходимо осуществить монтаж стиральной машины близко от стены, все коммуникации заранее монтируются прямо в нее, снаружи остаются лишь патрубки для подключения.
В магазинах сантехники имеется широкий выбор раковин различных форм и стилевых решений
Последовательность действий:
- Выполнение разметки. На стене размечаются места фиксации кронштейнов (обычно раковина комплектуется подходящими деталями, если они покупаются отдельно, то нужно выбирать их с учетом модели раковины).
- Крепление кронштейнов. Данные работы выполняются с использованием анкеров и дюбелей. Сначала элементы не забиваются до основания, оставляется промежуток примерно 3-5 мм. Он необходим, чтобы затем отрегулировать положение мойки.
- Сборка раковины. На изделие устанавливается смеситель, к нему крепятся гибкие трубы для подачи горячей и холодной воды.
Наглядная миниинструкция перед установкой раковины
Подключение слива. Устанавливается сифон для раковины над стиральной машиной и крепятся совмещенные с ним трубы для отведения воды
Важно, чтобы крепление было герметичным (это поможет избежать появления течи): нужно закрепить все необходимые прокладки, а некоторые части конструкции зафиксировать силиконовым герметиком.
Установка раковины над стиральной машиной с помощью кронштейнов. Данная операция выполняется с использованием уровня
Иногда вместе с крепежом имеется специальный крючок, тогда необходимо будет выполнить разметку для установки детали. После выравнивания раковины кронштейны плотно забиваются в стену, выполняется затягивание анкеров и дюбелей.
Раковина над стиральной машинкой — отличный вариант для небольших экономии пространства
Расположение коммуникаций за стиральной машиной
Для узких стиральных машин можно подобрать мойку на 15-20 см шире, и устанавливаем сифон и слив у стены
- Подключение слива к коммуникациям. Шланги вкручиваются с патрубком и соединяются со смесителем.
- Установка стиральной машины. Она производится только тогда, когда раковина установлена и подключена к коммуникациям. Положение техники необходимо отрегулировать при помощи ножек на технике, чтобы машина устойчиво стояла и не тряслась при работе.
- К машинке подключаются коммуникации. Производится подключение устройства к холодной воде.
Для просторной ванной комнаты подойдет раковина, вмонтированная в столешницу, рядом со стиральной машиной
Удобное расположение умывальника над стиральной машиной в небольшой ванной комнате
Экономное месторасположение стиральной машины с раковиной в нише ванной комнаты
Вода может подаваться в раковину и другим способом, если рядом с ней установлена ванна. На ней устанавливается смеситель с поворотным краном, который подает воду и на мойку. Тогда два смесителя не потребуется и не нужно будет устанавливать дополнительные коммуникации за стиральной машиной. При этом желательно закрепить раковину таким образом, чтобы она немного наступала на край ванны и при повороте смесителя вода не попадала на стиральную машину.
Перед началом проверки рекомендуется осмотреть места подключения всех коммуникаций, так как даже небольшое количество воды при попадании на стиральную машину может вывести ее из строя или привести к короткому замыканию.
Небольшая раковина, установленная на гранитной столешнице над стиральной машиной
Как правильно подобрать оборудование?
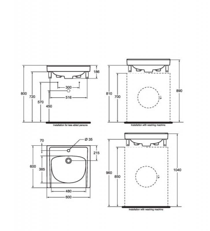
Начнем с особенностей подбора стиральной машины. Теоретически можно выбирать любую понравившуюся модель. Но чтобы раковиной, установленной над бытовой техникой, было удобно пользоваться, устройство не должно быть выше 60 см.
Глубина машины тоже ограничивается. Она может варьироваться в пределах 34-40 см. Таким образом, получается, что для установки под раковину можно выбрать только компактную модель.
При выборе стиральной машины, над которой будет установлена раковина, нужно помнить о том, что между стеной и прибором должен быть зазор. Как правило, вместимость таких машин невелика и редко превышает 3-3,5 кг сухого белья. Такой вариант не всегда приемлем, поэтому некоторые решаются на монтаж стандартного оборудования.
При его выборе нужно понимать, что к высоте выбранной машины нужно будет добавить как минимум 25 см. Это высота раковины и размеры зазора между плоскостями приборов.Несколько сложнее определиться с глубиной прибора. Он должен быть полностью закрыт раковиной, а лучше всего, чтобы чаша выступала за границы стиральной машины в виде небольшого козырька.
Таким образом оборудование будет надежно закрыто от водяных брызг, неизбежно летящих вокруг в процессе использования чаши. Стиральные машины, где панель управления располагается на верхней крышке прибора в этом случае выбирать не стоит.
Оптимальный вариант – блок управления на фасадной части стиралки. Так им будет удобно пользоваться, и брызги на панель попадать не будут. При выборе глубины машины нужно понимать, что подвинуть оборудование вплотную к стене не удастся. Между прибором и стеной должен остаться зазор величиной около 8 см, где будут размещаться инженерные коммуникации.
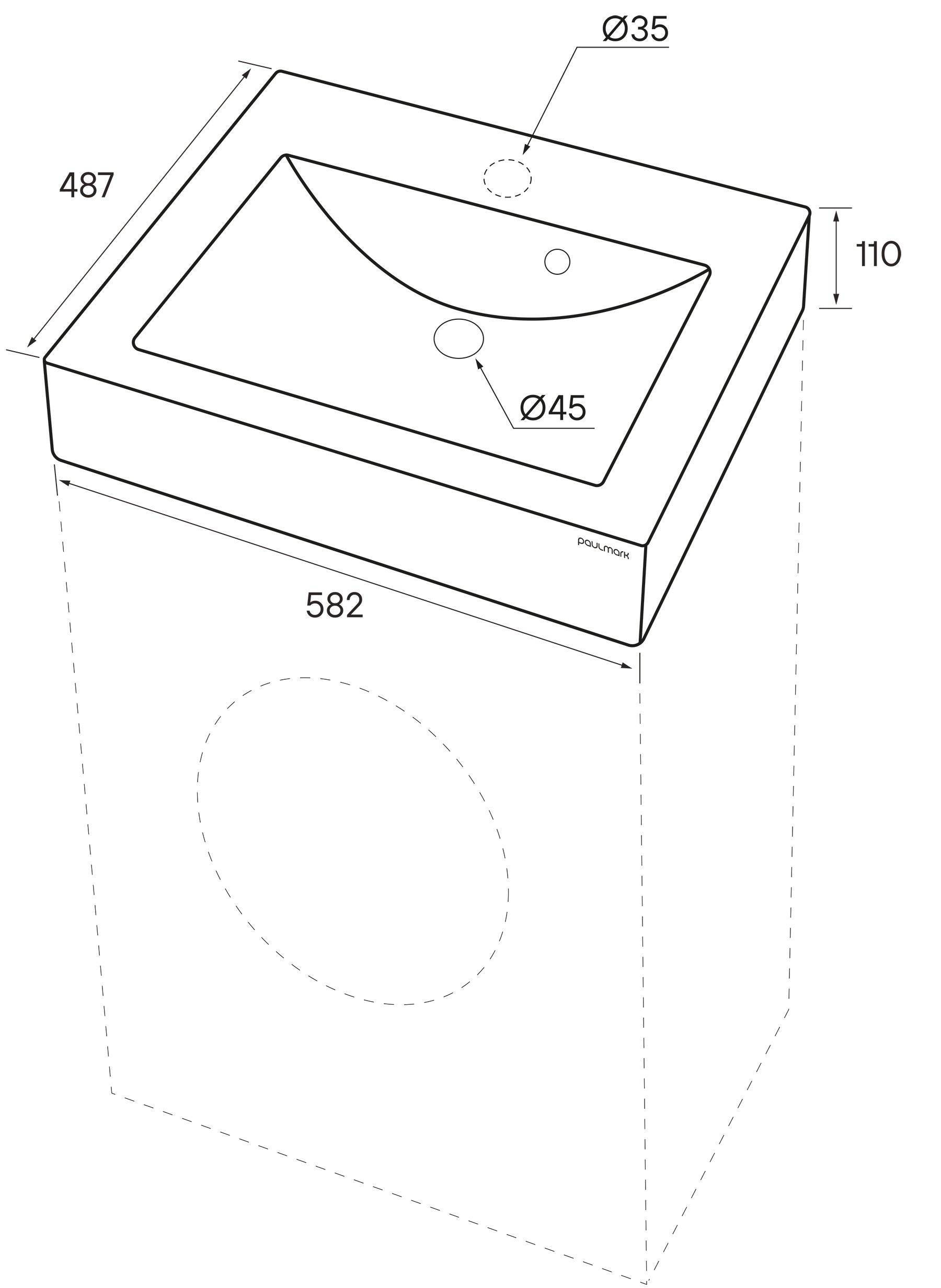
Получается, что выбор придется остановить только на компактной или даже суперкомпактной модели, глубина которой не превышает 40 см. При выборе раковины тоже есть определенные сложности. Для установки непосредственно над стиральной машиной выбирают только плоские модели. Стандартные чаши со сливом по центру не подойдут. В продаже можно найти специальные раковины кувшинки для установки над стиральной машиной.
В продаже можно найти комплекты из стиральной машины и раковины. Такое решение можно считать лучшим для небольшой ванной комнаты
Их главная особенность – размещение сливного отверстия и сифона в задней части чаши. Они могут располагаться на боковой или задней стенке раковины. Эксплуатационные характеристики кувшинок различаются в зависимости от типа слива.
Выделяют два вида слива:
- Вертикальный. Сифон плоского вида размещается непосредственно под сливным отверстием. Основной минус такой системы в том, что сифон находится над стиральной машиной, что при возникновении протечки грозит проблемами с проводкой или коротким замыканием. Весомый плюс – хороший отток воды.
- Горизонтальный. Предполагает размещение сифона на максимально близком к стене расстоянии. Это предполагает, что некоторую часть пути стоки проходят в горизонтальном направлении. Это повышает вероятность засоров. Несомненный плюс системы – полная электробезопасность, поскольку сифон находится в отдалении от электроприбора.
По форме и размерам кувшинки могут быть абсолютно разными. Среди них легко подобрать подходящую для своей ванной комнаты модель. Как и стандартные раковины, они могут оснащаться отверстием под крепление смесителя, системой слива-перелива, пробками заглушками и другими аксессуарами. Если планируется монтаж раковины, встроенной в столешницу, то можно подбирать любую подходящую модель.
Раковина над стиральной машиной: виды
Раковина кувшинка может иметь сливное отверстие по центру или сбоку. Модели со сливом по центру имеют большую глубину — выходной патрубок требует наличия места. В среднем глубина такой раковины-кувшинки 18-20 см. При установке между дном и верхней крышкой машины имеется существенный зазор. С одной стороны там можно хранить мелкие вещи, с другой — убирать не очень удобно. Но таких моделей большинство, так как при таком строении меньшие требования предъявляются к балансировке (устойчивости) стиральной машины — зазор позволяет не переживать насчет вибрации при работе.
Зазор остается
С точки зрения электробезопасности такой вариант не самый лучший — если протечет сифон, вода польется на машинку. При этом высока вероятность того, что она попадет на токоведущие части, что вызовет поломку машины
Так что при установке стиральной машины особое внимание уделите герметизации. Возможно, кроме прокладок и уплотнителей имеет смысл использовать герметик
Только берите не акриловый, а силиконовый, и лучше — для аквариумов. Он точно служит долго.
Слив сбоку и сзади
Слив сбоку встречается реже. В этом случае патрубок смещен назад и вбок и находится за корпусом машины. При таком строении раковину можно практически уложить на верхнюю крышку. Дно почти плоское, борта получаются вровень с ним или могут быть даже чуть выше. Глубина таких моделей в передней части меньше — порядка 10-15 см, а задняя, где находится сливной патрубок, тоже имеет высоту около 20 см.
Раковина над стиральной машиной со сливом сбоку и сзади — PAA CLARO
Есть ее клон — белорусская модель Belux Идея.Разница в цене, надо сказать не слишком большая — 234$ за прибалтийский вариант и 211$ за белорусский.
Есть еще несколько вариантов в латвийских магазинах: STATIO Deja, POLYCERS izlietne Compactino. Это тоже произведения местных фирм. Похожая модель имеется российского производства — Кувшинка Кватро.
Варианты раковин-кувшинок с боковым сливом
Чем хорош такой тип раковины? Слив смещен назад, а значит даже при появлении протечки вода на машину не попадет, значит, вреда ей не принесет.
Слив сзади
Есть чуть более привычная разновидность — слив смещен назад, но без сдвигов в сторону. Все плюсы такой конструкции те же, категория чуть более многочисленная — не так непривычно они выглядят. Есть и в этой группе нестандартный вариант — модель BELUX ЭВРИКА (беларусского производства). В Эврике (на фото справа) смещен в сторону смеситель, так как часть, прикрывающая сток, съемная — для возможности прочистки.
Раковина над стиральной машиной со смещенным назад сливным отверстием
Этих моделей раковин намного больше. Их примерно столько же сколько и со сливами в центре, так что выбор есть. Разброс по ценам вполне приличный — от российской Сантек Пилот 50 (размеры 60*50 см) за 36$ до финской Ido Aniara 1116601101 за 230$ (размер 60*59 см). Если поискать, то наверное, можно найти и дешевле, и дороже.
Со столешницей
Если положение с местом в ванной или санузле не столь критическое, можно установить раковину над стиральной машиной со столешницей. Машину устанавливают под столешницу. Это вариант с точки зрения электробезопасности наиболее предпочтительный. Есть один минус — раковины со столешницей стоят дорого.
Стиралку можно поставить под столешницу
Чтобы убрать диссонанс между занятой корпусом частью и пустующим местом под мойкой, во вторую часть приделывают дверки, а внутри можно сделать полочки или ящики для хранения химии или других вещей.
Раковина над стиральной машиной со столешницей
Есть и другие модели — угловые, скругленные и т.п. Их подбирать надо под каждый конкретный интерьер с собственными размерами.
Ищем подходящую раковину
Стандартная мойка, сливное отверстие которой расположено по центру, для монтажа над стиралкой не подойдет. Над машинкой-автомат устанавливаются специальные раковины «кувшинки», слив и сифон у которых находится в задней или боковой стенке чаши. Благодаря такому существенному отличию, сантехника будет смотреться в комнате эффектно и органично.
Отличным вариантом станет плоская раковина PAA Claro от латвийского производителя. Эта модель разработана специально для установки над стандартными стиралками. Глубина чаши составляет всего 6 см, а общая высота конструкции не превышает 9 см. В отличие от других предложений на рынке сантехнического оборудования, заявленные размеры PAA Claro соответствуют действительности. Сифон ставится не под умывальник, а сбоку и сзади, что позволяет не «красть» лишние сантиметры между техникой и мойкой.
Раковина органично впишется в ванную комнату, оформленную в любом стиле. Интересная особенность PAA Claro – съемная мыльница, выполненная из жидкого камня, прикрывающая сливное отверстие. Выбрав эту эргономичную и современную модель, можно не переживать, что мойка будет слишком высоко. Это тот случай, когда сантехника именно «лежит» на стиральной машинке, создавая ощущение единой конструкции.
Сантехника PAA Claro может быть поставлена над обычной машиной-автомат глубиной 47-48 см, а это полноразмерное оборудование с достаточно вместительным барабаном, что немаловажно для больших семей. Поэтому, задумав установить раковину над стиральной машинкой, есть смысл почитать отзывы о продукте PAA Claro
Пользователи довольны своим выбором и не перестают радоваться стильной и современной мойке.
Тонкости монтажа и уход
Монтажные работы реально провести за один день, даже своими руками. Исключением станет облицованная кафелем стационарная столешница из бетона. Тут все зависит от длительности плиточных работ.

При планировании совместной конструкции располагайте коммуникации так, чтобы избегать прямого контакта электричества с водой.
Если раковина небольшой глубины, позаботьтесь о том, чтобы верхняя часть машинки была прикрыта хоть минимальной защитой от попадания брызг. Сама чаша должна выступать на 4 см и более.
Патрубки для слива, сифоны не должны касаться стиральной машины. Крепления могут расшататься от вибрации при стирке с отжимом. Они не должны располагаться прямо над корпусом стиралки. Варианты правильного размещения: сбоку (если чаша мойки сбоку); сзади у стены.

После установки сифона и соединений стоит как следует проверить герметичность. Уборка протекшей воды в пространстве за стиралкой затруднительна. Соединения от стиральной машины стоит дополнительно закрепить хомутом.
В процессе использования стиральной машинки следует регулярно проверять целостность проводов, герметичность соединений, шлангов, труб.


На стадии монтажа следует обеспечить свободный доступ для уборки и осмотра соединений. Как бы ни хотелось установить всё максимально компактно, плотно придвигать к стене не стоит. Во-первых, на наливном шланге может образовываться конденсат, который может привести к появлению плесени при касании со стеной. Второй повод свободно разместить все модули — вибрация работающей техники, которая может привести к нарушению целостности плитки, расшатать соединения труб.

Грамотный расчет каждого элемента и надежный монтаж гарантируют бесперебойную службу данной конструкции, которая отлично организует интерьер даже самой миниатюрной ванной.
Обзор производителей стиральных машин под раковину
Немногие производители стиральных машин предлагают модели, которые можно разместить под мойкой. Можно приобрести стиральные машины bosch под раковину, также таких производителей, как Zanussi, Electrolux, Candy и Eurosoba. Подобные модели имеют максимальную глубину 51 см, высоту 70 см и ширину по параметрам умывальника.
Пример модели Бошь, которая устанавливается под мойку, ее основные характеристики
Чаще всего оборудование под мойку имеет более высокую стоимость, фронтальную загрузку и наличие всего комплекта режимов.
Производитель из Италии предлагает стиральные машинки Канди под раковину. Можно купить одну из представленных пяти моделей. Они отличаются разной скоростью отжима от 800 до 1100 оборотов. При этом все модели имеют равные габариты.
Стиральная машина под раковину Candy имеет бак из такого композитного материала, как силитек. Кроме того в технике предусмотрен таймер и электронное управление с выбором разных режимов стирки. Это бюджетный вариант, предназначенный для стирки 3,5 кг белья.
Компактная конструкция Канди
Недорогое оборудование представляет и Занусси. Модели этого бренда обладают идентичными параметрами, но различаются числом оборотов. Устройство оснащено механизмом защиты от протечки.
Агрегат Занусси
Пользуются популярностью и модели от шведской компании Электролюкс. Они отличаются скоростью отжима. С их помощью можно выстирать до трех килограммов белья.
Можно выбрать и модель компании из Швейцарии Eurosoba. Подобное оборудование известно превосходным качеством сборки, надежностью и разнообразием программ. Можно приобрести готовый комплект автомат с умывальником. Производитель использует барабан и бак только их прочной нержавеющей стали.
Вариант установки современной модели
Часто производится установка стиральных машин под раковину гонец. Эта компания производит специальные умывальники для такого вида машинок.
Цены и характеристики некоторых моделей представлены в таблице.
| Модель/Фото | Характеристики | Цены, руб. |
| Candy Aqua 2D1040 07 |
|
18 500 |
| Electrolux EWC 1350 |
|
32 600 |
| Zanussi FSC 1020 С |
|
31 600 |
| Eurosoba 600 |
|
29 990 |
| Daewoo Electronic DWD-CV701JC |
|
19 000 |
| Zanussi FCS825C |
|
25 000 |
| Candy Aquamatic 2D1140-07 |
|
21 000 |
| Eurosoba 1100 Sprint |
|
45 000 |
Отзыв, модель Candy Aquamatic 2D1140-07
Отзыв, модель Eurosoba 1100 Sprint






































