Забежная лестница своими руками: схемы + пошаговая инструкция с фото


Warning: Undefined array key 9 in /var/www/stekljannyj.ru/data/www/stekljannyj.ru/wp-content/plugins/fotorama/fotorama.php on line 73

Warning: Undefined array key 9 in /var/www/stekljannyj.ru/data/www/stekljannyj.ru/wp-content/plugins/fotorama/fotorama.php on line 74
Содержание

Cоветы и рекомендации специалистов

Чтобы изготовить максимально надежное и безопасное устройство, специалисты рекомендуют учитывать следующие нюансы:

  1. Соблюдайте необходимые пропорции в параметрах. Ширина по узкому краю ступени должна превышать 10 см, по широкому краю – 40 см, а по центру – 20 см.
  2. Высота ступеньки должна равняться средней ширине шага членов семьи.
  3. Лестничную конструкцию лучше изготавливать комбинированным способом.
  4. Отлично смотрятся изделия из древесины на каркасе из металла.
  5. Даже если выбрали основным материалом бетон, то ступеньки изготовьте все равно из дерева.
  6. Количество ступенек в марше рекомендуют делать не меньше трех. Их число должно быть нечетным, поскольку психологами доказано, что начинать и заканчивать подъем легче с одной и той же ноги.
  7. Высота ограждения должна составлять в среднем 900-1200 мм.
  8. Крепить изделие следует к несущим элементам.

Технические требования к забежным лестницам

Для того чтобы забежная лестница прослужила долгое время и была безопасной для людей, она должна строиться в соответствии с техническими нормами и правилами. Поэтому начинать возведение данной конструкции следует с замеров и расчетов. Также следует подготовить проект и чертеж будущего изделия.

Существует ряд требований для данной лестницы

Основные технические параметры для возведения конструкции следующие:

  1. Ступени должны иметь определенный размер (самая узкая часть – от 100 мм, а самая широкая – от 400 мм).
  2. На прямых промежутках, которые отделяют повороты, ступени в ширину должны иметь одинаковый размер.
  3. Высота ступеней варьируется в пределах от 12 до 22 см.
  4. Край проступи не должен выступать более чем на 4 см.
  5. Ограждения высотой от 90 до 120 см.
  6. Ширина марша – не менее 90 см.
  7. Оптимальный угол наклона – 30°, но не более 45°.
  8. При постройке П-образной лестницы, в которой используются забежные ступени, с поворотом на 180° (то есть, два поворота) расстояние между маршами должно составлять не менее, чем четверть от ширины ступени (это позволит сохранить глубину ступеней на повороте удобной и обеспечит безопасность при перемещении).
  9. При составлении проекта учитывают также и расстояние от марша до перекрытия между этажами. Оно может быть не менее 2 метров.

В данном видео вы подробнее узнаете о забежной лестнице: Если следовать нормам строительства, лестница с поворотом прослужит долгое время и не станет источником получения травм.

Другие методы

Рассчитать забежную конструкцию другими способами несколько сложнее. Для этого необходимо обладать базовыми знаниями в области черчения и проектирования.

Для выполнения расчета забежной лестницы с поворотными ступенями на 90 и 180 градусов датским методом необходимо расчертить конструкцию в двух проекциях: горизонтальной и вертикальной по внутренней тетиве. На внутренней тетиве по двум осям откладываются высота ступеней (вертикаль) и их узкая часть (горизонталь). Отрезки соединяют по ребрам и переносят их на горизонтальную проекцию.

Посредством расчета деревянной лестницы с поворотом на 90 или 180 градусов через забежные ступени методом разбежки или подъема линий удается учесть кривизну конструкции как по вертикали, так и по горизонтали. В первом случае вначале нужно определить границы рядовых ступеней, а после этого перенести чертежи в вертикальную проекцию внутренней тетивы. Как и в предыдущем способе необходимо разместить разметку таким образом, чтобы полученные отрезки посредством проведения перпендикулярных линий можно было переносить в другую плоскость.

Для расчета необходимо выполнить чертеж конструкции в горизонтальной и вертикальной плоскостях

В основе метода подъема линий также лежит ось координат. По горизонтали отмечается глубина проступи, а по вертикали – высота ступеней. Границы забежных ступеней выделяются радиусной окружностью и переносятся на горизонтальную проекцию.

Параметры лестницы с поворотом 180 градусов

Рис. 1 Общий чертеж лестницы

Рис. 1 Общий чертеж лестницы

  • Y — высота проёма — как правило определяется высотой этажей Вашего дома
  • X — длина проема — зависит от того, сколько места Вы можете выделить в своём доме для лестницы
  • E — ширина лестницы — зависит от того, сколько места Вы можете выделить в своём доме для лестницы
  • Z — толщина ступеней — геометрический параметр материала (например, досок), из которых Вы планируете строить лестницу
  • F — выступ ступеней — расстояние на которое верхняя ступень будет нависать над нижней
  • C — всего ступеней — за сколько шагов Вам будет комфортней всего переместится с этажа на этаж
  • P — ступеней на нижней тетиве — количество ступеней до площадки, зависит от Ваших предпочтений и геометрических характеристик дома

Рис. 2 Обозначение ступеней

Функция «Показывать подступенки: H»

Рис.3 Исполнение лестницы с подступеньками

Вы можете строить свою лестницу с подступеньками, или без них. Данная функция позволяет увидеть, как будет выглядеть конструкция при обоих вариантах.

Функция «Верхняя ступень ниже пола 2 этажа: SP»

Рис. 4 Исполнение лестницы, с верхней ступенью ниже пола 2 этажа

В зависимости от взаиморазмещения конструкции и пола верхнего этажа:

  1. Верхняя плоскость верхней ступеньки на одном уровне с плоскостью пола верхнего этажа;
  2. Верхняя плоскость верхней ступеньки ниже плоскостью пола верхнего этажа на высоту ступени.

Выбор того, или иного взаиморазмещения может зависеть от: толщины межэтажных перекрытий, желаемого взаимоотношения количества ступеней и их высоты, длины заготовок для косоуров и длины проёма, желаемого угла наклона лестницы, или просто вкусов и предпочтений хозяина дома

Обратите внимание, на рисунке, на котором верхняя ступень ниже пола 2 этажа, толщина межэтажного перекрытия больше, чем на рисунке, на котором, верхняя ступень на уровне пола 2 этажа. При толщине перекрытия, меньше высоты ступеньки, косоур просто не упрётся в перекрытие (поэтому при демонстрации второго варианта, эту толщину пришлось увеличить)

Функция «Черно-белый чертеж:»

Рис. 5 Черно-белый чертеж лестницы

Использовать данную функцию целесообразно в двух случаях:

  1. Если Вы привыкли работать со стандартными ГОСТировыными чертежами, и, соответственно, лучше воспринимаете графику без цветового наполнения.
  2. Если Вы собираетесь распечатать результаты работы калькулятора. Тогда и меньше краски/тонера потратите и визуальное восприятие рисунков на бумаге будет лучше. И, конечно же, данная функция используется при печати на чёрно-белом принтере https://pb365.ru/

Функция «Изменить направление подъема: LR»

Рис. 6 Вид лестниц с разными направлениями подъёма

К конкретной лестнице, которая размещена определённым образом в доме можно подойти сбоку с двух сторон или только с одной — когда лестница соприкасается со стеной. В последнем случае существует два варианта размещения конструкции относительно наблюдателя:

  1. Подъём слева направо;
  2. Подъём справа налево.

Данная функция позволяет визуализировать оба этих варианта.

Как сварить лестницу из металлического уголка – инструкция и видео

Планировка дома очень часто предполагает наличие лестницы, то ли в качестве подъемника на этаж, или на чердак. Имея навыки сварочных работ, не предоставит большого труда изготовить простую металлическую лестницу самостоятельно.

Лестница изготавливается из уголков и приваренной пластины из металла между ними.

О том, как сварить лестницу из металлического уголка с расчетом, будет описано ниже.

С чего начать

I. Основные требования:

  • Ширина лестницы в пределах 800÷100мм.
  • Ступени лестницы должны быть хорошо видны в любое время суток.
  • Обязательная установка перил для лестниц с количеством ступенек больше 3шт.
  • Опорные элементы должны выдерживать нагрузку 180÷200 кг, для перил –100 кг.
  • Уклон лестницы зависит от места установки:
  1. не больше 38° – жилых помещений.
  2. не болеше 45° – для квартирных.
  3. 63÷74° – для чердачных лестниц.

Расчет угла лестницы

  • Между лестницей и стеной должен соблюдаться промежуток 5÷6 см.
  • Если лестница устанавливается на постройку из 2-х и больше этажей обязательно необходимо изготавливать, также общий пролет между лестницей и домом.
  • Лестница для подъема выше 1-го этажа должна быть пожаробезопасной.
Популярные статьи  Как выбрать потолочный карниз для штор: виды и особенности конструкций

II. Определится с местом установки

III. Расчет. Выполнение расчет несущей способности оптимальной поручить специалисту и воспользоваться уже готовыми чертежами. Расчету на жесткость и прочность подлежат балки однопролетные и одноконсольные. Прогиб нагружаемых элементов 1:400, нагрузка 1:300 кг/м 2

Оптимальное сочетание параметров лестницы:

2Н+А=0,64 м

Н – высота ступени, оптимальная высота 160÷180мм или 180÷120мм.

А – ширина ступени 200÷320 мм.

Количество ступеней определяется исходя из угла наклона лестницы и размера ступенек. Замеряется общая высота и делится на количество ступеней.

Высота перил: не меньше 900мм.

  • Высота пролета 2850 мм, высота ступеней берем 160÷170мм. h=2850/160=178, округляем = 190мм, для более комфортного шага и соблюдения пропорции
  • Количество ступеней: 2850/190=15 шт.
  • Проверяем соотношение: 2*190+260=640 мм.
  • Определяем длину АВ: 260 мм*15шт=3900мм.; СВ = 2850мм.

АВ 2 =е 2 +в 2 =x 2 ; АВ=3900 2 +2850 2 =4830 мм=4,83 м и 5мм для профиля.

В случае если при расчете ступень, оказывается недостаточной глубины, для установки стопы, ее можно удлинить, за счет нависания верхней ступеньки над нижней, допускается максимальное увеличение до 50мм.

IV. Чертеж. Основными элементами металлической лестницы являются: уголок, швеллер и двутавр. Ступеньки могут быть из листов металла или решетки, отделанные специальным защитным или декоративным материалом. Отделка зависит от места установки конструкции, к универсальной можно отнести дерево и камень. При использовании лестницы вне помещения могут быть использованы специальные профилактические накладки.

Расчет лестницы с забежными ступенями

Определить геометрию конструкции можно вручную или с помощью онлайн-калькулятора. В любом случае нужно найти необходимое количество нижних, поворотных и прямых ступеней, длину и высоту проема, ширину лестницы. Учитывается толщина проступи и тетивы, выступ края детали за проступенок.

Методы расчета забежных лестниц

Для определения габаритов ступеней, крутизны и радиуса закругления применяют несколько способов расчета:

  • Графический упрощенный. Используется для расчета лестниц с поворотом на 90° или 180°. На чертеже, выполненном в масштабе, проводят центральную линию, которая соответствует траектории движения. Ее разбивают на одинаковые по размеру проступи согласно количеству ступеней и глубине, выдерживая ограничения по ширине узкой и широкой части.
  • Метод пропорций. Применяется при расчете более плавного изгиба забежной лестницы. Часть проступей прямого марша изменяют на клиновидные. При такой раскладке перемещаться гораздо удобнее, так как нет резкого перехода на винтовой промежуток подъема.
  • Датский метод. В результате построений получается проекция с отрезками, равными длинам узких сторон ступеней. Их переносят на чертеж. После пересчета из масштабных величин получают нужные натуральные размеры.

Применяют и другие методы расчета — подъема линий или развертки. Они требуют точных графических построений и знания законов геометрии.

Расчет угла подъема и величины проема

Самый распространенный вариант забежной конструкции — два прямых марша, расположенных перпендикулярно друг другу в углу помещения. Наиболее комфортный уклон определяет соотношение 1:2-1:1,75 или 30° в угловых единицах.

Примерное количество проступей находят делением высоты проема с учетом плиты или балки перекрытия на рекомендуемый вертикальный размер ступени. Например, в комнате высотой 3 м нужно будет разместить 3/0,15=20 ступенек минус одна (подъем на пол второго этажа).

Графический расчет на бумаге проводят по схеме:

  1. Проводят окружность радиусом, равным ширине марша.
  2. Размечают на чертеже оба марша с количеством ступеней, полученных предварительным подсчетом — делением высоты этажа на размер подступенка.
  3. Из точки желаемого начала закругления прочерчивают линии, перпендикулярные маршам. Их пересечение обозначают точкой А.
  4. Соединяют прямой точку А с центром окружности. Это — ось пропорций.
  5. Проводят линию через середину маршей и окружности, разбивают на винтовом промежутке на отрезки равной длины, соответствующие ширине ступени. Обычно, это 3-4 участка.
  6. Соединяют точку А с точками пересечения центральной линии по граням проступей. При построении контролируют ширину участка, соответствующего узкой стороне клина.
  7. Если он в переводе из масштаба меньше 10 см, точку А нужно выбрать заново. Отступают еще на несколько ступеней и проводят построения.

Можно увеличить количество забежных ступеней на закругленном участке, если марш достаточно широкий. Тогда условие, при котором узкий край проступи не менее 10 см, сохранится. В результате должна получиться фигура, соответствующая заданным требованиям. Размеры проема для лестницы жестко завязаны с углом наклона. Чем круче конструкция, тем меньше должна быть величина отверстия в потолке.

Определить границы люка можно на чертеже готовой лестницы, измерив расстояние между проступью и низом перекрытия. Если высота меньше 2 м, корректируют величину проема тремя способами — отодвигают плиту или балку (что часто невозможно), увеличивают уклон прямого марша (не всегда удается добиться комфортного угла подъема) или добавляют количество забежных ступеней вплоть до винтового варианта.

Вычисление количества обычных и забежных ступеней

На чертеже выделяют контуры каждого элемента. Теперь можно определить количество прямоугольных и клиновидных проступей. Но спешить с раскройкой материала не стоит. Лучше окончательно подогнать детали на месте.

Для вычисления точного количества обычных и забежных ступеней можно дополнительно воспользоваться онлайн-калькулятором. В поле для ввода указывают высоту помещения, длину стены, вдоль которой будет располагаться лестница, число поворотных и нижних проступей, ширину марша, толщину пиломатериалов.

После получения результатов, их сравнивают с вычисленными вручную. Они должны быть примерно равными. Затем приступают к изготовлению деталей и монтажу забежной лестницы своими руками. Можно приобрести готовый вариант, подходящий по размерам и характеристикам.

Расчет размеров и создание чертежей

Надобность в самостоятельном составлении чертежа отпадает. Существуют способы, благодаря которым данный процесс выполняется быстро. Например, специальные компьютерные программы, сайты, приложения, с помощью которых можно рассчитать высоту и длину лестницы.

Забежная лестница своими руками: схемы + пошаговая инструкция с фото
Например, специальные компьютерные программы, сайты, приложения, с помощью которых можно рассчитать высоту и длину лестницы.

Некоторые используют уже готовые чертежи. Найти их можно в интернете, затем подобрать подходящий. Но надобно быть внимательным: могут попасться неправильные измерения, которые не годятся для эксплуатации.

Забежная лестница своими руками: схемы + пошаговая инструкция с фото
Некоторые используют уже готовые чертежи.

Еще один вариант – онлайн-калькулятор. Он является самым удобным для выполнения расчетов. Главный плюс – корректировка заданных цифр. Процесс происходит автоматически, пользователь получает чертеж на основе указанных значений.

Забежная лестница своими руками: схемы + пошаговая инструкция с фото
Еще один вариант – онлайн-калькулятор.

Часто прибегают к методу пропорций. Используется он для изделий, имеющих г-образную и п-образную форму. В таком варианте необходимо выполнить дальнейшие действия:

  • На проекте выполняют разметку середины марша, по ней проводят прямую, на которой отображают отдельные части, равные ширине поступи.
  • Посредине забежных и прямых ступеней отмечают рубеж.
  • На половине поворотной площадки выполняется точная отметка, по ней обозначается участок.
  • От черты откладывается примерно половина размера ступеней.
  • От проверенной численности ступеней вычитается количество прямых линий, получившихся по схеме. На середине участка стоит помнить о проверке глубины. Если он рекомендованного – число ступеней понижают.

Пошаговая инструкция строительства

Наконец, можно приступить к изготовлению самой лестницы. Описанная ниже схема рассчитана на человека, который знает, что такое «сварить металл», но не готов делать что-то сложное, с обилием деталей.

Второй вариант зачастую предпочтительнее.

Эта схема стандартна, под нее можно подстраивать другие варианты: с пандусом, с деревянными ступеньками, с каменными, плиточными. Естественно, крыльцо должно гармонировать с домом, а лестница – быть гармоничным началом сооружения. Для этого нужно тщательно выбирать дизайн будущей конструкции, приглядываясь к другим вариантам лесенок для крыльца на даче или в загородном доме.

Деревянная лестница с забежными ступенями своими руками

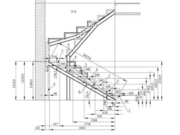
Начать расчет лестницы из дерева нужно с определения количества ступеней, для этого нужно взять расстояние от пола первого этажа до пола второго этажа и разделить на примерную высоту ступени. Рассмотрим на примере, где высота лестницы 2700 мм, а длина свободного места выделенного для лестницы 3300 мм.

Габариты будущей лестницы

Разделив расстояние между полами первого и второго этажа на среднюю рекомендованную высоту ступени 2700 / 155, мы получаем количество ступеней равное 17,41 штук, округляем до 17 штук и отнимаем одну ступень, так как пол второго этажа уже является одной из ступеней нашей будущей лестницы. Таким образом мы получаем количество ступеней равное 16. Разделив высоту лестницы на количество ступений мы получаем точный размер нашей ступени, равный 169 мм.

Популярные статьи  Схема подключения люминесцентных ламп с дросселем: пошаговая инструкция

На следующем этапе расчета нужно решить сколько прямых ступеней будет до поворота лестницы и соответственно до забежных ступеней. Предположим, что прямых ступеней будет три. Следующим элементом лестницы будет поворот с забежными ступенями. Первым делом нужно определиться с шириной лестничного марша, так как для поворота лестницы на 90 градусов необходимо выделить пространство для забежных ступеней в виде квадрата, стороны которых имеют длину равную ширине лестничного марша. Возьмем за ширину лестничного марша размер в 900мм. Теперь зная размер элемента с забежными ступенями и количество ступеней после, мы можем рассчитать ширину ступени. В нашем случае количество ступеней в верхнем марше 10 штук (общее количество ступеней 16, 3 ступени до поворота, 3 забежные ступени)

(3300 — 900) / 10 = 240 мм

Имея ширину и высоту ступени, мы можем проверить, будут ли они удобными для хождения используя формулу  2 h + b = 600…650 мм.

2*169 + 240 = 578

Как мы видим 578 мм гораздо меньше рекомендованных 600 — 650 мм, поэтому для увеличения ширины проступи нам нужно сократить количество ступеней после поворота. Для этого можно увеличить количество ступений до поворота или увеличить количество забежных ступеней до четырех. Мы увеличим количество ступеней перед поворотом до четырех штук, уменьшив тем самым количество после поворота. Проведем еще раз наши расчеты с шириной проступи:

(3300 — 900) / 9 = 267 мм

Ширина увеличилась. Проверим теперь комфорт передвижения с такими размерами

2*169 + 267 = 605 мм

Такой результат попадает в рекомендованные значения, а это значит, что спуск и подъем по лестнице будет комфортным.

Теперь зная размер и количество ступеней до и после поворота, мы можем вычислить угол наклона лестницы и проверить попадает ли он в рекомендованный диапазон.

Для этого нам нужно узнать высоту последнего марша и длину его проекции на пол. Высоту мы можем получить умножив количество ступеней до него на их высоту и вычесть это значение из общей высоты

2700 — 7*169 = 1517

Длина проекции будет равна разнице длины ниши и площадки для забежных ступеней

3300 — 900 = 2400

Зная эти данные и воспользовавшись формулой угла тангенса мы сможем определить угол наклона лестницы, который равен примерно 32º, данный результат попадает в рекомендованный диапазон.

Примерный внешний вид готовой лестницы сделанной по размерам взятым выше

Осталось только рассчитать размер деревянных забежных ступеней. При назначении размера клинообразных забежных ступеней расчетные величины принимают посередине марша. Из практики могу сказать, что в среднем на квадрат идет 3, реже 4 ступени все зависит от конкретного случая. При трех ступенях угол поворота забежных ступеней кратный 30 градусам, при 4 ступенях алгоритм иной. Угол первой ступени 24º, второй 45º, третий 67º и четвертый соответственно 90º.

Угол поворота забежных ступеней

Конечно 3 ступени комфортнее нежели 4 так как среднее значение проступи при трех ступенях будут равны 290 — 300 мм, а при четырех 210 — 220 мм. Это видно на рисунке ниже.

Размер ступеней

Последним, но необязательным этапом рекомендуется начертить лестницу в реальном размере на стене в том месте где она будет установлена. Такие действия помогут вам представить конструкцию в пространстве и проверить правильность своих расчетов.

Нюансы установки готового комплекта

К нюансам монтажа готового комплекта относиться:

  • Установка места крепления ступеней на пристенной балке до ее установки на стену. Таким образом, процесс происходить гораздо удобнее.
  • Производить монтаж в одиночку сложно. Лучше найти себе напарника, который сможет помочь в этом деле.

При установке и создании маршевых лестниц надобно учитывать механику движения человека, также правильный расчет угла наклона и число ступенек помогут легко спускаться, подниматься по конструкции.

Винтовые лестницы рекомендуют применять в маленьких помещениях. Служат вспомогательным прибором для подвала или чердака. Удобная для поднятия на верхние этажи.

Расчет лестницы

В строительной практике приняты определенные размеры лестницы для дома. Ступени чаще всего имеют размер 150×300 мм, т.е. высота ступени — 150, ширина — 300 мм. Эти размеры позволяют устроить уклон марша в соотношении 1:2 . Ширина лестницы должна быть не менее 1200 мм, ширина площадок — не менее ширины марша. Количество ступеней в одном марше колеблется от 5 до 18.

Чтобы правильно определить необходимое количество ступеней, следует прежде всего построить лестничную клетку графически в масштабе или в натуре на стене.

Соотношение высоты подступенка к ширине проступи

Существуют три формулы соотношения высоты подступенка j к ширине проступи e . Это формула шага, формула безопасности и формула удобства

Наиболее важной является формула шага. Требованиям всех трёх формул удовлетворяет соотношение 17/29

  • формула удобства: e — j = 12 см
  • формула шага: 2j + e = 62 (60-64) см
  • формула безопасности: e + j = 46 см
  • проступь: 26 ≤ e ≤ 32 в среднем 29
  • подступенок: 14 ≤ j ≤ 20 в среднем 17
  • формула шага: 60 ≤ 2 j + e ≤ 66 в среднем 63 (62)
  • формула удобства: e — j в среднем 12
  • формула безопасности: 45 ≤ e + j ≤ 47 в среднем 46

Пример расчёта лестницы

В двухэтажном доме предусмотрена лестничная клетка длиной 5900 мм, шириной — 3000 мм, высотой от уровня пола 1-го этажа до уровня пола 2-го этажа — 3300 мм и расстоянием между маршами 100 мм.

Расчёт лестницы

При высоте 3300 мм лестница должна быть двухмаршевой.

Для расчета ширины марша лестницы из ширины лестничной клетки (3000 мм) следует вычесть промежуток между маршами (100 мм) и разделить остаток на 2; получим

Высота каждого марша лестницы будет равна высоте этажа (3300 мм) делённого на 2, т.е.

Размер ступеней принимают равным 150 x 300 мм (150 мм — высота). Количество подступенков в каждом марше определяют делением высоты марша на высоту подступенка, т.е.

Проступь верхней ступени каждого марша совпадает с поверхностью площадки, а это значит, что проступей будет на 1 меньше, т.е. 10. Поэтому каждый марш будет состоять из 11 подступенков и 10 проступей.

Зная ширину проступи лестницы (300 мм) и количество ступеней (10), можно определить горизонтальную проекцию марша, его длину (заложение марша). Для этого ширину проступи умножают на количество ступеней:

Ширина каждой площадки предусматривается равной ширине марша, т.е. 1450 мм.

По выполненному чертежу лестницы на стенах размечают площадки, тетиву и ступени. Внизу стены отмеряют ширину площадок (по 1450 мм), а от них — ширину проступи (по 300 мм).

По полученным отметкам при помощи отвеса и намеленного шнура проводят строго вертикальные линии. Затем на уровне пола 1-го этажа проводят горизонтальную линию, от неё отмеряют 150 мм и проводят вторую горизонтальную линию, определяя проступь 2-ой ступени, и т.д. Последняя (11-я) проступь должна находиться на одном уровне с полом площадки.

При разбивке изготовляют фанерный или дощатый шаблон, с помощью которого размечают тетиву: находят положение балок под площадку и бруска (лаги), укладываемого на уровне пола 1-го этажа. На эти балки и брусок будет опираться тетива лестничной клетки.

Сфера использования

Забежная лестница может использоваться не только в частных домах и коттеджах. Она будет полезна и в общественных зданиях, объектах промышленного назначения. Главным преимуществом таких конструкций являются компактные размеры. Несмотря на небольшие габариты, они позволяют удобно подниматься на этаж.

Забежная лестница своими руками: схемы + пошаговая инструкция с фото

Используют забежные лестницы и в качестве эвакуационных путей. Однако нужно знать, что поднимать или опускать с этажа по ним крупногабаритные предметы будет трудно. Если другого пути транспортировки таких предметов нет, то это обстоятельство нужно учитывать во время проектирования лестницы.

Достоинства забежных конструкций

К основным преимуществам забежной лестницы относят:

  1. Компактность. Нередко разместить прямую конструкцию не позволяет площадь или габариты проема на второй этаж. Чтобы с минимальными потерями преодолеть эти трудности, монтируют забежные ступени в поворотных маршах.
  2. Эстетика. Лестничный пролет с поворотами добавляет особый шарм в интерьер дома.
  3. Экономия материалов. При увеличении угла уклона (крутизны) несколько уменьшается расход материалов.

К недостаткам относят снижение уровня комфорта и безопасности передвижения. Забежные проступи отличаются размерами, придется приноравливаться. Да и разойтись на таком марше сложнее, чем на обычных лестницах.

Забежная лестница своими руками: схемы + пошаговая инструкция с фото
Классический внешний вид забежной лестницы

Материал и особенности монтажа

Ограничения по выбору материала как такового нет. Это может быть бетон, стекло, металл. Нередко используется комбинирование. Например, в основу конструкции положен стальной каркас, а подступенки, проступи выполнены из дерева. Наиболее востребованным строительным материалом является классика жанра – древесина. Деревянные резные лестницы добавляют уют и тепло в интерьер. Сооружения получаются более легкие по сравнению с металлом и бетоном, что снижает нагрузку на фундамент.

Популярные статьи  Схема подключения электросчетчика, пошаговая фото инструкция

Забежная лестница своими руками: схемы + пошаговая инструкция с фото
Пример дизайна и оформления забежной лестницы из дерева

Чертежи и реальность нередко расходятся, поэтому придется подгонять заготовки при сборке. Стоит отметить основные трудности, которые могут возникнуть при монтаже:

  1. Некачественный материал. Напрямую влияет на срок службы конструкции. Если выбирается дерево, то оно должно быть просушено и иметь класс не ниже первого (допускается один сучок на погонный метр), без видимых трещин и дефектов.
  2. Точность распила. С учетом того, что чертеж выполняется в масштабе, процент погрешности все равно будет присутствовать, поэтому при самостоятельном монтаже следует иметь под рукой инструмент столяра для подгонки деталей.
  3. Уровень. Каждый этап сборки должен выполняться строго по уровню. Это обеспечит ровность каркаса, а в дальнейшем качество конструкции.
  4. Капитальная лестница возводится только после полной усадки дома. Иначе это грозит перекосом конструкции, появлению трещин, скрипа.

Качество монтажа зависит напрямую от подготовленного чертежа и сделанных на его основании заготовок. Сложность сборки зависит от того насколько точно проработана деталировка с размерами, и выполнен распил материала. Забежная лестница, сделанная своими руками, по собственному эскизу – особый предмет гордости хозяина. Но следует объективно оценивать свои силы. И если нет практики работы с чертежами, этот этап следует доверить профессионалам.

Преимущества сооружения лестниц из швеллера: закрытый каркас

Швеллер как материал для строительства наружных и внутридомовых лестниц отличается следующими преимуществами:

Забежная лестница своими руками: схемы + пошаговая инструкция с фото

Каркас винтовой конструкции

обеспечивает прочность конструкции даже при больших нагрузках (самое важное при этом – позаботиться о прочности стыковых соединений);
выдерживает максимальную нагрузку на прогиб;
каркасы из швеллера не скрипят и не вибрируют;
простота в изготовлении позволяет соорудить маршевую лестницу из швеллера своими руками;
изготовление лестниц из уголка и швеллера предоставляет широкие возможности для оформления.

Чаще всего швеллер и уголок применяются для изготовления так называемого закрытого каркаса: предполагается, что все его элементы будут скрыты ступенями, облицовочными материалами и декоративными перилами. К внешнему виду материалов для лестницы из швеллера не предъявляется особых требований: самое главное – уверенность в том, что они способны выдержать высокую нагрузку.

Справа на фото представлен несложный в монтаже вариант лестничной основы

Простой закрытый каркас лестницы представляет собой конструкцию из несущей основы, выполненной из попарно соединенного между собой швеллера и приваренных к нему уголков – именно они являются опорой для укладки ступеней

На толщину уголка следует обратить особое внимание: от нее зависит надежность крепления проступей и подступенков

Особенности монтажа

Лестницы с поворотом устанавливаются на каркас или на косоуры. Особых трудностей при изготовлении основы возникнуть не должно, так как ступени в большинстве случаев, несмотря на свою необычную форму, образуют непрерывное полотно, если их сложить в один ряд. Таким образом, они будут идеально прилегать друг к другу при установке.

Грамотное использование полезной площади при устройстве лестницы

Монтаж ступеней производится снизу вверх. Вначале устанавливаются рядовые элементы. После этого нужно выставить забежные фрагменты. Зауженная часть фиксируется на опоре и радиусом отходит в сторону. Если есть участки с поворотом ровно на 90 градусов, две ступени образуют как бы двухуровневую площадку.

Процесс установки позволяет выявить и откорректировать незначительные недочеты проектировки, однако серьезные погрешности способны повлиять на прочность и надежность конструкции, поэтому так важно придерживаться правил. Если вы не уверены в достоверности расчетов, лучше воспользуйтесь услугами профессионалов

Расчеты параметров лестницы

Основными параметрами любой лестницы экспертами принято считать:

  1. Высоту.
  2. Длину.
  3. Ширину.
  4. Угол наклона.
  5. Число ступеней.
  6. Высоту проступи.
  7. Ширину ступени.
  8. Длину ступени.

В данном видео вы узнаете, как сделать расчёт данной лестницы:

На каждом из этих параметров остановимся подробнее, рассмотрев основные особенности их расчета.

Высота

Высотой принято считать расстояние от поверхности пола одного этажа до поверхности пола другого

Важно: не до потолка! Если по проекту конструкция должна упираться в потолок своим верхним концом, то необходимо сделать над ней небольшой просвет

Расчет высоты лестницы на второй этаж производится следующим образом – к росту самого высокорослого члена семьи, который непосредственно будет ею пользоваться, прибавляется около 100 мм. Опытными специалистами рекомендуется закладывать около 2 м в качестве рабочей высоты.

Длина лестницы (длина марша)

В традиционных лестницах длину конструкции принято делать равной ее маршу. Возможен второй вариант, когда просто складывают длину всех маршей с лестничной площадкой.

Расчет длины лестницы с забежными ступенями аналогичен винтовой конструкции. В каждом из этих случаев берется усредненное значение длины марша. Замер тогда рекомендуется делать на расстоянии 50 см относительно края пролета или перил.

Ширина лестницы

Шириной принято считать промежуток от поручня до стены дома. Если конструкция имеет перила с двух сторон, то измеряется расстояние между ними. Для всех маршевых лестниц существуют следующие стандарты:

  1. Высокий уровень комфортабельности – 1,5 м.
  2. Среднее значение зоны комфорта – 1-1,2 м.
  3. Если маршевая лестница расположена вдоль стены – 0,8-1 м.
  4. Если конструкция является не основной, а вспомогательной – менее 0,8 м.

Расчет ширины лестницы с забежными ступенями:

  1. Минимальная ширина, допустимая при расчетах – 1,1 м.

Расчет ширины для винтовой конструкции:

  1. Среднее значение зоны комфорта – 1,4 м.
  2. Минимальное значение ширины – 1,1 м.

Угол наклона лестницы

Правильный расчет сделает пользование будущей лестничной конструкцией максимально комфортным. Для экономии пространства рекомендуется закладывать более крутой угол. Наиболее комфортной конструкция будет в том случае, если оставить ее пологой. Для жилых помещений максимальный угол наклона не должен превышать 45°, в противном случае, в целях безопасности, спуск по ней разрешен только спиной вперед.

Лучше всего комбинировать различные варианты, если позволяет пространство. Для определения градуса угла, под которым необходимо размещать поручень, следует прочертить параллельную линию с ее основанием.

Забежная лестница своими руками: схемы + пошаговая инструкция с фотоНе забываем про уклон данной лестницы

Число ступеней лестницы

Расчет для любого варианта конструкции определяется следующими параметрами:

  1. Высота лестницы.
  2. Высота проступи.

Жесткой регламентации на этот счет не существует. Однако специалисты рекомендуют для двухмаршевых конструкций делать количество ступеней равным для каждого марша. Но стоит заметить, что практика показывает – придерживаться этого совета удается не всегда.

Высота проступи или расстояние между ступенями лестницы

Значение этого параметра должно равняться 150 мм. Соблюдение этого значения позволит максимально комфортно передвигаться по данной конструкции всем без исключения. Допустимое значение отклонения от заданного значения не должно превышать 9,5 мм.

Шаг лестницы (непосредственная ширина ступени)

Важно понимать: на каждую ступень человек будет опираться ногой полностью, а значит, идеальной шириной будет являться показатель в 230 мм. Нижняя планка этого значения установлена на отметке, равной 100 мм. Но имейте в виду, что постоянное передвижение по таким ступеням крайне травмоопасно

Но имейте в виду, что постоянное передвижение по таким ступеням крайне травмоопасно.

При расчете шага стоит помнить о расстоянии между соседними балясинами. Оно должно быть в среднем 120-150 мм. При несоблюдении этих параметров такое ограждение рискует стать опасным для всех, кто будет пользоваться лестницей. Установка же балясин зависит исключительно от дизайн-проекта.

Длина ступени

Какой будет длина ступени, зависит исключительно от выбранной конструкции. Если главным конструктивным элементом являются тетивы в количестве двух штук, значит, длина должна соответствовать расстоянию между ними. При использовании косоура значение определяется самостоятельно, с учетом пожеланий заказчика.

Это интересно: какая высота ступени самая безопасная?

Оцените статью