Печь
Но самым важным элементом для создания сауны остается печь. Она может быть:
- Привычной дровяной, независимой от внешних источников энергии. Такая конструкция обеспечивает довольно дешевую эксплуатацию сауны, создание мягкого пара, высокую скорость нагревания. Но при обустройстве дровяной печи потребуются дополнительные затраты на установку дымохода, а опасность возгорания увеличивается в несколько раз.
- Новомодной электрической, способной нагреваться до фиксированной температуры и предоставляющей максимальную пожарную безопасность.
Сауна с инфракрасной печью до сих пор вызывает довольно много споров. Считается, что такой нагрев не обеспечивает лечебного эффекта, кроме интенсивного потоотделения.
VI этап. Монтаж электрооборудования
На последнем этапе строительства домашней сауны происходит монтаж электрооборудования. С помощью специальных шурупов, поставляющихся вместе с нагревателем, создается надежное крепление. Устанавливать нагреватель нужно на 20-сантиметровой высоте от пола. Вокруг него необходимо создать ограждение из оставшихся обрезков материла любой формы, но не ближе 5 см к самому нагревателю. Между тэнами укладываются камни с минимальным просветом. На вагоне надежно крепятся светильники и электровыключатель, а с помощью шурупов – песочные часы и вентиляционные задвижки.
После окончания всех крепежных работ шкуркой зачищаются потолок и лавки и протираются слегка влажной тряпкой – и личная сауна в собственной квартире готова к использованию. Главное, в первый день разогреть сауну до 60 градусов с открытыми дверями и задвижками, а во второй – до 90 градусов и так продержать три часа. Уже на третий день все три часа нужно выдержать температуру 100 градусов, после чего можно установить максимальную температуру на 40 минут и подливать время от времени на камни горячую воду. Начиная с четвертого дня, домашнюю сауну можно смело использовать с полной нагрузкой.
Чем лучше обшить каркас
В русских банях часто ставят именно деревянный каркас.
Обрешетка берет на себя функции вентиляции. Зазоры не дадут влаге скапливаться на поверхности бруса, утеплителе. Вентиляционные зазоры обеспечивают хороший воздухообмен, где нет места для сырости, грибка.
Крепеж проводится вертикально. Для утепления стен бани допускается применять далеко не все виды теплоизоляции.
Запрещено использовать горючий дешевый пенопласт, пенополистирол.
Керамзит, эковата не подходят из-за того, что быстро напитываются влагой и теряют рабочие свойства.
Лучшие варианты утепления:
- базальтовая вата;
- каолиновая вата;
- вермикулит.
Фото: конструкция стены каркасной бани
Снаружи каркасную конструкцию можно отделывать:
- сайдингом;
- декоративной штукатуркой;
- обрезной доской;
- полубрусом;
- вагонкой;
- горбылем;
- плиткой;
- блок-хаусом;
- пластиковыми панелями.
Красиво смотрится обшивка блок-хаусом, имитирующим бревно.
Для внутренних работ универсальным потолочным, стеновым материалом считается вагонка. Ей удобно обшивать парилку, предбанник. Вагонка не нагревается, удобна в монтаже. Для отделки душа выбирают керамическую плитку или древесину влагостойких пород.
Запрещено красить, покрывать лаком отделку в парной, иначе при нагреве она начнет выделять токсичные вещества, которые несут вред для здоровья.
Допускается применять влагостойкий гипсокартон для обшивки стен в раздевалке. Для этих же целей подойдут плиты ОСБ, МДФ.
Подробнее порядок внутренней обшивки бани приведен в разделе ниже.
Строительство бани
После затвердевания цементной смеси выкладываем на фундамент куски рубероида, чтобы предотвратить попадание влаги и сырости с фундамента на стены бани. Выкладываем цокольный ряд. В длину стараемся использовать цельный брус, в ширину отрезаем брус необходимой длины и делаем спилы по концам брусьев для соединения внахлест.
В углах сверлим отверстия диаметром 20 – 30 мм и забиваем деревянный кокс.
Таким же способом укладываем брус на границе баня – предбанник. Цокольный ряд готов.
Далее продолжаем строительство бани из бруса собирая последующие ряды уже без предбанника. Отрезаем необходимой длины брусья и запиливаем их концы. Перед укладкой каждого последующего ряда на предыдущий ряд стелим ленту джута для утепления стен.
Если нет джута или просто хочется сэкономить, можно использовать сухой боровой мох как в нашем случае.
Мох укладываем ровным слоем без промежутков по всей ширине бруса, следим за тем, чтобы не попадали шишки, камушки, ветки и прочее что может помешать плотному прилеганию брусьев.
На уложенный слой мха укладываем брусья соединяем по углам а так же сверлим отверстия и забиваем еще по 2 коксы в каждый брус отступив по 1метру от краев.
Если позволяет длина бура, сверлить отверстия под коксы удобнее сверху сквозь укладываемый брус и на половину бруса ранее уложенного ряда.
Так продолжаем набирать ряд за рядом, оставляя место под дверной проем в одной из стен со стороны предбанника.
Стену, в которой будет дверной проем, можно собирать из обрезков брусьев укладывая их по обе стороны от проема.
При этом необходимо каждые 3 – 4 ряда укладывать цельный брус во избежание увода стены (позже все брусья в проеме вырежутся).
В зависимости от желаемой высоты стен бани укладываем необходимое количество рядов. Последний ряд, так же как и первый укладываем на всю длину бани и предбанника из цельного бруса, по углам предбанника между первым и последним рядом устанавливаем опоры и так же крепим коксами. Поперечные брусья верхнего ряда делаем с выпуском с каждой стороны на 20 см для установки на них стропил, при этом количество поперечных брусьев увеличиваем до 5 штук.
Отделка сауны
Планировка сауны в доме предусматривает создание симпатичной внутренней отделки. Конечно, если сауна приобретается в виде бочки или кабинки, этот вопрос уже был решен на заводе-изготовителе.
Для самостоятельно возводимых саун самым оптимальным вариантом остается оформление деревом. Оно создает уютное убранство, не нагревается, отличается экологичностью и природной красотой.
Кстати, саму сауну лучше размещать в деревянном строении, позволяющем создать максимально полезный микроклимат.
- При обустройстве парной в кирпичном или бетонном здании внутренние поверхности обшиваются вагонкой или массивной доской.
- При этом не рекомендуется использовать лаки, краски и неспециализированные пропитки, которые при нагревании выделяют химические вещества, не способствующие оздоровлению.
- Для поддержания высоких температур и сохранения несущих конструкций все поверхности прокладывают утеплителем, паро- и гидроизоляцией.
Отделка потолка в сауне
Потолок в сауне изготавливается из балок, пароизолирующих и утеплительных материалов, деревянной обшивки. Особых требований к потолку не предъявляется, за исключением прочности и долговечности.
Отделка пола в сауне
В качестве напольного покрытия лучше всего использовать древесину, но от высокой влажности срок жизни дерева значительно сокращается.
- Современные варианты саун предполагают обустройство полов с помощью керамической плитки, которая совершенно не боится пара и высоких температур, легко моется, служит долго и счастливо.
- Но при укладке этого варианта следует подбирать плитку с нескользящей поверхностью.
- Для создания более комфортных условий для босых ног пол сауны украшают натуральными циновками или домашними ковриками, устанавливают деревянные щиты.
- В этом случае потребуются дополнительные усилия по просушке подобных декоративных элементов после каждого принятия водных процедур.
При оформлении пола стараются предусмотреть небольшой уклон для лучшего стекания воды.
Отделка стен в сауне
Самую большую площадь для отделки предоставляют стены.
Для их оформления прекрасно подходят:
- Бюджетная и крепкая осина;
- Не менее бюджетная липа, выделяющая нежный аромат;
- Довольно дорогие, но очень прочные кедр и абаши;
- Привычная сосна и ель, хотя при высоких температурах обшивка будет выделять слишком много смол, способных принести вред здоровью человека.
В предбаннике или комнате отдыха можно применять практически любую древесину. Эти помещения не предназначены для пара и влаги, поэтому любое дерево будет чувствовать себя здесь довольно комфортно.
Этап второй – подбор материалов
В целом бани принято делать из различных стройматериалов – кирпича, блоков и даже сэндвич-панелей. Но лучший вариант – это дерево и вот почему:
Баня, возводимая по каркасной технологии
При возведении бани экологическая чистота составляющих элементов играет особую роль. Все дело в высокой температуре, из-за которой безвредные в обычных условиях стройматериалы начинают выделять соединения, отрицательно влияющие на здоровье моющихся. Поэтому крайне нежелательно применять в банном домике любые искусственные утеплители – минвату и полимеры. Что нужно использовать:
- просушенный брус сечением 15 х 15 либо 10 х 15 см;
- обрезные доски 150 х 50 или 150 х 40 мм;
- отделочная вагонка;
- материалы для конопатки – джут, мох, лен;
- природные утеплители – керамзит, опилки, глина и так далее.
Бревенчатая банька
Несколько слов о том, как лучше построить баню из пиломатериалов, точнее, о конструкции стен. На выбор есть 3 способа:
- Монтаж по каркасной технологии.
- Сборная конструкция из бруса.
- Стены из бревен (сруб).
Предпочтительный вариант – банька, построенная своими руками из бруса, показанная ниже на фото. Она отвечает всем требованиям и обойдется сравнительно недорого. Да, каркасное здание стоит дешевле, но в нем для утепления применяется базальтовая вата, выделяющая при нагреве канцерогенные вещества. Рубленый домик подходит по экологичности, но требует устройства ленточного фундамента, а это – удорожание проекта. Вдобавок бревна надо уметь правильно соединять, чтобы сооружение получилось красивым и теплым.
Как построить баню своими руками
Для дачи самыми востребованными видами бани считаются финская сауна или русская баня. В обоих случаях основным элементом служит печь, которая, тоже может быть изготовлена своими руками. Баня от сауны отличается состоянием воздуха, в бане воздух влажный, в сауне – сухой, и его температурой: в бане от 40°С до 60°С, а в сауне от 70°С до 90°С. Конструктивные особенности сауны и бани заключаются в том, что в сауне мыться и париться нужно в отдельных помещениях, а в бане на даче все происходит в одном. Это необходимо учитывать при последующем планировании размеров при строительстве бани своими руками на даче.

Материал для строительства бани на даче, учитывая ее небольшие размеры, можно взять любой. Это может быть и кирпич и шлакоблоки. Но, хочу заметить, что более экономично и относительно легче будет использование дерева. Построить каркасную баню или баню из бруса своими руками сможет каждый, для этого надо желание, инструмент и руки.

Есть два способа как построить баню на даче своими руками:
- Выполнить пристройку к дому;
- Построить отдельное строение.
При строительстве отдельного помещения для бани на даче следует выбирать липу, осину, лиственницу.
Очень важно, привязывая баню к топографии участка исходить из наличия искусственного или естественного водоема. Но и особо расстраиваться от отсутствия водоема не стоит

Выход всегда есть, наши предки рядом с баней строили деревянные купели. Купель представляет собой большую круглую или овальную емкость. Материалом для изготовления служит дуб, лиственница.

В купели обязательно должна быть лестница, устройство перелива и слива воды.
Конструктив бани из бруса
Для того, чтобы построить стены и крышу бани на даче, нам понадобится брус 150х150мм на стены, и 100х150мм на перегородки и лаги перекрытия.
Сборка осуществляется в шахматном порядке, где поочередно укладываются продольные и поперечные венцы до необходимой высоты строения (от 2,2 до 3,0 метров).
Виды соединения брус при сборке
Между собой венцы крепятся деревянными нагелями. Для этого нижний и следующий над ним брус засверливается под диаметр нагеля. Далее обмазывается его клеем и киянкой и забиваем в отверстие. Между венцами закладывается прокладка из джута.
Усадка строения из бруса занимает от одного года, до момента, когда можно начинать производить отделку, до двух лет, когда происходит полная усадка.
Лаги перекрытия устанавливаются зеркально нижней обвязке. Процедура утепления аналогична утеплению пола, за исключением того, что защитную стяжку делать нет необходимости.
Каркас крыши собирается из доски 50х150 мм и обтягивается ветровлагозащитной мембраной, поверх которой набивается обрешетка из доски толщиной 20мм. Следом идет крепление отделочного материала, которым может быть, например, профлист.
Под усадку
Устанавливать двери и окна в строении из бруса можно не раньше завершения усадки, иначе вы имеете все шансы получить треснутые стекла в окнах и незакрывающуюся дверь.
Анкерный домкрат, для регулировки усадки
Монтаж пола каркасно-щитовой бани на даче
- Нижний пол состоит из двух частей с уклонами 2%, направленными друг к другу. Эта конструкция предназначена для стока воды из бани. В качестве материала используются доски 20 мм толщиной, покрытые сверху рубероидом. Он крепится к основанию при помощи степлера. Лаги устанавливаются на покрышки. Между частями пола оставляется зазор в 5 см. Чтобы избежать слипания рубероида, в щель укладываются 3 металлические трубки. Зазор пола служит своеобразным приемным лотком для воды, которая при попадании с пола на слой щебня разбивается на капли и поступает в грунт.
- Верхний пол является основным. Он изготавливается из 50-миллиметровой доски, обработанной антисептиком. Уклон пола — 1%. Лаги устанавливаются с шагом 1 м, а доски к ним крепятся шурупами, головки которых нужно утопить.
Строительство каркаса
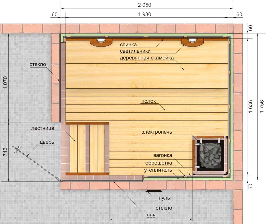
для строительства домашней сауны в квартире своими руками лучше всего использовать панели. Их соединение производится без клея с помощью системы паз-шип, что позволяет легко собирать и разбирать сауну при необходимости.
Помещение сауны обмерено. Затем изготавливается каркас из обычного бруса. Достаточно будет высоты 2 м. Каркас обшивается вагонкой и укладывается фольгированный утеплитель светоотражающей стороной наружу. Бруски каркаса предварительно следует плотно прижать к стене и выполнить обвязку на 5 уровнях.
![]()
Для этого на фольге размечают в виде горизонтальных линий. Первые три линии проводятся от пола на расстоянии 3 см, 60 см, 1 м. Еще один будет на расстоянии 5 см от потолка, а последняя линия проведется ровно посередине между ним и третьей. В результате должно получиться 5 горизонтальных линий.
Через утеплитель и точно по линиям на расстоянии 50-70 см друг от друга проделываются отверстия, в которые вставляются деревянные заглушки или пластиковые дюбели. Каркас сауны крепится через просверленные отверстия.
Следующий шаг — подготовить щит. Его следует тщательно отшлифовать наждачной бумагой. Затем его устанавливают с трех сторон каркаса. Между досками прокладывается полоса резины, и они соединяются при помощи мебельных уголков, которые затем закрываются плинтусами.
![]()
Теперь можно установить лицевой щит, который будет располагаться в дверном проеме. Затем следует закрепить потолок. После этого прокладывается кабель для освещения сауны. Стыки между щитком и стеной по периметру лицевого щитка закрываются наличником.
Для утеплителя лучше выбрать минеральную вату. Фольгу следует закрепить, приложив края полос друг к другу, стыки проклеить алюминизированной лентой. Утеплитель кладется на потолок в несколько слоев.
Шаг 9: Как отделать
Отделке парилки в бане своими руками у нас также посвящен отдельный материал, который мы рекомендуем прочитать тем, кого интересует эта тема. Еще одна статья на нашем сайте рассказывает о том, какие виды дизайна парной гармонично подходят для этого помещения.
Вкратце же отделочные работы в парилке бани — это укладка пола и монтаж вагонки на стены и потолок. Также сюда можно отнести обработку поверхностей различными защищающими составами, впрочем, выбор не так уж велик — это либо пропитки, либо акриловые составы. То и другое можно считать безопасным при использовании в жарком и влажном помещении.
Полезные ссылки по отделке:
- Подробно разбираем, чем покрасить баню внутри
- Принимаем решение: чем покрасить вагонку в бане и другие материалы стен внутри и снаружи
- Практичная внутренняя отделка бани из пеноблоков и наружная. Как отделать так, чтобы глаз радовался?
- Как и чем: отделка парилки в бане своими руками с фото и видео
Описание и устройство турецкой бани, чертежи
Изюминка хамама — это монтаж оборудования, нагревающего воздух, в отдельном секторе
Важно, чтобы вся техника в турецкой бане была убрана с глаз, а пар, вырабатываемый парогенератором, поступал в помещение по специальным каналам. Зона, где спрятано оборудование, может быть крошечной — занимать всего 1 м²
Главное, чтобы она была отдалена от парной примерно на 15 метров.
В современном хамам котел с горячей водой заменяют парогенератор и система отопления
Турецкую баню невозможно представить без курны. Так называются большие каменные чаши, наполненные горячей и холодной водой.
Чаша наполняется водой
В хамаме обязательно создают систему обогрева, элементы которой монтируют в стены, лежали и пол. Чтобы организовать отопление в турецкой бане, можно пойти двумя путями:
- проложить трубы с водой и поставить котёл, поддерживающий необходимую температуру теплоносителя;
- монтировать электрические греющие кабели, пульт управления которыми выносят в технический отсек.
Необычность турецкой бани заключается в обустройстве массажного стола с подогревом. Над уровнем пола он обычно поднимается на 0, 8 м и отличается круглой формой. В хамамах с большой площадью массажный стол принято располагать в центре. По габаритам он должен быть таким, чтобы на нём помещалось несколько человек.
Приспособление предназначено для одного человека
Сопоставление хамама с баней и сауной
Между турецкой и русской баней не может быть ничего общего. Материалом для отделки хамама служит камень или плитка, а строительным сырьём для стен традиционной бани — обычная древесина. Жар в турецкой бане даёт горячий пар и подогрев всех поверхностей, а в русской — печь с каменкой.
Финская баня тоже существенно отличается от турецкой, так как в ней воздух нагревается до 70 градусов, а уровень влажности достигает 100 %. Такие условия — большая нагрузка на организм.
В турецкой бане можно полностью расслабиться
В сауне, как и в русской бане, парятся вениками, чего никогда не делают в хамаме с температурой воздуха 40 градусов. Поэтому его можно назвать роскошным местом для отдыха, где люди получают удовольствие от удивительного интерьера и принятия водных процедур. Благодаря лёгкому пару сосуды кровеносной системы человека расширяются медленно, а это значит, что пребывание в хамаме не отразится отрицательно на здоровье людей с больным сердцем или желудком.
Строительство каркасной сауны
Приступайте к строительству сауны. Начните с обустройства фундамента.
Строительство каркасной сауны
Фундамент
Оптимальный вариант основания для каркасной сауны – ленточный фундамент, заглубленный на 80-100 см. Подходящую глубину заложения ленты определяйте индивидуально с учетом особенностей грунта в месте строительства.
Фундамент
Рекомендованная ширина бетонной ленты – 250-300 мм. Надземная часть основания должна иметь высоту не менее 200 мм.
Разрез ленточного фундамента
Выполните разметку площадки в соответствии с рекомендованными параметрами и планом строения. Для разметки используйте штыри и шнур.
Выройте траншеи по разметке. Засыпьте дно углублений песчано-гравийной смесью, уложите армирующую сетку, установите опалубку и залейте бетон.
Опалубка фундамента
Дайте бетону полностью высохнуть. На набор прочности требуется порядка 4-5 недель. Высохший бетон укройте двойным слоем рубероида.
В цоколе основания обустройте небольшие вентиляционные отверстия. Это можно сделать еще до заливки бетона, уложив в требуемых местах трубы нужного сечения. Делать отверстия в застывшем бетоне не рекомендуется, т.к. это может привести к уменьшению прочности конструкции.
Ленточный фундамент для сауны
Каркас из бруса
Выложите первый венец бруса. Используйте материал сечением 15х15 см либо же 20х20 см.
Нижний венец и особенности крепежаКаркас
Лучше, чтобы нижний брус не контактировал с фундаментом. Для исключения такого контакта уложите на фундамент прочные деревянные рейки примерно через каждые 300 мм. Будет достаточно реек толщиной 15 мм. Образовавшиеся пустоты заполняются теплоизоляционным материалом, а еще лучше – монтажной пеной.
Каркас
Брус нижней обвязки скрепляйте удобным способом. Главное, чтобы соединение было максимально надежным. От применения металлических крепежей лучше воздерживаться. Оптимально подходит соединение с применением пазов.
Каркас из бруса
Выложите необходимое количество рядов бруса в соответствии с запланированной высотой строения. Ряды соединяйте при помощи деревянных нагелей. Между рядами прокладывайте джутовый уплотнитель.
Обшивка каркаса
Укройте возведенный каркас прочными досками и рубероидом. Оставьте сауну в таком виде на полгода. За это время древесина даст усадку, и вы сможете продолжить обустройство сауны.
После завершения усадочных процессов, выпилите в стенах проемы для стеклопакетов и дверей и смонтируйте упомянутые элементы.
Если строительство выполняется с применением качественного бруса, прошедшего полноценную камерную сушку, делать такой продолжительный перерыв необязательно.
Односкатная крыша
Односкатная крыша
Приступайте к обустройству кровельной конструкции. Для частной сауны хорошо подойдет односкатная крыша – это простой и бюджетный вариант.
Если расстояние между противоположными стенами постройки не превышает 450 см, установку стропил можно выполнять без применения дополнительных опор. В случае же если расстояние превышает упомянутое значение, в обязательном порядке выполняется монтаж мауэрлата.
Варианты односкатной крыши
Мауэрлат представляет собой опорный брус, зафиксированный по верхнему краю стен строения. В деревянных постройках функции мауэрлата может взять на себя последний уложенный венец бруса.
Для установки стропил в мауэрлате создаются пазы соответствующего размера. Традиционно стропила фиксируются с метровым шагом.
Стропильные ноги должны выходить наружу примерно на 50 см. Благодаря этому будет исключена возможность попадания влаги с кровли на стены строения.
Скат крыши должен иметь определенный уклон (определяется индивидуально, в соответствии с особенностями выбранного финишного материала). Для создания уклона переднюю стену постройки нужно поднять на соответствующую высоту.
Далее обустройство крыши выполняется стандартно: монтируется обрешетка, обустраиваются изоляционные слои (влагозащита, утеплитель, пароизоляция) и крепится финишный отделочный материал.
Все деревянные элементы постройки обязательно обрабатываются антисептическим средством. Также рекомендуется выполнить обработку антипиреном. Пропитки можно использовать как до начала монтажа элементов, так и после их обустройства – решайте сами.
Односкатная крыша
Строительство каркасной сауны
Приступайте к строительству сауны. Начните с обустройства фундамента.
Строительство каркасной сауны
Фундамент
Оптимальный вариант основания для каркасной сауны – ленточный фундамент, заглубленный на 80-100 см. Подходящую глубину заложения ленты определяйте индивидуально с учетом особенностей грунта в месте строительства.
Фундамент
Рекомендованная ширина бетонной ленты – 250-300 мм. Надземная часть основания должна иметь высоту не менее 200 мм.
Разрез ленточного фундамента
Выполните разметку площадки в соответствии с рекомендованными параметрами и планом строения. Для разметки используйте штыри и шнур.
Выройте траншеи по разметке. Засыпьте дно углублений песчано-гравийной смесью, уложите армирующую сетку, установите опалубку и залейте бетон.
Опалубка фундамента
Дайте бетону полностью высохнуть. На набор прочности требуется порядка 4-5 недель. Высохший бетон укройте двойным слоем рубероида.
В цоколе основания обустройте небольшие вентиляционные отверстия. Это можно сделать еще до заливки бетона, уложив в требуемых местах трубы нужного сечения. Делать отверстия в застывшем бетоне не рекомендуется, т.к. это может привести к уменьшению прочности конструкции.
Ленточный фундамент для сауны
Каркас из бруса
Выложите первый венец бруса. Используйте материал сечением 15х15 см либо же 20х20 см.
Нижний венец и особенности крепежаКаркас
Лучше, чтобы нижний брус не контактировал с фундаментом. Для исключения такого контакта уложите на фундамент прочные деревянные рейки примерно через каждые 300 мм. Будет достаточно реек толщиной 15 мм. Образовавшиеся пустоты заполняются теплоизоляционным материалом, а еще лучше – монтажной пеной.
Каркас
Брус нижней обвязки скрепляйте удобным способом. Главное, чтобы соединение было максимально надежным. От применения металлических крепежей лучше воздерживаться. Оптимально подходит соединение с применением пазов.
Каркас из бруса
Выложите необходимое количество рядов бруса в соответствии с запланированной высотой строения. Ряды соединяйте при помощи деревянных нагелей. Между рядами прокладывайте джутовый уплотнитель.
Обшивка каркаса
Укройте возведенный каркас прочными досками и рубероидом. Оставьте сауну в таком виде на полгода. За это время древесина даст усадку, и вы сможете продолжить обустройство сауны.
После завершения усадочных процессов, выпилите в стенах проемы для стеклопакетов и дверей и смонтируйте упомянутые элементы.
Если строительство выполняется с применением качественного бруса, прошедшего полноценную камерную сушку, делать такой продолжительный перерыв необязательно.
Односкатная крыша
Односкатная крыша
Приступайте к обустройству кровельной конструкции. Для частной сауны хорошо подойдет односкатная крыша – это простой и бюджетный вариант.
Если расстояние между противоположными стенами постройки не превышает 450 см, установку стропил можно выполнять без применения дополнительных опор. В случае же если расстояние превышает упомянутое значение, в обязательном порядке выполняется монтаж мауэрлата.
Варианты односкатной крыши
Мауэрлат представляет собой опорный брус, зафиксированный по верхнему краю стен строения. В деревянных постройках функции мауэрлата может взять на себя последний уложенный венец бруса.
Для установки стропил в мауэрлате создаются пазы соответствующего размера. Традиционно стропила фиксируются с метровым шагом.
Стропильные ноги должны выходить наружу примерно на 50 см. Благодаря этому будет исключена возможность попадания влаги с кровли на стены строения.
Скат крыши должен иметь определенный уклон (определяется индивидуально, в соответствии с особенностями выбранного финишного материала). Для создания уклона переднюю стену постройки нужно поднять на соответствующую высоту.
Далее обустройство крыши выполняется стандартно: монтируется обрешетка, обустраиваются изоляционные слои (влагозащита, утеплитель, пароизоляция) и крепится финишный отделочный материал.
Все деревянные элементы постройки обязательно обрабатываются антисептическим средством. Также рекомендуется выполнить обработку антипиреном. Пропитки можно использовать как до начала монтажа элементов, так и после их обустройства – решайте сами.
Односкатная крыша
Готовые срубы для бани
Как собрать срубовую баню? Самостоятельно изготовить сруб с нуля – сложная работа, требующая отработанных плотницких навыков, и её лучше поручить профессионалам.
Потребуется максимально качественная обработка угловых соединений: может использоваться русская, норвежская или канадская рубка, но в любом случае соединения должны быть ровными и максимально качественными.

Потом сруб разбирается, и брёвна доставляются на сам объект. У такого варианта есть несколько преимуществ:
Подготовка к строительству бани
Как самому собрать баню из сруба? Предварительно необходимо выполнить целый ряд работ. Строительство начинается с проекта. Если вы хотите заказать готовый сруб, любая организация может предложить различные варианты бань.
Классический вариант – сооружение прямоугольной формы 4х6 метра. В такой бане будет место для размещения предбанника и помещения для мытья, которое будет выполнять роль парной. Если баня имеет большую площадь, пространство мыльной и парной можно разделить.
Как собрать баню из сруба с предбанником? Планировка должна учитывать расположение дверей и окон: обычно их делают небольшими, чтобы максимально экономить тепло в помещении.
Стандартная высота двери – 160 см, ширина – 60-80 см. Расположение и размеры окон владелец должен определить в соответствии с личными предпочтениями по освещенности.
Важно правильно выбрать место для бани. На маленьком участке её обычно располагают в противоположном углу от здания, чтобы обеспечить соблюдение противопожарных норм. Если размеры участка позволяют выбирать, место для бани выбирают в отдалении от ворот и самого дома, оно должно быть расположено так, чтобы возле бани можно было отдыхать, никому не мешая
Если размеры участка позволяют выбирать, место для бани выбирают в отдалении от ворот и самого дома, оно должно быть расположено так, чтобы возле бани можно было отдыхать, никому не мешая.
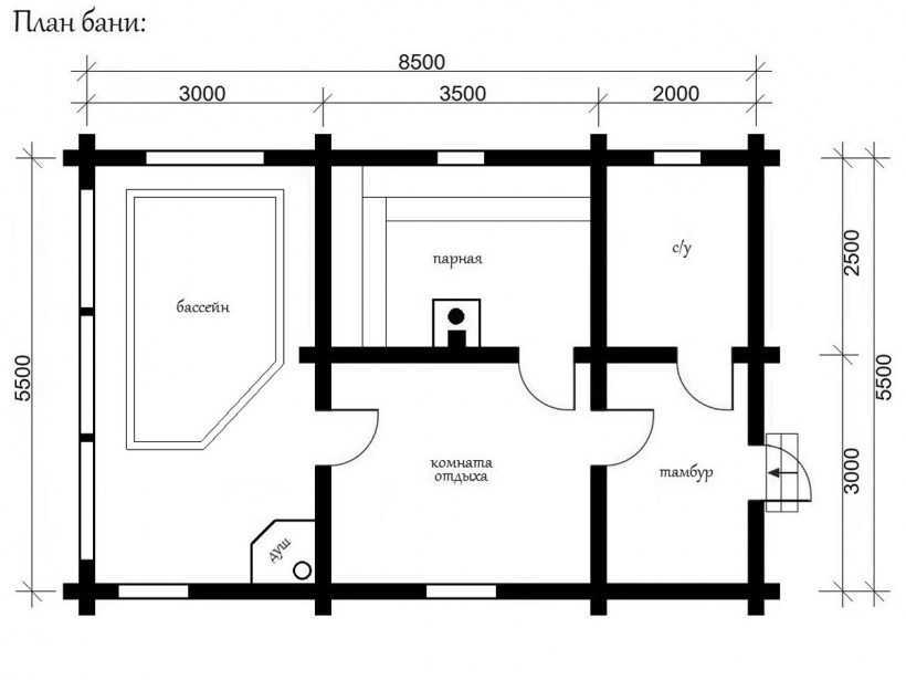
Составление планировки бани
Самый простой, но затратный вариант — выбрать один из множества готовых проектов. Можно также заказать чертеж, но это тоже будет стоить денег. Поэтому многие из умельцев, решившихся на строительство, создают чертежи бани своими руками, опираясь на советы, рекомендации и определенные нормы.







План будущей бани должен быть максимально точным. На нем необходимо прорисовать места расположения окон, дверей, печки и внутренних деревянных конструкций: лавок, полков, ступеней. Также следует определить площадь помещений и обозначить коммуникации.

На дачных участках обычно ставят бани простого типа, вмещающие в себя комнату отдыха, парилку и моечное помещение. Желательно, чтобы был предбанник, который не пропустит холод с улицы и послужит местом хранения дров.

Самый популярный и простой проект — строение 3х3 или 3х4. В этом случае получается компактная постройка с парной, объединенной с моечной и предбанником в роли комнаты отдыха. В такой бане одновременно могут париться два человека. Для постоянного использования она не подойдет, но как дачный вариант будет очень удобна.

В последнее время при возведении бань парную отделяют от моечной, выбирая планировку из трех помещений. В этом случае размеры строения должны быть 4х4 или 6х4.


Но для них лучше приобретать готовые проекты, которые рассчитаны на размеры сооружений 8х8 или 10х10. Эти варианты хороши для частого использования большими компаниями.

Разработка проекта
Даже если в планах строительство бани небольшого размера, то без разработки проекта не обойтись. Поэтому до начала работ необходимо составить план-схему. Она необходима для того, чтобы определить габариты будущего строения. А также её наличие позволит быстрее решить вопрос с расположением комнат. Обычно при устройстве таких сооружений выделяют следующие функциональные зоны:
- Предбанник. Для него будет вполне достаточно площади 1,5×2 м.
- Комната отдыха. Её оптимальный размер — 2×2 м.
- Душевая. Это помещение должно иметь размеры 1×1 м.
- Парилка. Габариты этой зоны — 1,5×2 м.
Создайте баню любой формы, вашей фантазии нет предела






































