Уклон лестницы, расчет ступеней
При проектировании лестницы одновременно учитываются два: удобство (безопасность) передвижения по лестнице и минимизация занимаемой лестницей площади. Безопасность лестницы зависит от её уклона и параметров ступеней.
- Количество ступеней в одном марше лестницы должно быть не менее 3-х и не более 16. При меньшем количестве легко оступиться, большее делает лестницу «утомляемой» и требуется устройство промежуточной площадки.
- Число ступеней в марше желательно предусматривать нечетное, так как человеку удобнее начинать и заканчивать движение по лестнице с одной и той же ноги.
- Рекомендуемый уклон лестницы находится в пределах 1:2 – 1:1,75 (от 20 до 26,7 градусов).
- Максимальный уклон лестницы для ходьбы 1:0,85 (50 градусов)
- Минимальный уклон лестницы для ходьбы 1:2,75 (20 градусов)
- Максимальная высота ступеней лестниц: в жилых и общественных зданиях –19 см, для внутриквартирных лестниц – 20 см, для подвальных и чердачных – 21 см.
- Минимальная высота ступеней – 12 см.
- Максимальная ширина ступеней лестниц: в жилых и общественных зданиях –26 см, для внутриквартирных лестниц – 23 см, для подвальных и чердачных – 21 см.
- Минимальная ширина ступеней – 25 см. Для лестниц ведущих в нежилые помещения (подвал, чердак) минимальная ширина ступеней – 20 см.
- Высота ступеней лестницы в переделах одного марша не должна различаться более чем на 5 мм.
- При ширине ступени до 26 см величина её свеса не должна превышать 3 см.
- Забежные (клиновидные) ступени на внутренней границе полезной ширины должны иметь проступь шириной не менее 10 см и 26 см на средней линии марша.
- Радиус кривизны средней линии марша с забежными ступенями должен быть не менее 30 см.
- Расстояние между любой ступенью лестницы и потолком должно быть не менее 2-х метров.
Пожарные и эвакуационные лестницы
Что касается пожарной и эвакуационной лестниц в частном доме, их размеры имеют свои нормативные показатели. Специфика назначения таких конструкций влияет практически на все аспекты. В первую очередь следует учитывать, что они могут быть разного вида:
- наружные с площадками,
- винтовые,
- настенные,
- внутренние.
Следует обратить внимание на самые ходовые модели
Для эвакуационных лестниц важно обеспечить достаточную ширину прохода для всех жителей дома в случае возникновения чрезвычайной ситуации. Поэтому обычно для таких сооружений устанавливают размеры минимум в 70–80 см
Поэтому обычно для таких сооружений устанавливают размеры минимум в 70–80 см.
Что касается пожарных лестниц, для подвесных настенных моделей можно снизить размеры ширины до 40 см. Однако такие меры лучше оставить для крайних случаев и не делать изделие менее 60 см. Если речь идет об ограждении поручнями, увеличение ширины является обязательным условием.
Для многоэтажных частных домов желательно обустроить маршевые лестницы с площадками. Можно сделать и винтовую конструкцию, но ею не так удобно пользоваться. Маршевые ступени обычно располагают на балконе или снаружи в торце здания. На каждом этаже предусмотрен выход на площадку, ширина которой не может быть менее 90 см. Сама же лестница может сужаться до 60 см. Располагать её следует на метровой дистанции от стены.

Разновидности пожарных и эвакуационных лестниц
Как выполняют расчет параметров ступени
При расчете лестничной конструкции на второй этаж важны два значений: высота проступенка и глубина проступи (горизонтальной площадки ступеньки). Эти параметры определяют степень удобства и безопасности при движении (подъеме/ спуске) по лестнице
Их важно определить правильно, так как эти значения задействованы в расчете конструкции
По ступеням подниматься удобно, когда нет необходимости увеличивать или уменьшать искусственно длину шага. Средняя длина шага при движении по горизонтальной плоскости равна 63-64 см, а при подъеме — и 31,5-32 см.

Размер шага среднестатистического человека.
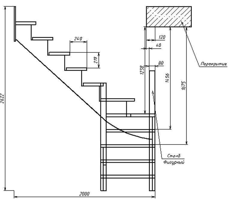
Исходя из этих данных, высота подступенка чаще всего находится в интервале от 12 до 20 см (оптимальный размер14-17 см). Оптимальная глубина проступи определена от 25 до 30 см. Максимально допустимая при строительстве лестниц глубина ступени – 32 см.
Часто, чтобы сэкономить площадь при установке лестничных конструкций, используют модели с нависанием одной ступеньки над другой. Такой тип ступеней придает лестнице более легкий и красивый вид.

Для экономии места также устанавливаются лестницы со ступенями «гусиный шаг», однако данный вариант не самый удобный, так как у таких лестниц большой угол наклона.
Расчет размеров ступеней лестничного марша
Рассмотрим вариант расчета основных параметров на простом примере. Оптимальные соотношениями высоты и глубины ступени, которыми оперируют при проектировании лестниц (см): 19/27, 18/28, 17/29 и 16/30. Идеальный вариант — 17/29 см.
Используем именно это соотношение для расчета таких важных параметров конструкции, как угол наклона, длина марша, общее количество ступеней.
Количество ступеней рассчитать просто: высоту этажа (например, 270 см) нужно разделить на высоту ступени (17 см): 270/17= 15,9. Отбрасываем дробную часть, получаем количество ступеней на лестничном марше (15 штук). Если число дробное, что можно первую или последнюю ступень сделать чуть выше или чуть ниже, чем остальные.

Чтобы устранить разницу также можно установить специальный подиум под лестницей.
Уточняем высоту ступеней. Для этого высоту помещения делим на количество ступеней: 270/15=18 см. Таким образом, высота каждой ступени составляет 18 см.
Глубина вычисляется c учетом ширины шага по горизонтали. Выбираем для расчета шаг, равный 63 см. От этой величины отнимаем удвоенную высоту проступенка: 63-2х18=27 см.
Лестница в частном доме как важный элемент удобства планировки
При выборе материала и дизайн необходимо руководствоваться не только эстетическими предпочтениями, но и помнить о безопасности и эргономии. Правильно осуществить выбор конструкции и материалов для лестницы помогут следующие критерии:
- имеет значение расположение – в центре холла или как второстепенный вариант в других комнатах;
- размеры и площадь под постройку лестницы;
- уровень безопасности конструкции;
- толщина стен, к которым будет монтироваться лестница;
- окружающий интерьер в помещении, где будет размещаться конструкция.
Схема устройства лестничной конструкции
Есть специальные требования и нормы СНиП, которые нужно соблюдать. Перед работой выполняются чертежи и расчеты. Для удобства расчетов применяются различные онлайн-калькулятор лестницы.
Стоит учитывать следующие технические требования:
несущие стены должны выдерживать лестничную конструкцию; опорные части должны устанавливаться под определенным углом и на специальную поверхность; важно выдерживать рекомендуемое расстояние между ступеньками; перила должны выдерживать определенную нагрузку в 400 Н; необходимо выдерживать правильное расстояние между тетивами; между пролетами также должно быть необходимое расстояние; марши должны иметь зазор и одинаковый уклон. Основные составляющие элементы
Основные составляющие элементы
Основные конструкционные элементы можно посмотреть в таблице ниже:
| Важные компоненты лестничной конструкции | Из чего могут состоять (варианты) |
|---|---|
| Несущая конструкция | Тетивы – боковые элементы, поддерживающие ступени с торцов и снизу. Выглядят как изогнутые балки. Устанавливаются под наклоном.Косоуры – поддерживают ступеньки в нижней части.Больцы – специальные болты, которые помогают зафиксировать ступени и стены здания.Опора для винтовой конструкции – вертикальная стойка, на которой закреплены все элементы.Несущие детали могут выполняться из разных материалов. |
| Ступени | Ступени могут быть дугообразными, забежными, скошенными или прямыми.Лестница может быть двухмаршевой или многомаршевой. В этом случае между маршами монтируется ступенька. |
| Ограждения | Ограждения гарантируют безопасное перемещение. К ним относятся следующие элементы:Балясина представляет собой вертикальную стойку, которая поддерживает перила;Перила используются для ограждения маршей и площадок;Поручень – наклонный элемент перил, который фиксируется на балясинах. Иногда поручни могут монтироваться к стене |
Возможные ошибки проектирования
Фото – рекомендуемые параметры лестниц.
Прежде чем приступить к непосредственному выполнению работ, необходимо ознакомиться с наиболее распространенными ошибками, сопровождающими монтаж лестниц собственными усилиями.
Неверная высота ступеней
Согласно стандартам максимальная высота ступенек не может превышать 190 мм. На практике доказано неудобство конструкций с нарушением рекомендуемых размеров. Слишком высокие ступени особенно неудобны для пожилых людей и маленьких детей.
Максимально допустимые показатели:
- для жилых помещений — 190 мм;
- для нежилых — 170 мм.
Внимание! Ели особенности планировки не позволяют соблюдать стандарт высоты ступени лестницы, допускается коррекция с увеличением до 200 мм
Неодинаковый размер
Различная высота может стать причиной несчастного случая. Нормальный ритм ходьбы и разные ступени — несовместимые понятия, не стоит экспериментировать.
На фото – стандартные названия элементов лестницы.
Строительство и отделочные работы независимо от предназначения здания осуществляются в соответствии с определёнными нормами и правилами, которые распространяют свое действие и на лестницы. В соблюдении установленных правил заинтересованы в первую очередь пользователи, так как от этого непосредственно зависит безопасность.
Это достаточно сложная архитектурная конструкция.
Следует отметить, что установленные требования можно корректировать в зависимости от специфических особенностей планировки.
- Одним из наиболее значимых стандартов является угол наклона, который колеблется в пределах от 27 до 45 градусов. Результатом превышения стандартов станет слишком крутой подъём.
- Высота ступенек лестницы регулируется вторым стандартом.
- Ширина ступени должна соответствовать размеру ступни, оптимальная ширина 280 -320 мм. Увеличение может стать причиной затруднительного шага. Если её уменьшить, неудобно будет спускаться.
- Ещё один стандарт касается ширины лестничного марша. 600 – 700 мм является оптимальным вариантом для беспрепятственного передвижения одного человека, и этот показатель считается минимальным. Наиболее распространённой величиной считается промежуток от 900 до 1000 мм, комфортная конструкция удовлетворит людей с различной массой тела и особенностями фигуры.
Поднимаясь, человек независимо от комплекции тратит в два раза больше энергии, чем при обычной ходьбе по ровной поверхности. В результате ряда экспериментов квалифицированные специалисты пришли к выводу: для создания идеальной конструкции необходимо удвоить показатели размера подступенка — прибавить ширину ступени, поскольку этот расчёт соответствует среднему шагу.
Необходимая ширина лестничного марша
Практикуется применение нескольких формул расчёта. Профессионалы рекомендуют не экспериментировать, а воспользоваться поверенными размерами, исключающими неприятные последствия.
Значительно проще разрабатывать проект, используя общепризнанные формулы. Для человека, принявшего решение самостоятельно осуществлять монтаж конструкции лучше выбрать самый простой вариант, который поможет избежать путаницы и ошибки. Как известно, цена исправления ошибок всегда значительно выше затрат на тщательную предварительную проработку.
Итак, наиболее распространённая формула для расчёта ширины и высоты рядовых ступеней: а+b = 450 ± 20 мм, где:
- b — ширина ступени (проступи),
- а — высота ступени (подступенка).
Запомнить её предельно просто, конечный результат удовлетворит ваши требования относительно благоустройства помещения.
Ширина проступи должна обеспечивать возможность уверенно опереться полной стопой о поверхность. Количество рассчитывается исключительно в индивидуальном порядке для каждого помещения и, прежде всего, зависит от соотношения наклона и высоты этажа.
В идеале берётся первоначальное графическое изображение предполагаемой конструкции с её последующим перенесением на бумагу. Графическое изображение существенно облегчает использование формул. Традиционно чертежи делают на миллиметровой бумаге или листке в клетку.
Винтовая конструкция
Более компактной является винтовая лестница на второй этаж. Для неё можно увеличить ширину, но при этом сохранить больше свободного пространства вокруг сооружения. Минимальная ширина винтовой лестницы в частном доме составляет 80 см для межэтажных конструкций и может быть сведена до 60 см при условии, что она будет использоваться только для редких хозяйственных нужд.
Графическая схема расчета винтовой лестницы для загородного дома
Увеличение ширины по сравнению с маршевыми проектами связано с тем, что для винтовых лестниц значительно сокращается полезная площадь для передвижения. В этом случае распределение ширины проступи ступеней осуществляется неравномерно. В части, приближенной к осевому креплению, её размер может уменьшаться в среднем до 15 см. В таком случае наступать на неё может быть не только неудобно, но и небезопасно
Важно обеспечить оптимальную ширину проступи примерно посередине ступеньки. Следовательно, к дальнему краю она достигнет своего максимума
Для того чтобы по спирали было удобно подниматься и не так страшно спускаться, по внешнему краю крепят ограждения. Они тоже займут некоторое место, но их наличие является обязательным.
Винтовая – компактное и оригинальное решения лестницы
Когда стоит изменить стандартный размер ступеней лестницы
Как уже говорилось, стандарты в отношении частного домостроения – только рекомендация, основанная на практическом опыте.
Изменить высоту и ширину ступеней стоит, если:
- пользователи имеют более высокий или низкий рост в сравнении со средними параметрами;
- в силу различных причин длина шага отличается от стандарта (60…64 см);
- лестница используется в основном детьми – в этом случае габариты выбираются с учетом роста малышей и их длины шага, но с поправкой на то, что по ступеням будут также ходить взрослые. Иными словами, расчетные параметры для взрослых уменьшаются на 20…25%, при этом уклон лестницы уменьшается до 30…33 градусов к горизонтали;
- планировка и размеры дома не позволяют использовать рекомендуемую ГОСТом ширину ступеней лестницы и высоту подступенка.
Пример 2: убираем 2 ступени
Для того, чтобы лучше понимать как друг от друга зависят параметры проёма и лестницы рассмотрим еще один пример и удешевим нашу конструкцию убрав два подъёма, после чего спроектируем лестницу из 15 ступеней не меняя при этом высоту:
Рассчитаем получившийся шаг лестницы, для этого разделим высоту подъёма на количество ступеней:
Шаг лестницы из 15 ступеней = 3060/15 = 204 мм
Т.к. у нас получилось на 2 ступени меньше, чем в прошлом примере, то и расстояние по полу лестница тоже будет занимать меньше:
Расстояние по полу = (225*14) + 300 = 3450 мм
Высота от пола до потолка осталась неизменной, однако шаг ступени изменился и теперь между четвертой ступенью и проёмом остаётся:
Расстояние между четвертой ступенью и потолком = 2750 — (4*204) = 1934 мм.
Данной высоты достаточно для комфортного перемещения рослого человека.
Как и в предыдущем примере вычислим необходимую длину проёма для такой лестницы:
Длина проёма конструкции = 3450 — (225*4) = 2550 мм
Вывод по лестнице из 15 ступеней:
Как видно из второго расчета, при изменении одной величины автоматически меняются все остальные, то есть для каждого помещения лестница индивидуальна. Данная конструкция будет уже не так комфортна, как предыдущая, ведь самые комфортные лестницы имеют шаг 160-180 мм. Угол наклона в данном примере составляет 41 градус.
Рассчитаем размеры поворотной лестницы в частном доме в тот же проём. Т.к. конструкция с забежными ступенями занимает меньше места, чем лестница с площадкой, будем проектировать именно её.
Как видно из проекта в стороне поворота необходимо свободное место на 4 ступени 4*225 = 900 мм.
То есть при той же длине и ширине проёма мы можем менять конфигурацию лестницы. Главное помнить, что межосевое расстояние 225 мм.
Размер ступеней лестницы по ГОСТ
Нормы учитывают все нюансы строительства и использования переходных конструкций следующих типов:
Межэтажные домашние лестницы могут быть следующих типов:
Как видите, прямого указания на размеры ступеней нет. То есть по факту эти параметры жестко не нормируются. Однако есть общепринятые правила, основанные на опыте: стандартная высота ступени лестницы должна быть в пределах 15–25 см, а глубина – 25-30 см.
Для чердачных, складных, подвальных вариантов допускается превышение норм стандартных вариантов. Эти модели используются редко, место их установки часто ограничено, поэтому высота ступеней может быть выше, а ширина уже. Конструкции такого назначения часто бывают нестандартными. Устанавливая марш на чердак или в подвал, учитывают, что должно быть удобно не только подниматься, но и спускаться.
Какой должна быть высота ступеней лестницы по СНиП
В соответствии с направлением развития современного общества все без исключения должно соответствовать определенным нормам или правилам, установленным для обеспечения комфорта и безопасности жизни человека.
СНиП – официальное издание
При проектировании домов также подбирается высота ступеней лестницы – СНиП регламентирует следующие моменты:
- углу наклона между степенями,
- ширине поверхности ступеней и марши,
- высоте ступеней,
Все необходимые условия к строительным сооружениям указаны в специальном издании СНиП — «Строительные Нормы и Правила». Далее, в статье будут рассмотрены основные показатели, характеризующие основные факторы, формулы и данные для самостоятельного расчета и проектирования.
Различные виды ступеней
Основные положения СНиП — «Строительных Норм и Правил».
Строители еще с самого начала создания лестниц знали главный секрет, который гарантированно давал успех.
Важно! Для того чтобы обеспечить комфортное перемещение необходимо соблюдать гармоничные пропорции между расстоянием на величину которого, человек будет двигаться вперед и высотой на которое, он будет подниматься или спускаться. В строительстве для этого используются такие термины как, «ширина проступи» и «высота подступени»
В строительстве для этого используются такие термины как, «ширина проступи» и «высота подступени»
- Первое – длина по горизонтали от одного края ступени до другого,
- Второе – длина по вертикали от поверхности одной смежной ступени до другой поверхности смежной ступени.
Углы наклона лестниц по СНиП
По стандартам первую величину обозначают за «У», а вторую за «Х». В семнадцатом веке известный математик Блондель вывел три формулы расчета идеальных параметров лестницы. Главенствующая роль принадлежит первой формуле:
- Определение правильного соотношения высоты и длины поверхности ступени – 2Х + У = 0,6/0,66 м,
- Определение правильной высоты – Х + У = 0,46 м,
- Определение правильного расстояния перемещения – У – Х = 0,12 м,
На сегодняшний день строительство смогло развиться довольно далеко и нормативов образовалось огромное количество
В настоящее время человек, значительно больше уделяет внимание проблемам собственно безопасности, нежеле раньше. Кроме уже существующих нормативов СНиП, строители подчиняются еще целому ряду других правил
Чтобы исключить какие-либо административные правонарушения или иные проблемы, следуют соблюдать следующие требования:
В случае если сооружение имеет 2 этажа и более, то должен присутствовать минимум 1 лестничный пролет,
- Трансформируемые лестницы могут применяться только доступа в подвал или на чердак,
- Нужно обеспечить ширину лестничного пролета в размере от восьмидесяти сантиметров до одного метра двадцати сантиметров, необходимую для движения одного взрослого человека. Выбранное значение должно соблюдаться от начала до конца лестницы,
- В течение одного марша должно быть от 3-х до 18 ступенек, в общественных сооружениях до 16 ступенек. Приоритет всегда отдается нечетному числу ступенек, позволяющее человека начинать и заканчивать перемещение с одной и той же ноги,
- Угол подъёма находится в диапазоне от 26° до 45°,
Готовые значения для лестниц различного назначения
- Ширина и высота ступеней лестницы по СНиП составляют соответственно 25 и 15-20 см. Для чердаков и подвалов минимум 20 см,
- Максимальная длина выступа 3 см,
- Высота ограждения составляет от 90 см до 110 см,
Таковы основные правила расчетов высоты лестниц по СНиП.
Какой должна быть высота ступеней лестницы по СНиП В соответствии с направлением развития современного общества все без исключения должно соответствовать определенным нормам или правилам, установленным для
Нормы проектирования
При проектировании, помимо несущих нагрузок на опорные конструкции, очень важно правильно рассчитать оптимальные размеры ступеней лестницы, влияющие на комфортное и безопасное использование конструкции. К таким параметрам ступеней относятся:. К таким параметрам ступеней относятся:
К таким параметрам ступеней относятся:
- ширина марша (длина ступеней);
- ширина проступи;
- угол наклона ступеней;
- высота ступеней.
.Размеры ступенек необходимо рассчитывать, придерживаясь специально разработанных норм ГОСТов:
- 8717.1-84 — Ступени железобетонные и бетонные. Конструкция и размеры;
- 23120-78 – Лестницы маршевые, площадки и ограждения стальные.
Основные параметры приведенных выше ГОСТов:
- Минимальная длина ступени 80 см на всем протяжении лестничного марша.
- Высота ступени 160-180 мм, не должна различаться на всем протяжении более чем на 5 мм.
- Ширина проступи не менее 250 мм, комфортная ширина определяется из расчета, чтоб на плоскости полностью помещалась стопа взрослого человека.
- Свес проступи за подступенок должен быть в пределах 20-40 мм.
Большое количество травм люди получают вследствие эксплуатации лестниц с отступлением от указанных параметров.
Шаг ступени
Шаг взрослого человека при спокойной ходьбе составляет 600-640 мм. При подъеме по лестнице длина шага сокращается, и она составляет 430-470 мм, это сумма высоты и ширины ступеней лестницы.
В том случае если эта величина будет нижеуказанной, возникнут сложности при спуске по лестнице. При увеличении значения есть вероятность, что человек собьется с привычного шага и тем самым будет испытывать дискомфорт.
Высота ступеней лестницы в своем доме
Высота ступени напрямую зависит от угла наклона лестницы и числа ступеней в лестничном марше.
Размер ступеней лестницы в частном доме считается допустимым в диапазоне от 15 до 22 см, однако оптимальной высотой ступени является диапазон от 16 до 18 см.
Длина ступени
Длина ступени соответствует ширине марша лестницы, и для ее определения необходимо знать, для каких целей будет использоваться лестница и в каком помещении она находится.
Данные параметры одинаково относятся как к маршевым лестницам, так и к винтовым.
Как мы уже писали выше, минимальной шириной марша является величина 80 см. При такой ширине будет комфортно передвигаться одному человеку.
В том случае если предполагается переносить крупногабаритные предметы, а также для свободного встречного движения двух людей длина ступеней должна быть не менее 125-150 см.
Не маловажным критерием в выборе длины ступени является площадь помещения, в котором расположена лестница.
Для приставных, складных и чердачных лестниц стандартный размер ступеней в длину варьируется в приделах от 40 до 70 см.
Ширина ступени
Следующим важным параметром является ширина ступени. Данный показатель, как и высота ступени, зависит от угла наклона лестницы и числа ступеней в марше.
Комфортным размером считается показатель в 25-30 см. При таком значении проступь способна полностью вместить стопу взрослого человека. Допускается снижать данный показатель на технических лестницах с нерегулярным использованием.
В случае стесненных условий размещения лестницы возможно увеличение размера проступи за счет дополнительного свеса над подступенком, размеры этого свеса должны быть не более 40 мм.
Для забежных ступеней, используемых в поворотных и винтовых лестницах, также есть допустимые значения ширины ступени:
- Минимальная ширина ступени в узкой части не должна быть менее 10 см.
- Широкая часть не более 40 см.
- Центральная часть по линии движения не менее 20 см.
На винтовых лестницах высота ступенек немного увеличена, по причине того что угол подъема на таких лестницах выше. На поворотных используется стандартная высота ступеней лестницы.
Готовые уличные лестницы для крыльца
![]()
Тем, кто ценит свое время и деньги, мы предлагаем идеальное решение для крыльца входной группы — изготовление лестницы на крыльцо. Главным преимуществом конструкции является то, что поставляется она уже в готовом виде, а представляет собой несколько ступеней на двух бетонных косоурах. Долговечность и прочность конструкции гарантирует металлический каркас, на котором и крепится готовая лестница C3. Известно, что чаще всего ступенчатые конструкции разрушаются в месте сочленения подступенка и проступи, что исключено по причине того, что соединение выполнено монолитным. Служат лестницы C3 намного дольше, а монтаж их не вызывает затруднений даже у начинающих.
Предыдущая статья
Следующая статья
Какие оптимальные размеры ступеней лестницы в частном доме
Все мы, ежедневно поднимаясь по лестнице, не задумываясь ставим ногу на нужную высоту, а в том случае, если какая-то из ступеней будет чуть выше или, наоборот, ниже, мы непременно получим пару ссадин и синяков. Почему же в большинстве случаев подъем по лестнице удобен? Дело в том, что существуют оптимальные размеры ступеней лестницы, проверенные временем. Например, существуют СНиП высоты ступеней лестницы. Также, высота ступени лестницы по ГОСТ не должна быть меньше 12, но и не больше 20 см. Безусловно, выше уже некуда, но как решить какая высота ступеньки будет оптимальной для восхождения по конструкции? Это зависит от размеров лестницы на второй этаж.
Расчет лестницы в двухэтажном доме
Удобная, комфортная, безопасная лестница, может получится только в том случае, если вы запланировали её на стадии проектирования всего дома. О том, как сделать проект дома самому изложено в отдельной статье.
Сколько места нужно для лестницы
Для комфортной лестницы, по которой легко смогут подниматься пожилые люди, и маленькие дети необходимо заложить от 14 до 20 кв.м. на каждом этаже.
Сколько ступеней нужно на один марш лестницы
Количество ступеней на каждом марше должно быть от 3 до 15 штук. Оптимальным значением будет наличие от 10 до 13 ступеней на каждом марше.
При подъеме на один этаж, целесообразно разбивать лестницу на два марша. Они будут иметь вид Г-образная или П-образная лестница.
Формула безопасности для лестницы
Формула расчета безопасной и комфортной лестницы выверена годами. Давным-давно уже все померяли и посчитали:
Важно: высота всех ступеней вашей лестницы должна быть одинакова. Различие в высоте, хотя бы в одном месте, скорее всего приведет к травме
Человек так устроен, за несколько шагов он привыкает к определенной высоте ступеней и далее поднимается на автомате, подразумевая, что высота будет такой же на всей лестнице. И в момент перепада высоты, обязательно оступится.
Факт: в древности, при строительстве замков, прием с разной высотой ступеней очень часто использовался. Захватчики, в погоне за кем-либо по лестнице, ломали ноги и шеи, т.к. спотыкались на незнакомых участках лестницы. Местные же обитатели напротив, наизусть заучивали сложные моменты лестницы и могли пройти по ним даже в темноте.
Освещение лестницы в двухэтажном доме
Лестница в двухэтажном доме не имеющая освещения – это зона повышенной травмоопасности. Освещение лестничных пролетов необходимо даже, если лестничный марш расположен у окна. В зимний период, световой день очень короток, а лестница на второй этаж – это самый востребованный маршрут в любое время.
Позаботьтесь об установке обычных настенных светильников или, например, установите декоративную подсветку в виде светодиодной ленты под каждую ступеньку.
Важно: для комфорта и удобства, необходимо смонтировать два проходных выключателя на первом и втором этаже. Суть его в том, что, подойдя к лестнице на первом этаже, вы включаете свет, подниметесь при свете на второй этаж и на втором этаже выключаете его другим выключателем
И на оборот.
Угол уклона лестницы в двухэтажном доме
От угла наклона лестницы напрямую зависит комфорт использования её. Слишком крутая лестница неудобна и травмоопасна. Слишком пологая занимает много места и приходится частить при ходьбе.
Согласно графику ниже, удобные лестницы имеют угол наклона от 26 до 33 градусов. С таким углом лестница не опасна для ваших детей и комфортна для пожилых родителей.
Ширина пролетов лестницы в двухэтажном доме
Ширина пролета – расстояние от стены до перила лестницы. Минимальная ширина должна составлять 900 мм. Максимальная же величина в частном доме рациональна до 1200-1500 мм.
Отличным ориентиром в этом вопросе будет тот факт, разойдутся ли два взрослых человека на лестничном марше. В правильно спланированной лестнице, люди разойдутся.
Высота перил
Перила в любом помещении и на любой лестнице – это в первую очередь про безопасность. И только потом это элемент украшения помещения или дизайнерский ход.
Перила для лестницы в двухэтажном доме должны отвечать определенным требованиям безопасности. Т.к. для пожилых людей – это дополнительная твердая опора, а для детей – это заградительное препятствие, чтобы не свалиться с 3-х метровой высоты.
Кстати: Ваши, слегка перебравшие за праздничным столом гости, на утро, тоже скажут вам спасибо за надёжную, а самое главное удобную лестницу ;).
Высота перил должна быть, выше центра тяжести среднестатистического роста человека. Необходимым и достаточным будет высота в 900 мм.
Расстояние между стойками/балясинами должна быть такова, чтобы маленькие дети не могли пролезть сквозь них. Обычно, балясина устанавливается в центр каждой ступеньки, а это составляет примерно 130-150 мм.
Так же, стойки обрамляют кружевными элементами, чтобы придать красоты всей лестнице и так же сократить пространство между стойками.
Важность эргономических критериев расчёта
Очень важно правильно рассчитать ширину проступи. Она должна позволять взрослому человеку поставить полностью ногу на ступеньку
По стандартам эти параметры колеблется от 20 до 32 см.
Некоторые проектировщики утверждают, что оптимальными размерами являются подступок в 15 см, а ширина ступени – 30. Когда застройщик делает большую ширину, человек, поднимаясь, просто сбивается с шага, так как не хватает ширины поступи.
Если лестница не может иметь общепринятые стандарты наклона и должна быть менее 23 градусов, то лучшим вариантом станет установка пандуса. Если угол более 45 градусов, то лучше использовать приставные конструкции.
Этапы выполнения работ по монтажу лестничных проёмов, особенности:
- Определение вместе с проектировщиком места, где будет находиться будущая лестница.
- Выбирается определённый вид и тип лестницы, учитывая её высоту, ширину, количество ступеней в пролёте, материал, дизайнерское оформление. Размер конструкции должен быть просчитан до мелочей.
- Монтаж лестницы. Эти работы можно выполнять и самостоятельно, но лучшим вариантом будет пригласить опытного специалиста, чтобы избежать ошибок.
- Далее, определения необходимости наличия поручней. В общественных местах лестницы, по требованиям ГОСТа, не могут эксплуатироваться без перил.
- Определяется вид крепления конструкции к несущей стене. Необходимо предусмотреть дополнительные упоры, чтобы лестница была основательно закреплена и не двигалась.
- Завершающий монтаж всех декоративных элементов.
Существуют определённые требования к конструкциям, которые устанавливаются в частных домах. Здесь проследить полное выполнение и соблюдение требований ГОСТ и СНиП невозможно, так как порой сам хозяин занимается установкой и изготовлением лестницы. Поэтому только осознанное понимание, что этот участок может быть травмоопасным и нести угрозу для жизни домочадцев, должен заставить соблюдать перечисленные нормы:
если нет возможности выделить большое количество места для лестницы, то рекомендуется использовать винтовую, её размер гораздо меньше
Она является практичной и надёжной;
обязательно устанавливайте перила и ограждения, они помогут избежать падения со второго этажа, особенно если в доме живут маленькие дети;
придерживайтесь стандартов ГОСТа, если конструкция имеет такие показатели;
не забывайте устанавливать освещение на этом участке в доме, оно очень важно в ночное время.
Параметры для частных домов
Если рассматривать именно ширину лестницы на второй этаж, для неё существуют выведенные идеальные пропорции. В эту характеристику следует включать не только длину ступенек, то есть ширину самой конструкции, но также глубину проступи и высоту подступенков. Если соотношение этих показателей будет нарушено, получится неправильный уклон, и лестница станет небезопасной и неудобной, независимо от прочих параметров.
Приближенными к идеалу считаются такие характеристики:
- ширина ступени — 120 см;
- проступь — 28–30 см;
- подступенок — 15–18 см.
Для того чтобы соблюсти нормативы в условиях ограниченного пространства, в основу расчетов закладывают ширину человеческого шага в 60–65 см. Сумма размеров двух соседних подступенков и ширины проступи ступени должна равняться этой цифре.
Основные параметры лестницы




































