Двушка для холостяка
Ценитель простоты и функциональности и любитель больших компаний попросил дизайнеров Диану Карнаухову и Викторию Карякину из MAKEdesign создать интерьер с большой кухней, гостиной и отдельной спальней. Площадь однокомнатной квартиры 44 кв.м.

Небольшую спальню с окном отделили от кухни-гостиной матовыми сдвижными перегородками и кирпичной стеной, сохранив приватность и не слишком жертвуя площадью гостиной. Интерьер получился минималистичным за счёт простых и чётких линий, а также продуманной системы хранения. Монотонность обстановки разбавили натуральными материалами: кирпичом и деревом.



Перепланировка однушки в двушку – дизайн
Оригинальный интерьер однушки, переделанной в двушку
Самая тривиальная перепланировка из однушки в двушку, фото и рекомендации к которой можно найти в интернете – разделение одной большой комнаты на две маленькие. Чтобы осуществить такую планировку, нужно обладать квартирой, комната в которой имеет площадь 40-50 м2 и более. Если размеры комнаты меньше этих параметров, обустроить уютные жилые зоны не получится.
Для создания разделительной стены сегодня все чаще используют гипсокартон – легкий и практичный материал, с которым очень удобно работать. Листы гипсокартона монтируются при помощи специального профиля.
Белый цвет в отделке поможет комнату сделать визуально больше
Разделение комнаты с помощью гипсокартонных перегородок
Деревянные перегородки смотрятся очень красиво
Плюсы гипсокартонных перегородок:
- Быстрота установки.
- В процессе работы отсутствуют горы мусора, неизбежные при кирпичной кладке.
- Отпадает необходимость в штроблении стен для электрокоммуникаций.
- Физические и денежные затраты минимальны.
- Материал не требует дополнительной обработки для проведения отделочных работ.
- Гипсокартон обладает пожароустойчивыми характеристиками.
Почти любая однокомнатная квартира может стать комфортной двушкой
Разместив кухню и спальню в одной комнате, можно освободить отдельное помещение для гостиной или детской
Однако у гипсокартонных перегородок есть значительные недостатки, одним из которых является плохая звукоизоляция. Кирпич в этом отношении, конечно, выигрывает больше, но не всякое межэтажное перекрытие может выдержать его вес. Хрупкость гипсокартонных перегородок лишает возможности вешать на них тяжелые полочки и шкафчики. Тонкая стенка может выдержать вес декоративной полочки и картины, но не более.
Плохая влагоустойчивость гипсокартона не убережет его в случае серьезного затопления с верхних этажей. Если соседи случайно забудут закрыть кран или в их квартире прорвет трубу, стена из гипсокартона будет уничтожена, ремонту она не подлежит.
Красивый интерьер однокомнатной квартиры с элементами экостиля
Деревянные балки в отделке потолка однокомнатной квартиры
Отделка стен разным материалом также поможет в зонировании комнаты
Очень популярным решением в последние годы стало создание квартиры-студии. Такой вариант особенно подходит для молодых владельцев, которым близки современные тенденции. Люди старшего поколения гораздо реже идут на совмещение гостиной и кухни, поскольку разделение пространства здесь предусмотрено только за счет цветового и фактурного зонирования или разницы между уровнями пола.
Но такое расширение позволяет поставить в углу комнаты дополнительную кровать и отделить ее стеклянной перегородкой. Появляется пространство для создания учебной зоны, где можно поставить компьютерный стол, этажерки для учебников. Таким образом, простор остального помещения не страдает.
Раздвижная ширма для создания спальной комнаты
Интересный дизайн однушки в стиле модерн
Спальня вместо кухни или вместе с ней
Совмещение гостиной и спальни очень распространенный вариант перепланировки однокомнатной квартиры
Первый вариант – разделение большой кухни легкой перегородкой, что позволить создать дополнительное помещение для сна. В такой небольшой новой комнате можно поставить трансформирующиеся диван или кровать. Для создания уютной атмосферы в спаленке рекомендуется:
- повесить на стене бра;
- установить небольшую тумбочку;
- поставить компактную этажерку для всяких безделушек и предметов необходимости.
Отделение кухонной зоны перегородками со стеклянными вставками
Миниатюрная кухня, расположенная в нише, поможет сэкономить пространство
Гостиная, совмещенная с кухней, в скандинавском стиле
Если в квартире большой коридор, в его пространстве легко можно оборудовать кухню, а вместо нее сделать спальню или рабочий кабинет. Здесь, конечно, придется изрядно потрудиться, так как нужно будет перенести газовые трубы и переделать систему водоснабжения.
На все это потребуется разрешение государственных организаций. Зато когда все этапы будут пройдены, жильцы получат в свое распоряжение дополнительную полноценную комнату. А принимать пищу вполне можно в гостиной.
Перенести кухню можно и в зал, таким образом получится совмещенная обеденная и гостевая зона. К такой перепланировке с целью освободить квадратные метры под жилую комнату прибегают довольно часто. А вместо кухни можно обустроить хорошую детскую.
Стильная мебель оригинальной формы в интерьере однокомнатной квартиры
Перепланировка однокомнатной квартиры в современном стиле
Еще один способ увеличить полезную площадь – сделать спальню из лоджии. Конечно, лоджия в этом случае требует реконструкции и основательного утепления стен и пола.
Есть и другой вариант с лоджией – ее объединение с комнатой. Для этого придется удалить нижнюю стенку, разделяющую лоджию со спальней или залом. Если владельцу не удастся получить соответствующее разрешение, эту часть стены можно и не трогать, а убрать только оконный блок и дверь.
Оставшуюся после переделки стенку можно оформить как декоративную подставку под цветы или другие украшения. Преимущество такой перепланировки состоит в том, что лоджия будет обогреваться за счет комнаты, но на батареи придется нарастить дополнительные секции.
Даже маленькая кухня однокомнатной квартиры может стать красивой и очень удобной
Порядок действий
Вам необходимо:
-
Составить план. Сначала у себя в голове, а потом на бумаге. Для незначительных изменений хватит эскиза. Если вы планируете полностью менять планировку квартиры, то понадобится подробный проект.
- Собрать пакет документов:
- технический паспорт квартиры;
- документ подтверждающий право собственности;
- выписка из домовой книги;
- письменное разрешение всех прописанных совершеннолетних жильцов данной квартиры, заверенной УК;
- письменные заключения из СЭС и МЧС;
- проект или эскиз будущей перепланировки.
- Утвердить перепланировку. Все документы надо отнести архитекторам в районной администрации и через месяц получить разрешение, либо отказ.
- Приступить к ремонтным работам в случае положительного решения.
- Утвердить эти самые работы. Сделать это могут работники жилищной инспекции, они же выдадут акт о выполненных работах.
- Заказать новый технический паспорт.
- Заказать новый кадастровый паспорт.
Делаем двухуровневую квартиру
Этот вариант будет самым дорогостоящим и подойдет лучше всего для квартир с высокими потолками: новостроек, дореволюционных домов или «сталинок».
Вверху над частью комнаты делается антресоль для кровати, к которой ведут ступени. Таким образом, внизу получается полноценная комната. В ней найдется место для гостиной и детского уголка, а спальня будет наверху. На антресоль устанавливают декоративные перила или делают стену из гипсокартона, и получается практически полноценная вторая комната.

К плюсам относятся:
- экономия пространства, его максимально эффективное использование;
- возможность отдыхать и заниматься своими делами, не мешая остальным членам семьи.
Минусы такого метода:
- такая перепланировка стоит дорого, потребует значительных затрат по времени;
- необходимость вносить изменения в техпаспорт квартиры (обращаться в БТИ).
Перепланировка квартиры – дело непростое. Прежде чем двигать мебель или закупать листы гипсокартона, нужно все тщательно продумать и выбрать вариант, наиболее подходящий для вашей конкретной ситуации. В этом случае вы останетесь довольны своей новой квартирой.
Объединение кухни и гостиной
Мода на совмещенные кухни-гостиные пришла к нам с Запада. Изначально такие комнаты-студии предназначались для одиноких молодых людей, не обремененных детьми. Или супружеских пар, только начинающих совместную жизнь. В чем их специфика? По задумке проектировщиков, молодые люди в основном питаются в кафе, барах. На дом заказывают готовую еду, которую нужно только разогреть. То есть, интенсивное использование кухни не предполагается, за исключением утреннего кофе или чая с бутербродами, да редких кулинарных изысков по праздникам. Следовательно, с большой, оборудованной по последнему слову техники, кухне нет нужды. Достаточно минимального набора из варочной панели, мойки, холодильника и пары шкафчиков.
Но жизненные реалии вносят свои корректировки. Студийная планировка обладает собственным очарованием. Отлично подходит для дружных семей, привыкших все делать совместно. Кроме того, в квартире-студии легче выделить небольшую отдельную комнатку для любых нужд:
-
спальни для родителей;
-
детской, рабочего кабинета;
-
мастерской для занятий любимым хобби.
Для этого полностью убирается перегородка, отделяющая комнату от кухни и коридора. Довольно часто демонтируется и встроенная кладовка, которая предусмотрена старыми проектами. На месте остаются лишь стены санузла. Но и его можно немного расширить за счет освободившейся площади, демонтажа перегородок между туалетом и ванной комнатой. Вместо неудобной, узкой типовой кладовки большинство семей предпочитают обустраивать современные гардеробные. Они прекрасно заменяют пару-тройку громоздких шкафов, при этом занимая всего лишь 1,5-2 м2, и великолепно вписываются в любой интерьерный дизайн.
- Быстрый просмотр 58 680 ₽Цена за всю спальню Спальня София-2 Cilegio nostrano
- Быстрый просмотр 36 298 ₽Цена за всю кухню Кухня Валерия-М-05 | 1,3м/2м Серый металлик дождь светлый/Черный металлик дождь В корзину Купить в 1 кликОбщие размерыдлина129/200 смвысота214 смглубина60 см
- Быстрый просмотр 52 040 ₽Цена за всю детскую Молодёжная Модерн Стиль Белый глянец
- Доставим завтраБыстрый просмотр 23 490 ₽24 726 ₽-5%Цена за всю гостиную Гостиная Румба Мокко глянец В корзину Купить в 1 кликОбщие размерыдлина218,8 смвысота195 смглубина38,4 см
- Быстрый просмотр 49 826 ₽50 533 ₽-1%Цена за всю спальню Спальня Камея Белый глянец
- Доставим завтраБыстрый просмотр 40 446 ₽57 780 ₽-30%Цена за всю гостиную Гостиная Ливерпуль-01 Белый В корзину Купить в 1 кликОбщие размерыдлина240 смвысота220,3 смглубина49,3 см
- Быстрый просмотр 11 980 ₽Цена за всю кухню Кухня Бланка СТЛ.218.00Р | 2м Орех Общие размерыдлина200 смвысота215,4 смглубина60 см
- Быстрый просмотр 17 570 ₽Цена за всю кухню Кухня Прага-07 | 1,5м Венге/Белый В корзину Купить в 1 кликОбщие размерыдлина150 смвысота214 смглубина47,8 см
Получившееся пространство зонируют с помощью популярных решений, отделяя жилую зону барной стойкой, островом, обеденной группой или спинкой дивана. Можно установить кухонный гарнитур на подиум, использовать различные типы напольного покрытия. Например:
-
керамическую плитку и ламинат;
-
паркетную доску и линолеум;
-
керамогранит и виниловую плитку.
Диван при этом часто выполняет функции спального ложа. А днем это место для комфортного времяпровождения, встреч с друзьями и родственниками. Уютное местечко для посиделок в дружеском кругу.
Портьеры
Разделение комнаты с помощью штор или портьер – старинный способ обустройства пространства для проживания нескольких поколений в одном доме. Еще наши прадеды использовали перегородки в виде знавесок, разделяя большие комнаты на изолированные помещения. К сожалению, наши соотечественники имеют стойкое предубеждение к этому методу. Скорее всего, это печальное наследие коммуналок и хронической нехватки денег, когда иные способы для создания хоть какого-то уюта были недоступны.
Тем не менее, зонирование с помощью занавесок, плотных портьер и штор из воздушного тюля, пользуется популярностью во всем мире. Метод имеет целый ряд преимуществ:
- не требует никаких согласований;
- финансово доступен;
- повесить шторы можно своими силами, не привлекая специалистов;
- переместить или полностью убрать такую перегородку можно в течение пары часов;
- штанги или направляющие монтируются как угодно: по прямой линии, углом, по окружности;
- шторы можно раздвигать и задергивать по необходимости;
- простая замена занавесок на новые кардинально изменяет весь облик комнаты, привнося новую, освежающую, атмосферу.
Современные производители предлагают великолепные варианты, которые станут оригинальной «изюминкой», украшением интерьера. Это разнообразные ткани потрясающей красоты и легкие в уходе. Вертикальные и горизонтальные жалюзи, римские шторы. Нитевые шторы, изделия с подсветкой и различными декоративными элементами.

Фото реализаций лучших дизайнерских идей
Темные балки на белом потолке

Темно-серые шторы из плотной ткани

Квартира-студия в скандинавском стиле

Бардовые шторы в гостиной с кроватью

Светлая комната небольшой площади

Обеденный стол в светлой кухне

Кровать в нише однокомнатной квартиры

Линейный гарнитур в кухне-гостиной

Серые шторы на фоне желтой стены

Узкая кухня с белой мебелью

Пестрая занавеска в однокомнатной квартире

Кухня-гостиная в современном стиле

Открытый стеллаж в угловой однушке

Открыты полки над диваном в гостиной

Римские шторы из плотного материала

Декоративная перегородка в кухне гостиной

Освещение спальной зоны в общей комнате

Двухъярусная детская кровать в маленькой комнате

Небольшая перегородка из стеклянных блоков

Черный телевизор на стене с фотообоями

Рулонные шторы белого цвета

Открытая вешалка в прихожей однушки

Широкая кровать на невысоком подиуме

Гостиная комната с присоединенным балконом

Декор стены деревянными панелями

Зонирование подиумом однокомнатной квартиры

Матовые стекла раздвижной перегородки

Раскладное спальное место в однушке панельного дома

Выдвижные ящики под кроватью в нише

Стеклянная перегородка в квартире скандинавского стиля

Поворотная перегородка в однокомнатной квартире

Рабочее место в нише стены

Декоративная перегородка из белого дерева

Лесенка на второй ярус однокомнатной квартиры

Зона отдыха в однушке кирпичного дома

Раздвижная мебель в светлой комнате

Легкая перегородка из бамбука в однокомнатной квартире

Спальная зона в квартире студии

Яркая обивка гостиного дивана

Кирпичная текстура в интерьере квартиры

Белый потолок в маленькой квартире

Стеллаж в роли разделителя пространства

Зеленый диван в комнате с белыми стенами

Складная перегородка в современной однушке

Небольшая перегородка из деревянных панелей

Лакированная поверхность деревянного пола

Деревянный потолок в гостиной комнате

Кухонная зона за раздвижной перегородкой

Дизайн небольшого зала с фотообоями на стене

Однушку в двушку: популярные варианты перепланировки
Перекроить однокомнатную квартиру, передвинуть в ней стены, адекватно отделать – даже при наличии утвержденного плана – будет делом нелегким. Малогабаритное жилье в прямом смысле не дает развернуться. Затевать перепланировку однушки в двушку допустимо и нужно, если общая площадь квартиры насчитывает хотя бы 40 квадратов. В меньших пространствах сделать из однушки действительно уютную двушку будет архисложно.
Идей по изменению внутреннего пространства жилья предлагается много, но в основном они отличаются дизайнерским решением. В основу перепланировки заложены стандартные решения. Какое из них будет выбрано – зависит от исходных параметров видоизменяемого жилья.
Вариант 1
Наиболее популярным видом трансформации однушки в двушку является создание квартиры-студии. Особенно нравится подобный подход молодежи, симпатизирующей современным направлениям оформления интерьеров.
Объединение пространства кухни и гостиной
Планировка такого жилья предполагает выделение в отдельную комнату спальни и объединение в единое пространство площадей гостиной и кухни. Разделение последней, при перепланировке однушки в двушку, чисто символическое. Без использования раздвижных перегородок и штор. Зоны принято разграничивать: разной фактуры отделкой, игрой цветов, архитектурными элементами. Например, в кухонной части может быть приподнят пол и на входе в нее образована ступенька.
Организация спального места
Создавая из однушки уютную двушку-студию, важно использовать только модерновую отделку. В интерьере должна появляться исключительно современная мебель, желательно привлекающая нестандартностью своей конструкции или дизайна
В такой квартире должен царить абсолютный порядок. Обилие декора и просто бардак лишит интерьер свежести, украдет пространство и вообще сведет его эффектность на нет.
Не перегружайте пространство большим количеством декора
Нужно учитывать, что используя этот вариант преобразования однушки в двушку, жильцам придется терпеть определенные неудобства, а именно – разносящиеся по гостиной запахи кухни. Но если никого из квартирантов это не смущает, то в остальном – решение вполне комфортно.
Вариант 2
Он предлагает из однушки сделать двушку посредством передела комнаты гипсокартонной стеной, с последующим переносом межкомнатных дверей. Об использовании кирпичной кладки речь в квартирах обычно не ведется. Такая стена будет тяжела и усилит нагрузку на межэтажное перекрытие.
Деление комнаты гипсокартонной перегородкой
Эта идея перепланировки онушки в двушку может и должна быть взята за основу, если комната крупногабаритна и в ней предусмотрено два окна. В этом случае есть шанс получить два полноценных, возможно даже изолированных пространства, площадь которых можно задействовать по своему усмотрению.
В малогабаритных комнатах также можно поставить перегородку, но не гипсокартонную, а преобразовать однушку в двушку при помощи стекла. За стеной из стеклоблоков можно обустроить кабинет или миленькую спальню.
Вместо стационарного перестенка можно установить раздвижные панели из стекла. Удачным дизайнерским ходом будет использование витража.
Зонирование пространства раздвижными стеклянными панелями
Наиболее сложна перепланировка квадратной однушки в двушку. Единственное окно и пропорциональные стены очень ограничивают варианты дизайна и организации пространства.
Вариант 3
Менее популярный, но все же пользующийся спросом способ преобразования однушки в двушку – задействование штор. Используя данный прием, можно получить две комнаты без крушения стен и кучи согласований. За плотной тканевой перегородкой можно организовать уютный спальный уголок или комфортную рабочую зону. Текстильная ширма не крадет пространство, зато высоко функциональна и при необходимости может быть убрана одним движением руки.
Тканевая перегородка отделяет спальню от гостиной
Вариант 4
К делу получения из однушки уютной двушки привлекается мебель. Роль разграничителей пространства берут на себя высокие стеллажи, шкаф и прочие предметы обстановки. Главное, чтобы они не были громоздкими, и их присутствие было оправдано потребностью дизайна интерьера.
Стеллаж в роли разделителя пространства
В общем, из однушки сделать двушку вполне реально. Главное иметь желание, не бояться подключать фантазию и использовать качественные отделочные материалы. Оригинальный план и его грамотное воплощение позволит обжить даже столь скромную квартиру с максимальным комфортом.
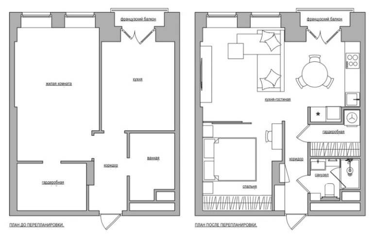
Двушка с компактной кухней
По замыслу застройщиков, квартира площадью 51 кв.м делилась на огромную кухню и узкую комнату со скошенной стеной. Дизайнер Наталья Широкорад предложила хозяйке распорядиться метрами неоправданно большой кухни иначе и выделить ещё одну комнату.
Между кухней и спальней проделали внутреннее окно, чтобы в помещение попадал дневной свет. Большой балкон утеплили и разместили там гардеробную, отделив его от комнаты французскими дверями. Гостиную поделили на столовую и диванную. Несмотря на небольшой размер кухни, она получилась функциональной – со шкафчиками до потолка и посудомоечной машиной. В столовой зоне также выделили место для рабочего уголка.
2 Демонтаж перегородки между кухней и гостиной зоной
Вариант скорее для молодой пары или квартиры, в которой живет один человек. Евро-гостиная, объединенная с кухней, — отличная идея планировки, которая активно эксплуатируется дизайнерами на Западе. Да и кто сказал, что диван в гостиной нельзя использовать как дополнительное место для сна гостей и членов семьи, которые остаются с ночевкой, а днем — как место сбора гостей?
Угловой диван HomeMe Турин
Барная стойка или невысокий стеллаж будут использоваться как перегородка между кухней и гостиной зоной, к тому же можно подключить визуальные способы зонирования, например, разную отделку пола.
Дизайн: Alberto Fiermonte
Если планировка стандартная и между кухней и комнатой стоит перегородка, придется ее сносить, оставив при этом стену между прихожей и комнатой. После — возводить новую между новой кухней-гостиной и спальней. Такой вариант, скорее всего, придется согласовывать, даже если стена ненесущая, особенно если потом планируется перепродажа.
Законы о перепланировке
Перепланировка – изменение расположения внутренних стен в помещении. Несущие стены переделываются только если определена предварительная оценка возможному ущербу и указаны меры устранения. С «неглавными» стенами проще, но для получения разрешения на перепланировку требуется предоставление проекта.
Не разрешаемые переделки:
- нельзя расширять и переносить кухню и санузел, если под ними окажутся жилые комнаты соседей снизу;
- если прихожая в плане указана как жилое помещение, сначала стоит поставить и узаконить перегородку;
- запрещен снос несущей стены или ее часть, разрешить вопрос поможет специализированная организация «Росперепланировка»;
- запрещается нарушение вентиляции, вплоть до судебного разбирательства;
- к стояку газовой колонки оставить открытый доступ, а изменения разрешено делать только мастеру-газовщику;
- запрещено объединять кухню, если там стоит газовая плита, с жилыми комнатами, иначе их признают техническими помещениями.

Закон требует в квартире хотя бы одной изолированной жилой комнаты, площадь которой не меньше 9 кв. м и там естественное освещение.
Как сделать перепланировку
Есть много вариантов, как превратить однокомнатную квартиру в студию: перепланировка здесь будет зависеть от возможности демонтажа стен и установки перегородок некапитального типа. Но и обратный вариант тоже возможен. Выделить функциональные зоны из общего пространства можно разными способами:
- Применяйте занавеси, шторы и ширмы.
- Делайте акценты при помощи света и цветовых решений.
- Используйте в качестве разделителей предметы мебели – барные стойки, двусторонние стеллажи, оригинальные тумбы.
- Отделяйте независимые участки некапитальными фальш-стенами из гипсокартона или стекла.
Наиболее удобными являются раздвижные и трансформируемые перегородки. Сложнее всего распланировать пространство с помощью капитальных стенок из пеноблоков, стеклоблоков, кирпича. Их возведение потребует согласования в муниципальных органах или жилинспекции.
Если в квартире установлена газовая плита, место приготовления пищи потребует обязательного отделения от жилой зоны. В этом случае можно установить не только стационарные, но и раздвижные перегородки.
Если прибор для готовки работает на электричестве, вариантов перепланировки становится больше. Один из популярных – кухня-ниша, которую располагают в кладовке, на балконе либо в коридоре. Она не должна не создавать помех при перемещении из жилой комнаты к выходу на лестничную площадку.
К перепланированной студии есть определенные требования:
- Площадь кухни должна быть не меньше 5 м2;
- Размеры жилой зоны – не менее 16 м2;
- На спальный уголок отводят не менее 8 м2.
Спальня в двухкомнатной квартире на основе студии не должна являться проходной комнатой. Санузел обязан быть отделен от общего пространства, к примеру, раздвижной перегородкой.
Рекомендации
Не располагайте диван, столы, стулья, кровать вплотную к отопительным батареям. Они могут ухудшить свободную циркуляцию нагреваемого воздуха к потолку.
Не рекомендуется перепланировать квартиру – если это не студия – таким образом, чтобы прихожая располагалась в спальне. Прихожая – «буферное» место, этакий квартирный «пятачок»: пыль и грязь, возможно, заносимые в небольшом количестве с улицы и подъезда на подошвах обуви, не должны попадать в чистое помещение, которым и является спальня.

Душевая должна располагаться в совмещённом или раздельном санузле. Сама кабина не должна находиться в прихожей, на кухне или в гостиной – на виду у остальных обитателей и гостей квартиры.

Комната на втором этаже
Это вариант не для всех. Высота потолка должна быть не менее 3,2 м, чем могут похвастаться квартиры в старом жилом фонде и новостройках бизнес-класса. Но даже если потолок достаточно высокий, все равно со второго этажа будет хорошо просматриваться, что происходит на первом, так что способ подойдет, скорее, для пары или одинокого человека.
Второй этаж в зависимости от площади, высоты и собственных предпочтений можно использовать для организации спальни, гардеробной или кабинета. Придется проделать грандиозную работу, сделав экспертизу несущих конструкций, рассчитав нагрузку от второго этажа и узаконив переделку в государственных органах. Также надо будет организовать лестницу, ограждение, продумать систему освещения, вентиляции и отопления.

Напоследок отметим, что стоит тщательно продумать идею разделения одной комнаты на две. Если площадь невелика, то после трудностей с документами и самой перепланировкой есть риск получить невпечатляющий результат в виде двух душных нор. Уж лучше сохранить деньги, подкопить и приобрести полноценную двухкомнатную квартиру. Если же комната большая, то результатом переделки вы должны быть довольны.
Статья написана для сайта .
Метки:Подготовка к ремонту помещения
https://youtube.com/watch?v=7XDhMDSr1D8
Готовые схемы проектов переделки однокомнатной квартиры в двухкомнатную разной площади
При перепланировке в 38 кв м учитывается все до мелочей. Для такой квартиры лучше всего подойдут такие стили, как хай-тек, скандинавский или кантри. При использовании одного из стилей в квартире будет уютно и просторно
Важно заранее все распланировать, как из однушки сделать двушку и постепенно начать перестройку. Главное, выбрать подходящий вариант и тем самым можно преобразить свою жилплощадь
Спальная зона выделена в небольшую, но отдельную комнату. Большая часть пространства досталась кухне-гостиной, в которой раскладной диван служит дополнительным местом для сна
При 40 кв м комнаты могут быть открытыми, что придаст квартире неповторимый вид. При перепланировке в любой интерьер можно внести “изюминку” и тогда все будет смотреться изящно и красиво. Каждому хозяину квартиры можно создать индивидуальный проект и решить как из однушки сделать двушку 40 кв. Разграничивая помещения в квартире нужно сделать так, что все было компактно расставлено.
Приватное место для ночного отдыха размещено за стеклянной перегородкой, что позволило сохранить в спальне естественное освещение
При 43 кв м будет уютно, если разграничить основную комнату перегородкой. У тех, у кого есть дети сделать для них игровую комнату. Если владелец проживает один, то ему можно создать уютное офисное помещение. Все гармонично сочетаться в соответствие с установленными правилами.
Комната с двумя окнами разделена на спальную и гостиную зоны, последняя отделена от кухни барной стойкой
При 45 кв м в одной комнате можно установить кровать и диван без потери основного стиля. Вторая половина может быть занята кухней в американском стиле. Здесь можно все разграничить так, чтобы уместились:
- напольные вешалки;
- небольшие шкафчики;
- напольный торшер;
- столик;
- диван и т.д.
Благодаря перепланировки удалось организовать просторную кухню-гостиную и уютную спальную зону с небольшим гардеробом
При 50 кв м может получиться в одной половине уютная спальня, а в другой отдельный уголок отдыха. В качестве перегородки можно поставить прозрачные. Это придаст помещению современный, презентабельный вид. В квартире может быть объединена кухня с гостиной и отдельная спальня. Все это может быть удобным вариантом для семейной пары.
Функциональный интерьер с достаточно большой спальной комнатой, кухне-гостиной и рабочим кабинетом на утепленной лоджии
При перепланировке 55 кв м можно сделать интерьер в швейцарском стиле, использовав светлые оттенки. Интерьер лучше не перегружать лишними деталями, а повесить украшения на стены и потолок. Если даже дизайн простой, то интерьер может получиться стильный и современный.
Переделка кухни позволила организовать детскую комнату, обеденная зона вынесена на просторную лоджию, кровать родителей разместилась на подиуме за шторами
Что запрещено и разрешено законом при переделки однокомнатной квартиры в двухкомнатную
Приступая к ремонтным работам, которые предполагают изменения в планировке, важно ознакомиться с перечнем моментов, которые запрещены на законодательном уровне, а также взять во внимание все то, что разрешено
- Несущие стены. Любые строительные работы, которые предполагают полный или частичный снос таких конструкций или ухудшение их технических характеристик, запрещены. Помочь выполнить все работы безопасно поможет информация в техническом паспорте.
- Запрещен не только снос несущих стен, но и установка на них дополнительной нагрузки.
За осуществление несанкционированной перепланировки предусмотрен штраф в размере 4 тысяч рублей.
К несущим стенам относятся все наружные конструкции, а также те стены, которые отделяют квартиры друг от друга. В плане квартиры все несущие стены отмечаются специальной штриховкой или жирной линией.
Осуществляя перепланировку нельзя задействовать общедомовые коммуникации. Как правило, к таковым относят горячую воду и систему отопления. То есть, если хозяева квартиры желают оборудовать помещение полами с подогревом, необходимо установить дополнительный прибор. В противном случае нагрузка на общественные коммуникации получится слишком большой, и температура воды в кранах будет ниже необходимого уровня. Именно поэтому нельзя осуществлять установку батарей на лоджиях и балконах.
Нельзя в ходе работ затрагивать вентиляционные системы, водяные стояки и газовые трубы без разрешения от соответствующих организаций. Как правило, хозяева квартир сталкиваются с этим, когда хотят заменить газовую плиту на электрическую или осуществить монтаж дополнительного проема в стене.
Запрещено уменьшать жилые помещения в пользу нежилых
Также важно учитывать, что площадь жилой комнаты должна быть не менее 8 квадратных метров.
Существенное изменение расположение санузла. Если сверху и снизу над новым запланированным местом находятся жилые комнаты, то устанавливать ванну, раковину или душевую кабину нельзя.
Но законодательство все же предполагает и ряд действий, которые разрешены, поэтому для выполнения безопасной и правильной перепланировки нужно ознакомиться с жилищным кодексом.
Разрешенные Жилищным Кодексом действия должны подкрепляться документально. Необходимость узаконить все свои действия в любом случае остается актуальной.
Схема перепланировки однокомнатной квартиры в двухкомнатную
Те стены, которые не являются несущими, сносить можно. Они могут быть полностью демонтированы или частично, перенесены или просто видоизменены
Также можно возводить дополнительные конструкции, но важно учитывать нагрузку на перекрытия здания. Сделать это самостоятельно не каждому будет под силу, а потому лучше доверить эти расчеты профессионалам.
Можно демонтировать стену между лоджией и комнатой, чтобы увеличить жилую площадь
В этом случае также лучше прибегнуть к помощи профессионалов, которые позволят подобрать наиболее подходящий вариант перепланировки. Ранее уже было сказано о том, что установить батарею на лоджию не получиться, а значит изменения нужно продумать таким образом, чтобы холод от лоджии не сделал помещение не комфортным по температуре.
Увеличить площадь санузла за счет смежных нежилых помещений также разрешается. Это могут быть коридор или кладовка. Стену, которая разделяет эти пространства, можно либо снести, либо сдвинуть.
При помощи специалистов соответствующих служб можно скорректировать системы газоснабжения и водоснабжения. Лицензированные организации вправе осуществлять соответствующие расчеты.
Используя пространство нежилых помещений, можно увеличить площадь комнаты. Исключением является только совмещение жилой комнаты с кухней, на которой установлена газовая плита.
Допускается установка дополнительных перегородок в комнатах. Предварительно, также как и во всех случаях, нужно получить соответствующее разрешение.
В качестве разделительных перегородок можно использовать мебель
Что разрешено
Делать в жилище перепланировку без разрешения не стоит, так как впоследствии квартиру практически невозможно будет продать либо обменять.
Если узаконить через суд выполненные работы не удастся, то придется возвращать жилью первоначальный вид, что повлечет значительные финансовые расходы.
Без согласования можно:
- переставлять газовую плиту в пределах кухни, если при этом не надо прокладывать дополнительные сети;
- монтировать и заменять бытовую технику;
- ставить двери в существующие дверные проемы;
- менять сантехнику;
- производить косметический ремонт (красить стены, оклеивать их обоями, устанавливать встроенные шкафы).
После предварительного согласования разрешено:
- объединение с лоджией или балконом жилых помещений;
- изменять местоположение газовых счетчиков или труб, через которые осуществляется подача газа в квартиру;
- делать дверные проемы в несущих стенах;
- менять тип напольного покрытия и его структуру;
- утеплять и остеклять балкон или лоджию;
- в пределах санузла переносить сантехнику;
- возводить из гипсокартона фальшстены.

























![Перепланировка однушки в двушку [cекреты проектировки 2019]](https://stekljannyj.ru/wp-content/uploads/e/5/9/e5933c1d70d08c3bca60881726bd2d6e.jpeg)











