Warning: Undefined array key 9 in /var/www/stekljannyj.ru/data/www/stekljannyj.ru/wp-content/plugins/fotorama/fotorama.php on line 73
Warning: Undefined array key 9 in /var/www/stekljannyj.ru/data/www/stekljannyj.ru/wp-content/plugins/fotorama/fotorama.php on line 74
Расшифровка обозначений на плане БТИ
Все обозначения, как мы уже отметили, могут быть несколько непонятны для собственников. Для лучшего понимания изображенных на планах значков собственник может обратиться за расшифровкой в бюро технической инвентаризации. Специалисты БТИ помогут понять то, что изображено на планах помещения, чтобы собственник имел ясное представление об планируемых изменениях в ходе ремонта. Или надеемся наша статья поможет вам в этом.
На планах БТИ могут также присутствовать обозначения в виде красных линий, которыми отмечается незаконная перепланировка. Для того, чтобы узаконить перепланировку и получить документы БТИ (без красных линий), владелец помещения обязан обратиться в проектную компанию за помощью в разработке технического заключения о допустимости и безопасности ранее выполненных работ.
Пример технического паспорта БТИ с красными линиями (подобные технические паспорта выдавались до 2020 года):
Пример плана БТИ с пронумерованными на них обозначениями:

1 — площадь комнаты; 2 — балкон; 3 — дверь на балкон; 4 — дверной проем с дверью; 5 — оконный проем между кухней и туалетом; 6 — ширина комнаты; 7 — ванная; 8 — раковина; 9 — туалет; 10 — газовая плита; 11 — окно на фасаде здания; 12 — номер входа в квартиру; 12 — длинна комнаты.
Условные обозначения на проекте для согласования перепланировки

План 1 1 — газовая плита; 2 — ванна; 3 — унитаз; 4 — дверной проем с дверью; 5 — оконный проем на фасадной стене; 6 — несущая стена; 7 — входная дверь в квартиру; 8 — номер квартиры; 9 — ненесущая стена; 10 — условные обозначения типа стен; 11 — номер отдельно взятого помещения квартиры.
План 2 1 — входная дверь в квартиру; 2 — оконный проем в фасадной стене дома; 3 — номер отдельного помещения квартиры; 4 — умывальник/мойка/раковина; 5 — электрическая плита; 6 — мойка; 7 — сантех.кабина; 8 — унитаз; 9 — проем в стене без двери; 10 — проем с дверью.
Надеемся наша статья помогла вам разобраться как в плане БТИ квартиры обозначаются различные элементы. Если же у вас будет вопрос не освященный в данной статье и на который вы не нашли ответа, вы всегда можете позвонить по контактному номеру нашей организации, или в форме ниже.
Вычерчивание чертежей фасадов здания
Фасадами называют виды зданий спереди, сзади, сбоку. Видом здания сверху называют планом крыши. На чертежах фасадов зданий показывают высший вид здания, расположение окон, дверей, балконов, наличников и т. п. (рис. 9.1).

Рис 9.1. Фасады зданий
Чертежи фасадов зданий выполняют в соответствии с ГОСТ 21.501-93.
Методика вычерчивания фасада
1. Над чертежом плана здания на расстоянии 30-50 мм от него наносят горизонтальную линию, обозначающую линию уровня земли (рис. 9.2. а).
2. Наносят крайние координационные оси и общий контур здания, а также выступающие его части (рис. 9.2 б).
Для этого от уровня земли последовательно откладывают величину цоколя, высоту помещения 1-го этажа, толщину междуэтажного перекрытия, высоту помещения 2-го этажа, толщину чердачного перекрытия.
Цокольная часть здания, располагающаяся на уровне пола 1-ого этажа, выходит за плоскость стены на 30-40 мм.
3. Вычерчивают архитектурные элементы фасада (оконные и дверные проемы, балконы, козырек над входной дверью, карниз, крышу) (рис. 9.2. в). Расположение оконных и дверных проемов определяют в соответствии с планом здания (на рис. 9.2 в,г показана часть плана вычерчиваемого здания).
4. Крышу на фасаде вычерчивают с построенного ранее плана крыши методом проецирования линий коньков и ребер по их длине и уклону.
Вычерчивают оконные переплеты, двери, проставляют знаки высотных отметок.
Справа и слева от изображения на расстоянии 10-15 мм проставляют высотные отметки уровня земли, цоколя, низа и верха проемов, карниза и верха кровли.
Размеры на чертежах фасада не наносят, показывают только координационные оси стен, расположенных по углам здания.
Чертежи фасадов именуют по крайним координационным осям, например, ФАСАД 1-7, или по одной оси, например, ФАСАД по оси А.
5. Проверяют соответствие фасада с планом и окончательно обводят фасад.
Видимые контуры на чертежах фасадов выполняют тонкой сплошной линией, а линия контура земли, выходящая за пределы фасада, показывают толстой сплошной линией (см. п.2. «Масштабы строительных чертежей. Линии чертежа» стр. 5 данных методических указаний).
Чертежи фасадов гражданских зданий выполняют, как правило, в масштабе 1:100; 1:200, промышленных – 1:200; 1:500.

Рис. 9.2. Последовательность вычерчивания фасада здания
План крыши
Вид здания сверху называется планом крыши.
План крыши вычерчивают на двойном листе в клетку в строгой проекционной связи с планом здания.
Методика вычерчивания плана крыши
1. Штриховой линией чертят контуры здания в том же масштабе.
2. Параллельно нанесенному штриховой линией контуру здания по всему его периметру на расстоянии 5 мм сплошной основной линией наносят очертания свеса крыши (рис. 10.1 а).
3. Ребра между гранями кровли будут биссектрисами углов. Каждая крыша имеет грань (скаты и ребра (линии пересечения скатов)). Точка пересечения двух ребер определяет начало конька, соединив которую с противоположной точкой двух ребер, получим длину конька в плане.
На рис. 10.1 б а дан контур плана здания. Разбив фигуру на три прямоугольника А, Б и В, перекрываем наибольшую из них – фигуру А. Для этого проводим биссектрису углов до взаимного пересечения. Затем так же перекрываем фигуру Б, а затем фигуру В.
4. Для построения крыши на фасаде или разрезе здания план крыши нужно спроецировать, с заданным варианте задания, углом на горизонтальную прямую линию.
На произвольном расстоянии от плана крыши проводят горизонтальную прямую линию. На эту прямую проецируют точки пересечения ребер (коньков). Затем с заданным углом соединяют данные точки (рис. 10.1 в).
Что значат цифры и латинские буквы
Правила включения в маркировку противопожарной двери цифр и латинских букв определяются положениями ГОСТ Р 57327-2016. Комбинация символов показывает специальные характеристики изделия – способность изделия противостоять пожару и сопутствующим негативным воздействиям.
Цифры показывают, в течение какого периода времени в минутах огнестойкая конструкция сохранит изначальные свойства и работоспособность. Стандартные значения варьируются в широком диапазоне – начиная с 15 и заканчивая 120 минутами. Буквы демонстрируют, о каком из четырех базовых параметров идет речь:
- «Е» — конструктивная целостность коробки и полотна, обеспечивающая работоспособность огнестойкой двери;
- «I» — функциональность наполнителя, предназначенного для препятствования распространения горячего воздуха в соседние помещения;
- «W» — наличие огнеупорного стеклопакета, выдерживающего воздействия пожара;
- «S» — герметичность входной конструкции, не допускающая распространения по зданию дыма, угарного газа и других вредных продуктов горения.
Различные сочетания указанных выше букв обозначают разные виды противопожарных дверей:
- обычные с определенным пределом огнестойкости – EI;
- дымогазонепроницаемые — EIS;
- укомплектованные пожаропрочным стеклом — EIW;
- остекленные дымогазонепроницаемые — EIWS.
Перечисленные типы маркировки используются для любых разновидностей огнестойких конструкций. Это в равной степени касается дверей как для жилых домов или квартиры, так и для общественных, административных или промышленных построек.
Правила при составлении схем
На чертежах изображать двери необходимо в виде стенных проемов. Их запрещается заштриховывать, а наносить нужно в виде перпендикулярных линий. Кроме того, во время создания чертежа должны соблюдаться следующие правила:
- Основные линии должны быть толщиной не больше 0,8 мм;
- Надписи над обозначениями пишутся шрифтом №7;
- Пояснения к условным обозначениям пишутся шрифтом №5.
Кроме условного обозначения, определить полную характеристику двери, например, наличие порожка, тип конструкции, можно по маркировке. Она, согласно установленным нормативам, должна присутствовать на чертежах межкомнатных и входных дверей.
Кто создает маркировку
У заказчиков при выборе противопожарных конструкций часто возникает вопрос о значении непонятных цифровых и буквенных обозначений, которые обычно стоят возле товарного наименования «дверь противопожарная». Кроме того, наиболее внимательные покупатели интересуются, почему данные обозначения в разных проектах неодинаковы. Так откуда же они берутся и кем придуманы?
Следует заметить, что подобная маркировка является абсолютно произвольной, и зачастую каждый производитель пишет и создает ее сам. С помощью букв и цифр выражается краткая характеристика конкретной модели дверей.
Наиболее находчивые производители в такой самодельный артикул вставляют даже название собственной компании, к примеру: ПУЛЬС ДПМ-01/60. Также может использоваться и марка-наименование двери, например – Entrus D1 EIS60.
Маркировка дверей
Маркировка дверей предназначена для короткого определения основных характеристик данной двери. Чаще всего встречаются следующие виду маркировок дверей:
-
ДГ — дверь глухая.
- ДО — дверь остекленная.
- ДМП (или ДПМ) — дверь металлическая противопожарная.
- ДОП — дверь остекленная противопожарная.
- ДДП — дверь деревянная противопожарная.
- ДТ — дверь техническая.
- ДУ — дверь утепленная или усиленная.
- ДМУ — дверь металлическая утепленная или усиленная.
- ДВ — дверь взломостойкая или влагостойкая.
По ГОСТ 31173-2003 «Блоки дверные стальные. Технические условия»:
- ДСВ — дверной блок стальной внутренний.
- ДСН — дверной блок стальной наружный.
Буквы П или Л, дополнительно к какой-либо аббревиатуре, могут означать направление открывания дверного полотна — Правое или Левое, соответственно.
Числовое дополнение 01 или 02 обозначает количество створок у дверного блока, то есть одностворчатая дверь или двустворчатая (однопольная/двупольная).
В маркировке противопожарных дверей обязательно присутствует аббревиатура, обозначающая предел огнестойкости. EI60, EI30, EIS60 или EIS30. Буквы обозначают критерии, по которым определяется огнестойкость, а цифры — временной показатель (минуты), в течение которого огнестойкость соблюдается.
E — потеря целостности; I — потеря теплоизолирующей способности; S — потеря дымо-газонепроницаемых свойств.
Блоки дверные из металла
Сейчас древесные входные двери устанавливают по большей части в частных зданиях. В многоэтажных зданиях предпочтения чаще отдаются дверям железным — а они изготавливаются в соответствии с другому стандарту: 31173*2003. Этот документ предъявляет требования к изготовлению металлических блоков, с внедрёнными в них устройствами, мешающими несанкционированному проникновению в помещение.
Что касается стандарта на сами двери, то он распространяется лишь на металлические блоки, устанавливаемые в гражданских зданиях разного назначения, а также и жилых. Что касается дверей особого назначения, каковые должны быть, например, пуленепробиваемыми, либо владеть устойчивостью на протяжении взрыва либо пожара – то их изготавливают совсем по другим регламентирующим документам.
Классификация и маркировка
Классифицируют металлические двери по таким показателям, как конструкция, механические характеристики, эксплуатационные требования, вид отделки. Конструктивно их различают по коробке: она возможно П-образная; П-образная с порогом; замкнутая.
-
Ещё один метод конструктивного различия — это вариант и число открывания полотен. Они смогут быть однопольные, а также левые и правые. Смогут иметь два полотна: как однообразной, так и различной ширины — а также и одно неоткрывающееся. И двери смогут отворяться вовнутрь дома либо наружу.
- По числу контуров, размещаемых в притворе, вариантов изготовления возможно лишь два. У двери, в большинстве случаев, или один контур, или два – больше не редкость очень редко, не смотря на то, что ГОСТ это также допускает.
- Отделка железных дверей возможно весьма разнообразной. Не считая лакокрасочных и порошковых покрытий, это всевозможные облицовки: кожзаменители и кожа с утеплением; наклеиваемые ПВХ плёнки; плитки и деревянные рейки; шпон; стекло; декоративные железные элементы. К тому же двери, изготовленные по ГОСТ 31173*2003, смогут быть и комбинированными.
- Маркируются железные двери по такому же принципу, как и древесные, лишь размеры указываются не в дециметрах, а в миллиметрах, и добавляется обозначение класса прочности. К примеру, маркировка ДСВ ДКН 2100-1270 М3 расшифровывается так: дверь металлическая внутренняя, двупольная, с замкнутой коробкой, раскрывающаяся наружу. Высота 2100 мм, ширина 1270 мм — прочность соответствует классу М3.
Комплектные дверные блоки, изготовленные из металла, должны поставляться клиенту в собранном виде, а также и с установленными замками. По дополнительному согласованию дверь возможно снабжена доводчиком, смотровым глазком или ограничителем открывания.
Полный набор ключей должен быть запечатан в конверт и передан клиенту под роспись. К ним прикладывается паспорт изделия, плюс инструкция по монтажу от производителя.
- https://www.kp.ru/guide/protivopozharnye-dveri.html
- http://blog-oremonte.ru/dveri/markirovki-dveri-i-gost-oboznacheniia.html
- http://mils-dveri.ru/articles/markirovka-dveryay.html
- https://masterim.guru/strojmaterialy/razmery-vxodnyx-dverej-po-gost/
- https://www.metal-tehdoor.ru/articles/markirovka-dverey-v-proektnoy-dokumentatsii.html
Где найти список обозначений?
Обозначения вы найдете в разнообразных справочных материалах и книгах , конструкторских регламентах и методических указаниях нужной вам специализации. Для поиска более точных и правильных обозначений, рекомендуем пользоваться ГОСТами:
| Номер ГОСТа | Название |
| ГОСТ 2.303-1968 | Единая система конструкторской документации. Линии |
| ГОСТ 2.306-1968 | Единая система конструкторской документации. Обозначения графические материалов и правила их нанесения на чертежах |
| ГОСТ 2.315-1968 | Единая система конструкторской документации. Изображения упрощенные и условные крепежных деталей |
| ГОСТ 21.112-1987 | Система проектной документации для строительства. Подъемно-транспортное оборудование. Условные обозначения |
| ГОСТ 21.204-1993 | Система проектной документации для строительства. Условные графические обозначения и изображения элементов генеральных планов и сооружений транспорта |
| ГОСТ 21.205-1993 | Система проектной документации для строительства. Условные обозначения элементов санитарно-технических систем |
| ГОСТ 21.206-1993 | Система проектной документации для строительства. Условные обозначения трубопроводов |
| ГОСТ 21.302-1996 | Система проектной документации для строительства. Условные графические обозначения в документации по инженерно-геологическим изысканиям |
| ГОСТ 21.501-2011 | Система проектной документации для строительства. Правила выполнения рабочей документации архитектурных и конструктивных решений |
Благодаря черчению, этому универсальному языку инженеров, знания и уникальные достижения во многих специализациях стали достоянием всего человечества, ускоряя путь к совершенству.
Путаетесь в обозначениях на чертежах? Есть проверенный вариант, чтобы преподавателю понравилась работа — заказать чертеж у наших экспертов!
Блоки дверные из металла
Сейчас древесные входные двери устанавливают по большей части в частных зданиях. В многоэтажных зданиях предпочтения чаще отдаются дверям железным — а они изготавливаются в соответствии с другому стандарту: 31173*2003. Этот документ предъявляет требования к изготовлению металлических блоков, с внедрёнными в них устройствами, мешающими несанкционированному проникновению в помещение.
Что касается стандарта на сами двери, то он распространяется лишь на металлические блоки, устанавливаемые в гражданских зданиях разного назначения, а также и жилых. Что касается дверей особого назначения, каковые должны быть, например, пуленепробиваемыми, либо владеть устойчивостью на протяжении взрыва либо пожара – то их изготавливают совсем по другим регламентирующим документам.
Требования к качеству деревянных дверей
Какие условные обозначения на чертежах по ГОСТу дверей предусматриваются, мы выяснили. Но какие же существуют требования к изготовлению подобных конструкций? Согласно нормативам ГОСТ 475-78, такие конструкции могут изготавливаться с незначительными отклонениями от стандартных габаритов. При этом в документе указываются максимальные допуски.
Также, согласно ГОСТ 475-78, деревянные двери могут производиться с использованием следующих материалов:
- хорошо просушенного дерева;
- фанеры;
- металлического проката;
- узлов из пластика;
- стекла и клея.
При этом для тех моделей, которые в последующем будут эксплуатироваться в условиях повышенной влажности, полагается использовать древесину хвойных пород. Для дверей, предназначенных для установки в обычных комнатах, согласно ГОСТ, допускается применять лиственный материал.
Маркировка конструкций
Как обозначаются двери различных конструкций на чертежах понятно, а теперь стоит разобраться с маркировкой. Компании по производству дверей изготавливают полотна различных размеров и это же в обязательном порядке должно быть указано в чертежах и маркировке.

Согласно ГОСТу, производитель указывает размеры полотна для того проема, для которого оно предназначено и это же указывается на схеме рядом со значком двери. Кроме того, модель изделия «О» или «Г» может иметь две створки неравные по ширине и тогда около дверей на чертеже по ГОСТу указываются дополнительные буквы «П» и «Л», что означает правое и левое полотно. Также если конструкция оснащена порожком, то это обозначается в виде буквы «П».
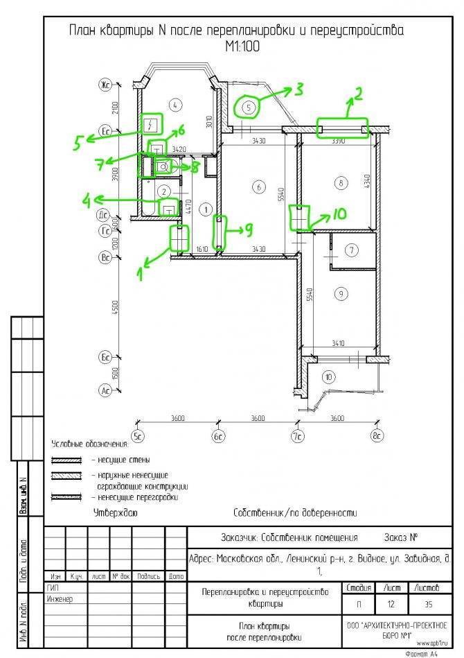
Пример плана БТИ с пронумерованными на них обозначениями:

1 — площадь комнаты; 2 — балкон; 3 — дверь на балкон; 4 — дверной проем с дверью; 5 — оконный проем между кухней и туалетом; 6 — ширина комнаты; 7 — ванная; 8 — раковина; 9 — туалет; 10 — газовая плита; 11 — окно на фасаде здания; 12 — номер входа в квартиру; 12 — длинна комнаты.
Условные обозначения на проекте для согласования перепланировки

План 1 1 — газовая плита; 2 — ванна; 3 — унитаз; 4 — дверной проем с дверью; 5 — оконный проем на фасадной стене; 6 — несущая стена; 7 — входная дверь в квартиру; 8 — номер квартиры; 9 — ненесущая стена; 10 — условные обозначения типа стен; 11 — номер отдельно взятого помещения квартиры.
План 2 1 — входная дверь в квартиру; 2 — оконный проем в фасадной стене дома; 3 — номер отдельного помещения квартиры; 4 — умывальник/мойка/раковина; 5 — электрическая плита; 6 — мойка; 7 — сантех.кабина; 8 — унитаз; 9 — проем в стене без двери; 10 — проем с дверью.
Надеемся наша статья помогла вам разобраться как в плане БТИ квартиры обозначаются различные элементы. Если же у вас будет вопрос не освященный в данной статье и на который вы не нашли ответа, вы всегда можете позвонить по контактному номеру нашей организации, или в форме ниже.
Правила установки межкомнатных дверей по госту. Установка межкомнатных дверей: ГОСТ и СНиП

Для того чтобы двери могли обеспечить комфорт и безопасность жильцов квартиры, при их установке необходимо опираться на нормативные документы, такие как СНиП (строительные нормы и правила) и ГОСТ (государственный стандарт). В СНиП прописаны требования и рекомендации по установке межкомнатных дверей, ГОСТ определяет их размеры, технические характеристики и особенности устройства.
Требования к изготовлению дверей по ГОСТ
Несмотря на большое разнообразие конструктивных решений, производство дверей для комнат не должно противоречить четким условиям, диктуемым государственными стандартами. Существует целый список нормативных документов, определяющих правила изготовления этого вида изделий.
- ГОСТ 6629–88 содержит исчерпывающий перечень всех ТУ и стандартов, которые касаются дверей, изготавливаемых из дерева.
- ГОСТ 475–78 устанавливает общие требования ко всем видам деревянных изделий.
- ГОСТ 24698–81 определяет типы, размеры и варианты конструкции межкомнатных дверей.
- ГОСТ 30970–2002 описывает характеристики изделий из ПВХ.
- Сертификат соответствия № 6629-88 содержит сведения о вариантах соединения и стандартных размерах.
- Стандарт СТБ 2433-2015 «Блоки дверные. Общие технические условия» включает в себя классификацию, параметры разных типов дверей, требования к ним.
- ГОСТ 538–88 дает информацию о требованиях к дверным доборам, петлям и крепежным элементам.
Обозначения лестничных клеток
Такими схемами пользуются в многоэтажных домах. Там лестницы построены строго по ГОСТу, и на каждом этажа должен иметься план конструкции с ее обозначениями. Обычно изображают лестничные сечения, марши (нижний, верхний, средний). Специальными стрелками указывается направление марша вверх. Линия начинается с небольшого кружка, а заканчивается острой стрелой. Лестничные клетки также представляются на схеме отдельными маршами и проемами.

Лестничные параметры
Обозначение конструкций на чертежах
При разработке проекта дома с лестницей, конструкция марша условно обозначается, как на рисунке. При этом кружочком отмечается низ изделия, а стрелкой – верх.

Обозначение на чертежах лестниц
Помимо формы, на чертеже условно изображается и материал изготовления.
Например:
- Дерево в поперечном разрезе штрихуется круговыми и радиальными линиями, которые имитируют годовые кольца древесины и радиальные трещины на ней. В продольном разрезе рисуются продольные линии, имитирующие текстуру. Если в линию разреза материал лестницы не попадает, он не штрихуется;
- Железобетонные лестницы на чертежах изображаются в сечении кружочками неправильной формы между диагональной штриховкой;
- Металлические конструктивные детали в разрезах штрихуются диагональными линиями под углом 45°. Если лестницы и их чертежи имеют очень мелкий масштаб, а толщина элемента менее 2 мм, они имеют сплошную заливку.
Пример обозначений на чертежах
Стоит на примере показать, как проводится расшифровка информации на чертежах деревянных конструкций:
-
- ДК 24-19. «Д» указывает на то, что изделие является дверью, а «К» — качающийся тип. Первая цифра 24 означает высоту проема в 24 дм, а 19, соответственно, ширину в 19 дм;
- ДО 24-15П. Двупольная правая дверь с порожком, а буква «О» означает, что конструкция стеклянная, либо с небольшими стеклянными вставками;
- ДГ21-7ЛП. Изделие состоит из одного левого полотна, с порожком. Предназначено для высоты проема в 21 дм и ширины 7 дм.
Чертеж – это не просто рисунок с изделием, но и схема, где содержатся все данные для производства и эксплуатации. Для его разработки потребуется большой опыт инженера, чтобы правильно произвести обозначение раздвижных, распашных или складных моделей дверей на чертежах, указать все технические характеристики и прочее.
Кто создает маркировку
У заказчиков при выборе противопожарных конструкций часто возникает вопрос о значении непонятных цифровых и буквенных обозначений, которые обычно стоят возле товарного наименования «дверь противопожарная». Кроме того, наиболее внимательные покупатели интересуются, почему данные обозначения в разных проектах неодинаковы. Так откуда же они берутся и кем придуманы?
Следует заметить, что подобная маркировка является абсолютно произвольной, и зачастую каждый производитель пишет и создает ее сам. С помощью букв и цифр выражается краткая характеристика конкретной модели дверей.
Наиболее находчивые производители в такой самодельный артикул вставляют даже название собственной компании, к примеру: ПУЛЬС ДПМ-01/60. Также может использоваться и марка-наименование двери, например – Entrus D1 EIS60.
Правила при составлении схем
На чертежах изображать двери необходимо в виде стенных проемов. Их запрещается заштриховывать, а наносить нужно в виде перпендикулярных линий. Кроме того, во время создания чертежа должны соблюдаться следующие правила:
- Основные линии должны быть толщиной не больше 0,8 мм;
- Надписи над обозначениями пишутся шрифтом №7;
- Пояснения к условным обозначениям пишутся шрифтом №5.
Кроме условного обозначения, определить полную характеристику двери, например, наличие порожка, тип конструкции, можно по маркировке. Она, согласно установленным нормативам, должна присутствовать на чертежах межкомнатных и входных дверей.
Классификация дверей
Классификация различных дверей по ГОСТу выполняется по многим параметрам. Один из этих параметров – назначение дверей. Если посмотреть перечень стандартов на дверные конструкции из дерева, то они делятся на:
- Двери деревянные внутренние. Они предназначаются для установки в жилых помещениях и общественных зданиях;
- Деревянные двери для производственных помещений;
- Наружные деревянные дверные блоки для жилых и общественных зданий;
- Дверные конструкции из ПВХ;
- Металлические двери для любых зданий и помещений;
- Дверные конструкции из алюминиевых сплавов;
- Защитные дверные полотна;
- Противопожарные системы;
- Банковские защитные изделия.
Двери могут быть как рамочными, так и щитовыми. Кроме того, полотно может быть оснащено различными фрамугами и порогами, но это не обязательно. По количеству створок дверное полотно может быть одностворчатым или же двухстворчатым. Размеры отдельных створок могут быть как одинаковыми, так и различными. Также полотно может быть остекленным или глухим, с нормальным или высоким уровнем стойкости к воздействию влаги.

Еще одни признак, по которому в ГОСТ классифицируются двери – направление, а также способы открывания дверного полотна.
Самые популярные – это распашные изделия. Они могут открываться только в какую-либо одну сторону. Двери называют левыми, если при открывании створка движется по часовой стрелке. Правые двери, соответственно, будут открываются в другую сторону. Это самое популярное решение, которое используется практически везде.

Маятниковая дверь – это один из видов распашной конструкции. Особенность такого решения в том, что двери могут распахиваться в любую сторону.

Также в ГОСТ описаны раздвижные двери. Эти изделия широко используется в малогабаритных квартирах. С помощью такой двери можно существенно сэкономить свободное пространство в помещении. Дверное полотно открывается сдвиганием в сторону.

Условные обозначения дверей на чертежах согласно ГОСТу
На чертежах масштабом 1:50 и больше двери должны обозначаться обязательно. Пример схемы обозначения можно увидеть ниже:
| № | Изображение | Тип конструкции |
| 1 | Однопольная | |
| 2 | Двупольная | |
| 3 | Двойная двупольная | |
| 4 | Двойная однопольная | |
| 5 | Откатная наружная однопольная | |
| 6 | Однопольная откатная с открыванием в нишу | |
| 7 | Раздвижная двупольная | |
| 8 | Складная | |
| 9 | Складная-откатная |
Такое обозначение двери на чертеже должно присутствовать во всех схемах. Например, на таблице хорошо видно, что раздвижная система указана в виде прямоугольников с идущими к ним параллельными линиями, а вот распашная система рисуется с прямоугольниками и идущими под углом линиями и т.д.
Измерение и определение размеров (ширины) оконных проемов на плане дома в Автокад
Восппользуйтесь инструментом «Расстояние» на классической панели инстументов «Сведения», либо из панели инструментов «Утилиты» на вкладке «Главная» ленты инструментов, тем самым вызвав команду «Дист» в Автокад. Измерьте ширину оконного проема. Его ширина получалась 932 мм.
Таким же образом измеряем ширину остальных оконных проемов на рисунке плана первого этажа коттеджа. Получаем значения ширины оконных проемов = 1190 , 2080 мм.
Ниже представлена картинка «Ширина оконных проемов для жилых помещений для наружных стен». Согласно данным ГОСТа размеры оконных проемов для плана нашего коттеджа принимается 910 мм, 1210 мм, 2110 мм.
Как чертить лестницу в разрезе – фото и видео
Как чертить лестницу своими руками — к данному этапу выполнения разреза дома следует переходить практически в последний момент. На вашем разрезе должно быть практически все: оси, стены, полы и прочее. Кроме того, вам необходимо вычислить габариты лестницы и ее элементов. Как чертить лестницу, шаги:
- чертим лестничные площадки, как правило, они имеют стандартную ширину (при черчении двухмаршевой лестницы они займут всю ширину лестничной клетки) и длину (можно уточнить в сборнике железобетонных элементов);
- от внутренней грани стены следует отложить длину первой площадки и длину лестничного марша. Чертим противоположные площадки;
- делим горизонтальную проекцию лестничного марша на количество степеней n-1. То есть, если у нас 10 ступеней, то делить нужно на 9.
- от свободных краев площадки следует отложить ширину одной проступи в направлении к стене. Это необходимо для формирования забежной ступени. Отметим, что верхний проступенок входит в ширину площадки;
- проводим вертикальные линии через подступенки и проводим горизонтальные, которые станут проступнями;
- вычерчиваем перила.

После выполнения чертежа лестницы, разрез готов. Далее переходят к черчению фасада дома.
Порядок чтения чертежей для начинающих
Помимо чертежей, также широко используется эскиз – это не технический чертёж. Это набросок предмета в произвольном масштабе, для изготовления которого не применяют чертёжные инструменты, и он не сопровождается надписями и размерами. Какие-либо знаки на нём и рядом с ним также не ставятся. Качество эскиза зависит от того, насколько он приближен к чертежу.

Чтение чертежа – это представление на двумерной плоской поверхности по изображениям объёмной формы предмета и его размеров и содержащее прочие сведения.
Но как научиться читать чертежи правильно? Существуют ли какие-нибудь простые, общие принципы для этого?
Чтение происходит в следующем порядке:
- читается основная надпись чертежа;
- определяется главный вид;
- анализируются виды и мысленно объединяются в единое целое;
- определяются размеры детали и её компонентов.
Условные обозначения дверей на чертежах согласно ГОСТу
На чертежах масштабом 1:50 и больше двери должны обозначаться обязательно. Пример схемы обозначения можно увидеть ниже:
| № | Изображение | Тип конструкции |
| 1 | Однопольная | |
| 2 | Двупольная | |
| 3 | Двойная двупольная | |
| 4 | Двойная однопольная | |
| 5 | Откатная наружная однопольная | |
| 6 | Однопольная откатная с открыванием в нишу | |
| 7 | Раздвижная двупольная | |
| 8 |
Складная |
|
| 9 | Складная-откатная |
Такое обозначение двери на чертеже должно присутствовать во всех схемах. Например, на таблице хорошо видно, что раздвижная система указана в виде прямоугольников с идущими к ним параллельными линиями, а вот распашная система рисуется с прямоугольниками и идущими под углом линиями и т.д.
Как выделить окна на фасаде фото решения
Первое, что интересует при отделке фасада дома декором — это оформление проемов. Оконные и дверные проемы создают главную визуальную картинку фасада. Несоответствие пропорций площади окон и площади стен всегда производит удручающее впечатление. Слишком узкие или слишком широкие окна легко превращаются различными архитектурными приемами в произведение искусства. Объединением нескольких окон фасадным декором из пенопласта в единую композицию в соответствии с общей концепцией наружной отделки фасада дома — один из немногих приемов декорирования оконных проемов. Если Вам нужен дизайн окон снаружи — ниже на странице вы можете видеть ряд готовых решений — примеров отделки оконных проемов по которым можно легко определиться с собственными предпочтениями в дизайне.
ПЛЮСЫ И МИНУСЫ РАЗДВИЖНЫХ СИСТЕМ
Раздвижные системы выгодно отличаются от традиционных распашных дверей как эстетически, так и своей функциональностью. Но за множеством преимуществ в них скрыт ряд недостатков. Конечно, их не назвать значительными, но учитывать при выборе той или иной дверной системы всё же стоит.
К главным преимуществам раздвижных дверных систем можно отнести:
Значительная экономия пространства. Это их самые главное достоинства. Такие двери не требуют дополнительного места для открывания, в открытом состоянии не мешают свободному проходу. Расположение дверных механизмов, как и движение полотен, осуществляется параллельно стене, что делает такие двери оптимальным решением для малогабаритных помещений;
Безопасность и удобство использования
Такая дверь не захлопнется от резко возникшего сквозняка или неосторожного движения. Для меня это значительно уменьшает вероятность остаться на улице без ключей в кармане;
Универсальность
Такие конструкции можно использовать в качестве входных и межкомнатных, либо даже в роли мобильных перегородок, необходимых для временного разграничения пространства.
На практике, сделать раздвижной можно буквально любую дверь — достаточно традиционные петли заменить механизмом из салазок и роликов, а стандартный замок — на специальный запорный механизм для дверей-купе. Соответственно, в качестве основы можно использовать полотна из любого материала: к примеру, я использовал уже известные вам по моим предыдущим статьям ОСП-плиты.

К главным недостаткам подобных дверных конструкций обычно относят:
- Высокую стоимость по сравнению с ценой традиционных распашных дверей. Весьма спорное утверждение, особенно если делать всё самостоятельно и из подручных материалов.
- Сложность монтажных работ. Я не заметил ничего слишком сложного для выполнения. Специального или редкого инструмента и оборудования не требуется, помощник тоже не нужен — работы можно провести самому.
- Низкий уровень тепло- и шумоизоляции дверей. Обусловлено это зазорами как между двумя противоположными полотнами, так между полотнами и дверным проёмом. Но это проблема легко решается — ниже я расскажу, как немного модернизировал конструкцию, избежав проникновения холодного воздуха и пыли сквозь двери.
- Шум при движении по направляющим. При использовании дорогих высококачественных механизмов, оснащённых силиконовыми вкладками и специальной смазкой, шум при работе дверей-купе минимален. Также есть способы сделать бесшумной работу изготовленного самостоятельно механизма для дверей-купе. В дальнейшем я планирую ими воспользоваться.
- Необходимость ухода за салазками: чистки и смазки. Однако петли традиционных распашных дверей также нужно периодически смазывать.
Тщательно взвесив все достоинства и недостатки раздвижных систем, я всё-таки решил остановиться именно на них. К тому же у меня было под рукой всё необходимое для изготовления раздвижного механизма.





































