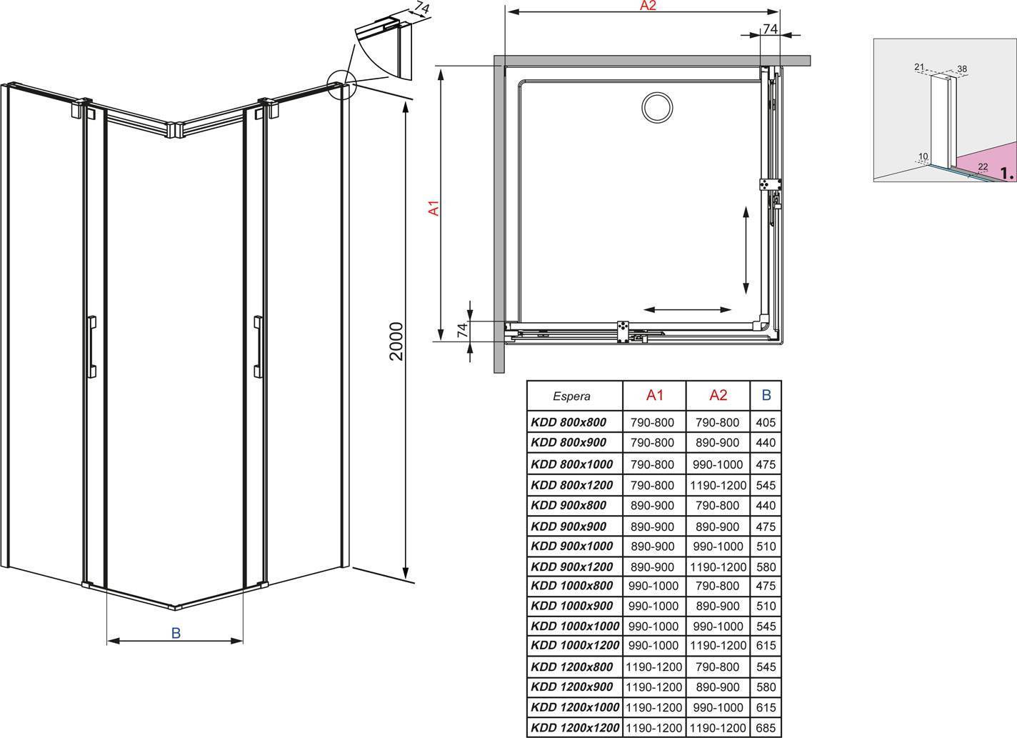
Монтаж боковых стенок
Удаляем защитную плёнку с верхней части поддона, но дно пока оставляем защищённым.
Отодвигаем поддон от одной стены и устанавливаем туда непрозрачную стенку.
Соединяем отверстия в поддоне с уголком и прикручиваем саморезами 35 мм (без особых усилий).
Проводим маркером вдоль уголка и отмечаем отверстия.
Снимаем перегородку и наносим слой силикона толщиной 5 мм.
Устанавливаем перегородку обратно и удаляем излишки силикона. Далее я не буду писать про удаление излишков, удаляйте их сразу после прижатия деталей.
Пододвигаем поддон с перегородкой к стене и примеряем центральную панель, чтобы понять, нужна ли дополнительная подкладка.
Наносим силикон на стык боковой стенки и центральной панели.
Связываем их саморезами 10 мм.
Крепим вторую боковую стенку аналогично первой.
Примеряем неподвижную прозрачную перегородку. Косой рез металлического профиля должен быть внизу.
Если всё сходится, силиконим профиль и устанавливаем перегородку.
Верхний край выставляем вровень со стенкой
С верхней внешней стороны в профиле просверлите отверстие диаметром 3 мм и стяните саморезами перегородку со стенкой.
Вот так это выглядит на практике.
Устанавливаем верхний и нижний профиль. Округлые части направляются друг к другу, верхний профиль шире нижнего. Под нижний наносим силикон.
Заводская душевая кабинка – как собрать её самостоятельно ?
Если вы решили приобрести готовую кабину и установить ее своими силами, то приведенная инструкция предназначена специально для вас! Процесс состоит из нескольких этапов, рассмотрим каждый из них.
Этап первый. Поддон
Работа должна начинаться со сборки поддона. Практически на всех моделях поддоны идут со специальным ножками – их необходимо выставить по уровню, после чего зафиксировать гайками. Затем закрепите сливной шланг – к самому поддону и к соответствующему отверстию канализации.
Затем проверьте, надежна ли уплотнительная прокладка. Если нужно, дополнительно применяйте водостойкий герметик.
Этап второй. Водоснабжение
Также установите тройник для ГВС/ХВС, к которому в дальнейшем будет подключена и сама кабина. Для герметизации применяйте ленту ФУМ, элитные герметики либо простую паклю.
Этап третий. Электрическое питание
Оно необходимо для большей части современных моделей, поэтому нужно позаботиться об отдельной розетке для кабинки
Обращайте внимание на то, чтобы розетка была специальной, то есть предназначалась для помещений с повышенным уровнем влажности. Располагаться она должна так, чтобы провод не натягивался, в идеале – сзади или сбоку кабины
Этап четвертый. Стенки
Данный процесс может отличаться в зависимости от конкретной модели, но для фиксации стенок в большинстве случаев применяются простые крепежные болты. Для дверок же применяйте роликовые механизмы.
Хотя крепления бывают и другими. К слову, сборку следует начинать исключительно со стенок и потолка конструкции, а уже потом приступать к дверке.
Этап пятый. Водоотвод
Далее вам понадобятся шланги для воды. В идеале они должны быть с резьбовыми соединением, если же таковых нет, предпочтительнее приобрести другие шланги. Хомуты же, как правило, которыми комплектуются кабины, низкого качества, а потому лучше не используйте их.
Этап шестой. Дополнительная фурнитура
Ваша душевая кабина своими руками может комплектоваться различной электроникой (например, радио, подсветкой или массажем). Для работы требуется 12-вольное напряжение, следовательно, потребуется сборка специального преобразователя (последний, как правило, включается в базовую комплектацию).
Этап седьмой. Последний штрих – проверка герметичности
Когда герметик окончательно высохнет, его нужно проверить на качество путем включения слабого напора воды. При наличии подтеков швы нужно герметизировать повторно. Заметим также, что сборка может отличаться от описанной выше схемы – все зависит от конструкции конкретной модели. Но главные этапы описаны верно.
На этом все, удачи! Не забудьте посмотреть видео по теме!
Этап первый
Первым делом, перед сборкой душевой кабины, распакуйте все коробки и достаньте все составляющие и комплектующие.
Разложите их и проверьте, все ли комплектующие на месте.
Стандартная душевая кабина со стеклянной задней стенкой состоит из следующих сборочных единиц
Поддон (некоторые производители поставляют поддон в собранном виде, если у вас поддон не собран, то в коробке с поддоном у вас будут лежать следующие запчасти)
- Поддон
- Крыша
- Передний декоративный экран
- Горизонтальные профиля-2 шт (верхний и нижний)
- Каркас
- Комплектующие для сборки каркаса и крепления декоративной панели(шпильки,болты,ножки)
Очень часто, все вышеперечисленные комплектующие лежат в одной коробке. Это самая большая коробка. Также, внутри может лежать коробочка со всеми комплектующими, где вы сможете найти все для сборки душевой кабины.
Если вы не можете найти резьбовые шпильки для ножек и каркаса, потрясите сам каркас, некоторые производители кладут шпильки внутрь каркаса.
Задняя стенка
Два стекла одинакового размера
Они могут быть сразу обрамлены алюминиевыми профилями, либо просто два стекла, если задняя стенка собирается на уголках.
Отличаются эти две стенки одна от другой, наличием уже просверленных в них отверстий под комплектующие. Такие как полочка, зеркало, массаж ног, ручной душ и другие.
Чтобы понять какое стекло правое или левое, посмотрите на изображение товара на инструкции или в интернете. Там вы увидите комплектацию вашей душевой кабины, и с какой стороны расположены опции
Передние стекла
- Неподвижные стекла-2 шт
- Двери-2 шт (изогнутое стекло с отверстиями под ролики и ручки)
- Горизонтальные профиля-2 шт.
- П-образные уплотнители (2 или более штук)
- Магнитные уплотнители на двери-2 шт(могут уже быть закреплены на дверях)
- Г-образные отсекатели (2 или 4 шт)
Центральная стойка
Она может быть с уже прикрученными опциями, например смеситель или подсветка. Также, очень часто внутри, с обратной стороны кладут прямо в панель различные уплотнители и прочие мелкие запчасти.
Видео инструкция по сборке душевых кабин
https://youtube.com/watch?v=WGRG5Afooz4
Комплектующие
Обязательные комплектующие, которые есть у всех душевых кабин
- Ролики для дверей
- Ручки
- Смеситель
- Ручной душ
- Держатель ручного душа
- Сифон слива
- Уголки держателя боковых стекол
- Крепежные элементы (Саморезы,болтики,шайбочки,хомутки)
Комплектующие которые зависят от комплектации душевой кабины
- Форсунки
- Тропический душ
- Пульт управления опциями
- Динамик радио
- Лампочки подсветки
- Блок питания
- Массажер для ног
- Парогенератор
- Сиденье
- И прочее
То есть на этом этапе, вы, зная комплектацию своей душевой кабины, можете визуально перед сборкой осмотреть и понять, что куда прикручивается, или вдруг чего–то не хватает.
Пошаговая инструкция по оборудованию душевой кабины своими руками

Установка душевой кабины в доме из дерева, предусматривает обязательное соблюдение соответствующих правил, без которых монтаж не удастся:
- должен быть оборудован сливной трап, который отвечает за отход воды из здания;
- оборудовать на должном уровне вентиляцию внутри помещений. Это принципиально важный момент для выхода влажных воздушных масс – комната должна хорошо проветриваться.
Поэтапно душ в деревянном доме обустраивается таким образом:
этап планировки всех тонкостей – количество санузлов в здании, вместительность помещения, количество человек, которые будут им пользоваться
Важно продумать детали расположения розеток для подключения сантехники, определить местонахождение стиральной машины, душевой кабины и прочего;
определиться с ремонтными работами и отделкой ванной комнаты, параметрами труб, ходов вентиляции, провести проводку;
составить схематический план размещения предметов мебели и бытовой техники по помещению, четко обозначив между ними дополнительное расстояние, согласно правим безопасности;
отдельно продумать отделку потолка и стен, материалы для гидроизоляции, обеспечить защиту покрытиям из дерева;
обустроить пол. Если решено ложить плитку, стоит сначала сделать стяжку из бетона, с армирующими сетками
Следующий слой – гидроизоляция, снова раствор, на который укладывается плитка;
проведение освещения – последний этап монтажа ванной комнаты. Идеально подходят галогенные лампы, напряжение которых относительно небольшое. Важно учесть класс влагостойкости, информацию о котором можно прочесть на упаковке. Можно так же использовать осветительные приборы для использования в условиях с высоким коэффициентом влаги.
Дверки для душевой кабины
Если кабина прямоугольная, все решается более-менее просто: прямоугольник можно вырезать и из стекла в мастерской. Навесов для стеклянных дверей много, можно выбрать более удобный для вашего случая. Только заказывать двери идите с навесами: придется под них сверлить отверстия, и лучше всего их примерить.
Стекло желательно брать закаленное. Оно если и разобьется, то на мелкие осколки с тупыми гранями, которыми сложно пораниться. Но, скорее всего, осколки останутся висеть на пленке. Минус этого стекла — оно дорогое. Чтобы сэкономить, можно заказать обычное толстое — 5-6 мм, а дома оклеить его с двух сторон полимерной полупрозрачной пленкой. Повозиться придется, но эффект будет почти такой же как и с закаленным стеклом: осколки будут на пленке.
Один момент: стекло перед нанесением пленки моют, потом обезжиривают. Пленку наклеивают на мокрое стекло. Так проще пузырьки воздуха выгонять, а еще двигать пленку какое-то время можно.
Если стеклянные двери вам не хочется, но нужны полупрозрачные, можно сделать их из поликарбоната, но не сотового, а листового. Придется найти подходящий мебельный профиль, сделать из него каркас и в каркас на герметик посадить поликарбонат. Для надежности можно и насквозь винтами с шайбами прикрепить.
Еще вариант — купить готовые двери. Есть они и стеклянные специально для кабин, а можно приспособить пластиковые складные «гармошкой», как в видео.
Монтаж и подключение душевой кабины
Если душевая кабина готовая, приобретенная в магазине, то нужно действовать согласно подробной инструкции, которая прилагается к изделию:
- готовят помещение;
- деревянные стены обрабатывают антисептическим и влагозащитным составами;
- если у душевой нет задней шторки и кабина будет соприкасаться со стеной, то древесину нужно обезопасить, обложив кафельной плиткой или поставив экран из стекла или поликарбоната.
- к поддону прикрепляют ножки, регулируя его горизонтальное положение с помощью специальных винтов;
- канализационную трубу надевают на сливное отверстие. Для соединения можно использовать гибкую гофру;
- в поддоне монтируют направляющие для дверок. Прокручивают их винтами;
- стыки обрабатывают силиконовым герметиком;
- закрепляют на стене ванной комнаты заднюю часть душевой кабины;
- подключают сантехнику, если необходимо— электропитание для радио, вентилятора, нагревателя;
- ставят вертикальные опоры;
- проводят остекление неподвижных рам;
- монтируют петли, на которые навешивают дверцы.
Если Вы решили сделать поддон сами, а не купить готовое изделие в магазине, то монтировать кабину нужно немного по-другому. Также, как и в первом случае, место для установки душевой кабины подготавливают: убирают пыль, грязь, обрабатывают древесину, наклеивают на нее водоотталкивающую пленку, обшивают влагостойким гипсокартоном и приклеивают плитку.
Затем начинают укладывать стены поддона из кирпича или заливают их бетоном. От влаги поддон защитит гидроизоляционная мастика, например однокомпонентная полимерная масса для устройства эластичных водонепроницаемых покрытий под плиточные облицовки Ceresit CL51 ЭКСПРЕСС, которой можно обмазать его со всех сторон.
Самый дешёвый вариант — каркас для поддона из строганого бруска
Плитка, которой обкладывают поддон, должна быть шершавая, абразивная. Она обладает противоскользящим эффектом. На канализационную трубу под уклоном ставят трап, надевают смеситель и монтируют душ. На вертикальные стойки крепят рамы конструкции, вставляют стекло, прикрепляют дверцы.
Устройство стен

Как сделать душ и не навредить стенам и потолкам из древесины, ведь в ванной комнате всегда повышенный процент влажности и конденсат – самый распространенный вопрос на строительных форумах и согласно живой статистике специалистов. Ответ прост – ограничить доступ воды на внешнюю поверхность стен дома. Это можно сделать, покрыв нужные поверхности специальным раствором, предусматривающий профилактику гниения и рассыхания дерева.
Еще один подходящий вариант – закрыть пленкой из полиэтилена, а сверху утеплить листами ГВЛ. В самой кабине можно поверх листов наклеить ПВХ – панели. Чтобы смеситель держался крепко на панели, можно прикрепить пластину из металла, которая прочно зафиксирует устройство на месте. Преимуществом покрытия стен ПВХ является функция удерживания тепла.
Разновидности сливных конструкций для душа
Существует большое разнообразие разновидностей сливов для душа в полу под плитку подобного типа. Душевые трапики могут отличаться по форме, конструкции, размерам (по высоте), по материалам изготовления. Касаемо формы решеток, они могут быть прямоугольными, квадратными или круглыми.
А по конструкции различают пристенные, точечные и линейные приспособления. Линейные конструкции устанавливаются, чаще всего, в углу или по краю душевой. Точечные трапы могут быть расположены в любом месте на полу под плиткой, Ну а пристенные устройства монтируются преимущественно у одной из стенок. Различаются трапы также по типу выпуска: горизонтальный или вертикальный. От его расположения зависит, в каком направлении будет подключаться к сливу канализационная труба.
Как правило, в конструкции большинства трапов предусмотрен обыкновенный гидрозатвор, располагающийся в сифоне. Но такое устройство обладает одним существенным недостатком – если долго не пользоваться душем, то вода внутри испаряется, и неприятные запахи проникают в ванную комнату. В этом случае, лучше выбрать трапик для пола душа с сухим затвором.
Конструкции, имеющие сухой затвор, полностью изолируют помещения от проникновения запахов из канализации, поскольку в этом устройстве, кроме водного затвора, имеются еще несколько заслонок, которые перекрывают канал под действием собственного веса. Когда вода проникает в сливной канал, то эти заслонки открываются, беспрепятственно пропуская жидкость, а потом снова закрываются.
Слив в плиточном полу душевой устанавливают в самом удобном для этого месте. Главное, чтобы трап располагался в самой низкой точке санузла, обеспечивая эффективный сбор стекающей жидкости. Так, сливное отверстие может монтироваться в следующих местах:
- В центре душевой кабинки или с незначительным смещением в одну из сторон. Стандарт вариант расположения слива. В этом случае необходимо обеспечить соответствующий уклон пола от четырех стенок.
- У стены. В этом случае уклон пола выполняется от одной из стенок по направлению к сливному отверстию. Как правило, таким образом располагают щелевые трапы с высокой пропускной способностью, поскольку такие устройства засоряются реже.
- В углу. Сливное отверстие такого типа отлично смотрится на полу, не бросаясь в глаза. В этом случае уклон поверхности пола делают в двух плоскостях к нужному углу, обеспечивая сток воды к определенному месту.
Стоит отметить, что при выборе душевого трапа необходимо также обращать внимание на высоту приспособления. От этого параметра зависит, насколько нужно поднимать уровень напольного покрытия у сливного отверстия
Конечно, всем хочется, чтобы высота пола была как можно ниже, однако учитывайте, что чем больше высота трапа, тем у него выше пропускная способность. Поэтому существует особый вид трапа с регулируемой высотой, выбирая его, можно приспособить устройство к любой высоте стяжки.
Какую кабину выбрать
Перед тем как обустроить комнату для гигиены необходимо определиться с душевой кабиной.
При выборе оборудования необходимо учесть:
Габариты кабины, которые должны быть достаточными, чтобы не испытывать дискомфорта во время купания. Оптимальные размеры, которые позволят наклоняться, поднимать, опускать руки составляют не меньше 80х80 см. Оборудование должно четко подходить к размерам ванной комнаты. По периметру необходимо оставить не менее 40 см для удобства монтажа, дальнейшего обслуживания душа.
Форму душевой, которая может быть квадратной, прямоугольной, круглой, полукруглой на угол.
Кабина для душа должна быть ударо-, жаропрочной
Оптимальная толщина элементов из стекла должна составлять не менее 6 мм.
При выборе уделяют внимание функционалу оборудования. Оно может иметь несколько душевых насадок для массажа, функцию тропический дождь, представлять собой мини-сауну, турецкую баню.
При покупке выбирают душевую кабину такой высоты, чтобы оставалось 30 см для удобства монтажа, обустройства подиума. Учитывают также, что деревянный дом в ходе эксплуатации дает некоторую усадку.
Выбирая душевую желательно выбрать такую модель, чтобы номинальное давление оборудования совпадало с давлением в системе водопровода.
Декоративное оформление душа должно совпадать с общим направлением декора ванной комнаты.
Учитывают также, что деревянный дом в ходе эксплуатации дает некоторую усадку.
Выбирая душевую желательно выбрать такую модель, чтобы номинальное давление оборудования совпадало с давлением в системе водопровода.
Декоративное оформление душа должно совпадать с общим направлением декора ванной комнаты.
Душевая кабина своими руками в деревянном доме может быть 3 видов:
- С поддоном, сливом
- В виде бокса с парогенератором, набором функций
- В виде стандартного оборудования с полом под наклоном
Обращают внимание на следующие моменты:
Перед монтажом следует внимательно ознакомиться с инструкцией, обратить внимание на наличие крепежа.
Все основные коммуникационные системы, электропроводка, водоотвод, канализация, должны быть смонтированы до установки душевой кабины.
В местах стыка наносить слой герметика, который обеспечит прочное соединение деталей кабины. Обратить внимание на стыковочные швы между оборудованием и стеной, полом, потолком. Дать герметику достаточное время на высыхание, что составляет не менее суток
Дать герметику достаточное время на высыхание, что составляет не менее суток
Обратить внимание на стыковочные швы между оборудованием и стеной, полом, потолком. Дать герметику достаточное время на высыхание, что составляет не менее суток
Подготовка к работе инструменты и материалы
Любые работы следует начинать с подготовки необходимого инструмента. Материалы для работы также следует выбирать, отталкиваясь от особенностей будущей конструкции. Если обобщить, то нужно следующее:
- трубы под канализацию с отводами и уплотнители;
- гидроизоляция;
профиль, крепежи и т. д.Чтобы выложить поддон, можно взять кирпич или блоки из керамзита. Для заливки поддона цементным раствором понадобится пластик, чтобы из него сформировать форму. Если ограждение будет кирпичным или блочным, то нужно будет подготовить:
- мастерок с молотком;
- миксер для раствора;
- строительный уровень.
Для пластиковых труб понадобится:
- паяльник;
- нож для труб;
- шуруповёрт.
Кроме того, нужно иметь под рукой:
- пистолет для герметика;
- рулетку;
- строительный угольник.
Следует помнить, что мало выложить поддон. Его нужно и облицевать. Для отделки, как правило, применяют плитку. Возможно, она потребует подгонки по размерам, поэтому нужно иметь плиткорез либо болгарку с кругом по камню.
Если устанавливаться будет заводской акриловый поддон, то нужны будут отвёртки, герметик.
Процесс установки душевой кабины
Сделать душевую кабину своими руками можно. Для этого нужен материал, инструмент и время. Это устройство экономит место в ванной и придает помещению совершенно новый внешний вид. Кабина бывает на поддоне и без него. В помещении с малой шириной вполне подойдет устройство со стеклянной дверкой без поддона.

Выглядит она довольно эстетично, но собрать ее бывает сложно. Дело в том, что нужно отводить использованную воду в канализацию. Для этого нужны трубы, расположенные ниже сливного отверстия. В современных квартирах это не всегда возможно. Тогда придется устанавливать поддон.
- На перекрытии обязательно выполняется гидроизоляция для качественной защиты пола от влаги.
- Стены из дерева после обработки гидроизолирующим составом следует выровнять водостойким гипсокартоном. От обычного облицовочного он отличается зеленым цветом.
- Прокладываются пластиковые трубы, по которым использованная жидкость будет уходить в систему канализации.
- Сверху все заделывается плиткой. Ее укладывают с небольшим наклоном в сторону сливного отверстия. По возможности эти работы выполняются внутри пола или непосредственно в основании поддона. После оборудования стока можно собрать душевую кабину своими руками.

Поддон можно приобрести в магазине в готовом виде. Для его установки не нужны особые знания и умения. Единственная трудность, которая может возникнуть при монтаже – это сооружение подиума. Сделать его проще всего из кирпича. После установки поддона место стыка оборудуется специальным бордюром. Такой поддон промышленного изготовления имеет свои преимущества:
- монтаж его производится легко и быстро;
- есть возможность регулировки высоты с помощью специальной конструкции ножек;
- отделочный бордюр идет в комплекте поставки;
- его можно монтировать прямо на деревянном основании, обработанном гидрозащитными средствами.
Отзывы потребителей о работе ванны с душевой кабиной очень хорошие. Но кабину следует выбирать тщательно. Нужно проверить крепление стенок и дверей, совпадение раструбов с трубами канализации в доме. Приобретать можно не всю кабину, а только отдельные ее части. Современные производители дают такую возможность и предлагают на выбор различные конструкции из:
- поликарбоната;
- стекла;
- стеклопластика;
- пластмассы.
Как установить душевую кабину в частном доме
Для установки оборудования нужны некоторые инструменты:
- дрель или перфоратор;
- отвертка или шуруповерт;
- шурупы, шпатели;
- молоток, плоскогубцы;
- мастерок, плиткорез;
- емкость для смеси, уровень,
- отвес, рулетка, карандаш.
Для монтажа кабины понадобятся и некоторые материалы:
- цемент высокого качества;
- песок, кирпич;
- краны, смеситель;
- душевая головка;
- сантехнические прокладки;
- трубы, муфты.
https://youtube.com/watch?v=F0H52y4KKJs
Подготовительные мероприятия
Перед тем, как сделать душевую своими руками – вне зависимости от типа и уровня самостоятельных работ – важно провести подготовку санузла:
- оценить состояние канализации и водопровода. Это касается стояков и лежаков (проходимость, наличие свищей и хомутов, уровень коррозии для металлических труб, состояние соединительных элементов), а также отводящих участков. Последние, скорее всего, придется заменить, поскольку схема прокладки коммуникаций в ванной комнате с установкой душевой изменится. Стояки и лежаки также желательно заменить на новые в случае неудовлетворительного состояния или провести реконструкцию;
- проверить состояние стен, потолка и пола. Если ремонт проводился недавно и установка душевой кабинки – единственное новшество, достаточно усилить гидроизоляцию пола и стен в месте монтажа. Если состояние требует коррекции, требуется удалить старое покрытие в месте будущей инсталляции, провести работы по гидроизоляции, подготовить поверхности к последующей отделке;
- выбрать оптимальный вариант размещения кабинки с учетом схемы прокладки коммуникаций.
Важно: чем более открытым будет душевой отсек, тем более тщательно следует проводить гидроизоляцию всего помещения. Электроприборы в таком санузле должны обязательно иметь защиту от влаги
Выбор места установки
Для больших квартир и частных домов проблем с выбором места нет. Основные требования к размещению — соответствие дизайну интерьера, возможность подвода коммуникаций. Устанавливают, кроме санузлов, в других помещениях. Проектируя дом, предусматривают возможность установки кабины.
Проект душевой кабины своими руками.
Труднее выбрать место в малогабаритных квартирах. Кроме санузла, установить больше негде, и то он небольшой площади. Убирают ванну, иначе поместить душ не получится. Остается больше пространства для стиральной машины, умывальника, переодевания. Для рационального размещения делают чертеж с указанием размеров помещения и оборудования.
Материалы для стен
В гидробоксе повышенная влажность, которая разрушает назащищенные стены. Они могут быть из любого материала, даже дерева, но его обязательно обрабатывают антисептиком, влагоотталкивающим составом. Выравнивают влагостойким гипсокартоном, наклеивают кафель.
Панели монтируют на обшивку. Ее делают из оцинкованного металлопрофиля для гипсокартона. Если используют деревянные рейки, обрабатывают антисептиком и влагоотталкивающим средством.
Перегородки можно построить из кирпича, камня. Если воспользоваться стеклоблоками, получится теплая и светлая кабинка. Среди других материалов поликарбонат, пластик, стекло. Можно комбинировать несколько видов, например кирпич и стеклоблоки.
Строим простой и надежный вариант душевой без поддона
В теории душ без поддона можно обустроить практически в любом месте ванной комнаты, но наиболее предпочтительным является перенос душевой зоны в угол.
В этом случае две стены с кафельной плиткой заменят часть стеклянного ограждения, достаточно будет одного стекла, установленного на уголках или хромированных стойках. Но сборку стеклянной ширмы для душевой можно будет выполнить только после окончания работ по обустройству душевого подиума.
Процесс обустройства душевой предусматривает пять основных этапов;
- Монтаж в нишах стены труб с горячей и холодной водой, установка смесителя и рассекателя — лейки для душа;
- Укладка напольной гидроизоляции, сборка и настройка сливной системы душевой;
- Отливка стяжки с уклоном под покрытие из кафельной плитки;
- Обустройство бортика, облицовка стен плиткой или мозаикой, затирка межплиточных швов водостойким составом;
- Установка в душевой защитной стеклянной ширмы.
Совет! Для изготовления ширмы из стекла можно использовать монолитный поликарбонат или стеклянные панели шириной 90 см.

Обычное оконное стекло, витражные стеклянные панели для межкомнатных дверей для ограждения душевой не подходят. Вместо того чтобы резать стекло для душевой без поддона руками, лучше купить готовые листы некитайского производства со шлифованными торцами и наклеенной пленкой. Такое стекло подвергается дополнительной обработке, поэтому намного безопаснее, чем оконные листы, даже склеенные в пакет. Стекло имеет минимальный коэффициент теплового расширения, поэтому его можно вставить в рамку из алюминиевого профиля или приклеить к вертикальным стойкам.

Подготовка гидроизоляции пола к сборке поддона душевой
Наиболее важной проблемой постройки душевой, требующей повышенной аккуратности и щепетильности, считается правильное построение гидроизоляции под плитку поддона. Типовое устройство гидроизоляции приведено на схеме ниже

Где бы и как бы не строилась душевая зона, для подиума или поддона всегда применяется три основных элемента:
- Двухслойная изоляция, даже если для затирки кафельной плитки используется эпоксидная или полиуретановая смола;
- Усиленный слой теплоизоляции, для бетонных полов без утепления основания лучше использовать экструдированный пенополистирол, для деревянных полов и квартир на втором и выше этажах можно применять более дешевую и надежную керамзитную засыпку.
Установка поддона обычно выполняется до укладки плитки на стены. Но в случае необходимости облицовку кафелем можно выполнить до изготовления подиума с бортами, оставить только незакрытым нижний ряд плитки на размер будущей душевой. На последнем этапе, после отделки стяжки плиткой или мозаикой, можно будет завершить отделку стен.
Проще всего установить поддон в углу, впритык к кирпичной или бетонной оштукатуренной стене ванной комнаты, в этом случае проблема гидроизоляционного слоя решается достаточно просто и с наименьшими затратами. Потребуется только правильно сделать в душевой без поддона гидробарьерную обмазочную изоляцию основания и нижней кромки стен на высоту в 15-20 см.

Если поддон под душевую приходится устанавливать впритык к облицовке из водостойкого гипсокартона, нужно будет использовать полимочевинную, эпоксидную или полиуретановую жидкую гидроизоляцию. Потребуется проклеить углы и стыки эластичной лентой, обработать полимерной массой в два слоя стены и пол, обшитые гипсокартоном.

Работы по обустройству поддона душевой начинаются с обустройства гидроизоляции нижнего слоя. Предполагается, что пол изготовлен бетонной стяжкой, в стене уложен и выведен отвод на канализационную трубу в душевой.
Если основание пола деревянное, нижний слой гидроизоляции можно выполнить из обычной толстой полиэтиленовой пленки или полимерной мастики. Поверх пленки укладывается бетонная стяжка, штукатурятся примыкающие участки стен. Далее наносится двойной слой обмазочной изоляции Cerezit CR65, и можно устанавливать сливной трап. При сборке трапа нужно будет выровнять сливные углы и высоту уклона. Корпус трапа фиксируют с помощью гипсовой или клеевой массы.

Совет! Прежде чем перейти к следующему этапу сборки поддона душевой, необходимо проверить эффективность ухода воды в канализацию, залив 3-5 литров в сливное отверстие.
Если проблем нет, можно переходить к укладке утеплителя и обустройству стяжки поддона под плитку.
Какие элементы использовать, покупные или сделанные своими руками
Если вы хоть немного представляете устройство сантехнического оборудования, проблем возникнуть не должно. Можно частично использовать уже готовые детали. Это значительно ускорит сроки работ, но поставит вас в рамки стандартных размеров деталей, которые можно найти в продаже.
Вы можете использовать заводской поддон или ванную. В этом случае остаётся только решить вопрос с гидроизоляцией стен по периметру
Можно выполнить поддон своими руками и купить только дверь или готовые стенки.
Вариантов много, выбирайте для себя оптимальный. Но имейте ввиду: собственноручное изготовление душевой кабинки не будет копеечным. В любом случае, придётся потратиться на материалы, причём, на этом лучше не экономить. Использование некачественных материалов заставит вас заплатить за удовольствие дважды.
А что насчет аксессуаров?
А здесь вы должно особое внимание уделить такому важному элементу кабинки, как душевой смеситель – пожалуй, самое «слабое звено» всей ванной комнаты, в особенности, если речь идет о деревянном доме. Как правило, функциональность смесителя заметно затрудняется, если он засоряется различным мусором или, как вариант, выходит из строя картридж – в результате кран будет шуметь или протекать. Как следствие – при дальнейшей эксплуатации данное устройство быстро приходит в негодность
Поэтому рекомендуем отдавать предпочтение только тем вариантам, конструкция которых позволяет произвести ремонт без каких-либо особых трудностей
Как следствие – при дальнейшей эксплуатации данное устройство быстро приходит в негодность. Поэтому рекомендуем отдавать предпочтение только тем вариантам, конструкция которых позволяет произвести ремонт без каких-либо особых трудностей.
И неудивительно, ведь при использовании водопровода картридж нередко засоряется разного рода мелкими примесями, из-за чего сам смеситель может выходить из строя. Те же смесители, в которых применяется картридж, обладают неоспоримыми достоинствами, ознакомимся детальнее с самыми важными из них.
- Это надежные и долговечные устройства.
- Ими удобно управлять, более того, они могут «похвастаться» привлекательным дизайном и компактностью.
- При необходимости вы вполне сможете сменить старый картридж на новый. При этом следует помнить, что порой возникают трудности с совместимостью данного элемента, следовательно, отдавайте предпочтение картриджу того же изготовителя, что и смеситель.
Что же касается недостатков подобного рода конструкций, то их немного, точнее, всего один – однорычажный душевой смеситель может приходить в негодность вследствие выхода из строя главной его детали. Отремонтировать картридж точно не получится, единственный выход – установить новый элемент.





































