Содержание
- 1 Коптильня из холодильника: пошаговая инструкция
- 2 Большой вариант
- 3 Практика
- 4 Как сделать коптилку горячего копчения своими руками
- 5 Процесс изготовления
- 6 Чертежи и схемы для шкафа
- 7 Как самому сделать коптильню горячего копчения для рыбы
- 8 Создаем коптильню своими руками
- 9 Коптильня холодного копчения ИЗ БОЧКИ: 14 лучших идей
- 10 Создаем чертеж и план работы
- 11 Подготовка дров
Коптильня из холодильника: пошаговая инструкция
Старый бытовой охладитель, от которого давно хотелось избавиться, может получить «вторую жизнь» и принести владельцу пользу. Это практически готовая коптильная камера, в которой уже есть полочки для продуктов и плотно закрывающаяся дверца.
Устроить коптильню холодного копчения из холодильника для домашнего умельца не составит большого труда. Потребуются:
- 2 стальных трубы — одна для дымохода, другая для отвода дыма;
- топка или дымогенератор;
- кирпичи или блоки для фундамента;
- холодильник, лучше советского образца с металлической внутренней обшивкой.

Холодильники более нового поколения тоже можно использовать. Рекомендуется убрать пластиковые внутренности, оставив только металл. Для подвешивания или раскладки продуктов понадобятся крючья и решетки. В советских охладителях пригодятся старые принадлежности.

Этапы изготовления коптильни из холодильника:
- Подготовить агрегат — слить фреон, удалить пластиковую обшивку, закрепить приспособления для навешивания крючков, установки решеток.
- Для сбора стекающего жира изготовить металлический поддон на ножках.
- В дне холодильника прорезать отверстие для дымохода. Он должен вставляться максимально плотно.
- В верхней части камеры проделать выходное отверстие для дымовой трубы.
- На ровной площадке выложить фундамент из кирпича или блоков либо закрепить прочную подставку.
- Установить холодильник на постаменте, чтобы создать необходимую разницу высот.
- Подключить коптильню с помощью трубы к топке или дымогенератору.
- Провести пробный запуск.

Для регулирования подачи дыма и интенсивности тяги дымоход оборудуют заслонками или клапанами. Аналогичным способом можно устроить коптильню холодного копчения из бочки, стального короба или трубы большого диаметра.
Большой вариант
Советы по возведению большой коптильни:
- Устанавливаем сооружение по типу домика небольших размеров, в котором будет полноценное помещение с печкой. При подобной планировке дым от объемного помещения с печкой будет поступать в здание. При холодном методе копчения для поступления дыма используется раздельный генератор.
- Для обеспечения качественного копчения продуктов еще на начальных этапах планировки установки предусматривайте наличие окон для вентиляции.
- Раз уж возникла необходимость в большой коптильне, готовиться будет много пищи, а значит, и хранилище для сырья (дров/опилок) должно быть также объемным.
- Можно помещать поддон, чтобы жир попадал на него, а не на продукты (большое количество жира, шлаков, которые будут свободно стекать в коптильню, спустя время вызовет неприятный запах, что передастся и на еду, готовящуюся в конструкции).

Практика
Для того, чтобы собрать полностью коптильню из холодильника, понадобится буквально час времени, минимальное количество дополнительных материалов и самые простые инструменты, которые есть в каждом доме. Для того, чтобы сборка не отняла много времени, стоит заранее подготовить все, что может понадобиться во время монтажа устройства.

Из материалов для создания самодельной коптильни понадобится непосредственно корпус холодильника, а также металлическая труба, которая будет использоваться для создания дымохода (достаточно длины четыре метра), кирпич или старая электрическая плитка для топки. Из инструментов могут потребоваться дрель, резак по металлу, лопата, сварочный аппарат, горелка, наждачная бумага.
Для обустройства коптильного шкафа необходимо выполнить следующие действия.
- Сделать отверстия для решеток, на которые будут выкладываться подготовленные заранее продукты.
- На потолок коптильного шкафа крепятся крючки, изготовленные из нержавейки. С их помощью будет удобно коптить продукты в подвешенном состоянии.
- В потолке дополнительно делается вентиляционное отверстие, которое будет использоваться во время разжигания щепы.
- В днище конструкции делается отверстие такого же размера, как и диаметр используемой для дымохода трубы.
Предлагаем ознакомиться Отошла, отклеилась резинка на двери холодильника
Чтобы коптильня имела привлекательный внешний вид, стоит удалить все ржавые пятна или потеки с помощью наждачной бумаги, металлической щетки и специальных чистящих препаратов.
Трубу дымохода нужно приварить с помощью сварочного аппарата. Непосредственно под вентиляционным отверстием стоит установить вентилятор со средней мощностью. На самое дно коптильного шкафа ставится емкость, в которую будет капать жир во время обработки продуктов.
Особенно важно это в холодное время года. Чтобы можно было наблюдать за процессом копчения и при этом за каждым разом не открывать дверцу, одна из стенок холодильника оборудуется огнеупорным стеклом. В коптильне холодного копчения из холодильника, топка будет находиться отдельно от коптильного шкафа
Для обустройства костра можно использовать несколько разных вариантов
В коптильне холодного копчения из холодильника, топка будет находиться отдельно от коптильного шкафа. Для обустройства костра можно использовать несколько разных вариантов.
- Ненужная емкость из толстого железа. Ее необходимо зарыть в землю таким образом, чтобы она находилась немного ниже уровня коптильни. За счет этого дым будет постепенно подниматься вверх в коптильный шкаф, а не рассеиваться в разные стороны.
- Огнеупорные кирпичи. Ими выкладываются стенки ямы так, чтобы осталось место для костра.
- Оцинкованный железный лист. Он кладется на дно ямы и на нем можно разжигать костер.
Каждый из вариантов одинаково хорош, поэтому неважно, какой метод обустройства топки будет выбрано. Главным моментом есть то, что нужно правильно сделать дымоход, чтобы дым остывал до нужной температуры прежде, чем попасть непосредственно в коптильню
Дымоход
Для того, чтобы сделать дымоотвод, в потолке коптильного шкафа делается отверстие с таким же диаметром, как и используемая труба. В само отверстие вставляется вентилятор и затем с помощью сварочного аппарата приваривается непосредственно сама труба. Не обязательно брать трубу слишком большого диаметра, ведь тогда будет выходить очень много дыма, а процесс копчения затянется еще дольше.
Коптильня из холодильника не будет эффективной, если в ней не будет никаких дополнительных приспособлений. Важную роль играют качественные металлические решетки или крючки, на которые раскладываются заранее подготовленные к копчению продукты.
Предлагаем ознакомиться Сделать светодиодную подсветку для рассады своими руками
Решетки и крючки
Затем старые решетки, которые использовались в комплекте с холодильником, необходимо обжечь горелкой. Это позволит полностью удалить всю краску и ржавчину. Дополнительно решетки зачищаются с помощью железной щетки. С сделанные заранее отверстия устанавливаются пазы. На них будут крепиться сетки из металла, шампуры для приготовления домашних копченостей.
Если говорить о крючках, то их стоит прикрепить к верхней стенке коптильного шкафа. С их помощью будет очень удобно коптить рыбу или достаточно большие куски мяса.
Ставить их нужно примерно на том уровне, где будут располагаться обрабатываемые продукты.
https://youtube.com/watch?v=_cbNR42Uumg
Как сделать коптилку горячего копчения своими руками
При навыках работы со слесарным инструментом аппарат для копчения легко сделать самостоятельно.
В качестве корпуса используются огнетушители, бочки и другие ёмкости. Простой в изготовлении является коптильня из холодильника, особенно для холодного копчения.
Простая коптильня
Проще всего сделать коптильню горячего копчения из конусного ведра. Такая форма облегчает установку на необходимой высоте решёток с копчёностями. Вместо поддона для жира используется старая миска, которая ставится на подставке из консервной банки. В её стенках прорезаются отверстия для выхода дыма, а сама банка переворачивается вверх дном
Схема простой коптильни
Кирпичная коптильня
Если позволяет место и необходимо регулярно готовить большое количество продуктов, то имеет смысл сделать стационарную коптильню горячего копчения из кирпича.
В этом сооружении камера с продуктами расположена над очагом и отделена листом толстого металла.
Есть два варианта этой конструкции:
- В разделяющем листе сверлятся отверстия для дыма, а вверху камеры находится дымоход. Эта конструкция проще, но дым более горячий, а дрова должны быть только лиственных пород.
- В разделяющем листе отверстия отсутствуют и на него насыпаются опилки и щепа. В очаге есть свой дымоход и топить его можно любыми горючими веществами.
Компоненты кирпичной коптильни
Электрокоптилка
Электрокоптильня отличается от обычной способом нагрева. Вместо костра в ней дно нагревается электронагревателями. Это даёт возможность в устройствах среднего размера устанавливать внутрь корпуса электроплитку, а на неё ставить ёмкость с опилками, например, старую сковородку.
Схема электрокоптилки
Бытовая коптильня
Приготовить домашние копчёности можно не только на даче, но и на кухне городской квартиры. Для этого нужна малогабаритная коптильня с дымоотводящим шлангом. Делается такая коптильня из нержавейки.
Греется такое устройство на газу. Размеры на чертеже коптильни горячего копчения определяются размерами газовой плиты и составляют 450х300х250 или 500х300х300 мм. Конструктивно это металлическая коробка из углеродистой, а лучше нержавеющей стали толщиной 2 мм с крышкой и ручками — по бокам корпуса и сверху крышки. Внутри на подставке устанавливается собранные в одну конструкцию поддон для жира и одна или две решётки.
В крышке имеется дымоотводящий патрубок 1/2″, на который одевается обычный садовый шлаг. Этот шланг высовывается в форточку или вставляется в вентиляционный канал.
При работе на дно насыпаются опилки, устанавливается поддон и решётки, устройство закрывается и ставится на газовую плиту. Нагретый дым идёт по шлангу в форточку, а в щели между крышкой и корпусом подсасывается воздух из кухни. Поэтому в помещении запах практически отсутствует. Для полной ликвидации запаха необходима коптильня с гидрозатвором.
Составляющие бытовой коптильни
Коптильня горячего копчения для квартиры
Большинство устройств для копчения дымят при работе, поэтому они используются только на открытом воздухе. Но есть конструкция, которую можно установить даже на кухне многоэтажного дома. Это коптильня с гидрозатвором.
Это устройство похоже на малогабаритную бытовую коптильню с некоторыми отличиями:
- крышка на 10 мм больше и имеет загнутые края;
- к верхней части корпуса приварен уголок 15х15мм;
- в образовавшийся жёлоб наливается вода и опускаются края крышки.
Образовавшийся водяной затвор не позволяет дыму выходить на кухню. Для большей защиты помещения от запахов в крышке находится патрубок для дымоотводящего шланга.
Коптильня горячего копчения
Коптильня полугорячего копчения
Кроме холодного и горячего есть полугорячее копчение. Оно производится при температуре 50-70 градусов. Длительность приготовления составляет около 12 часов.
Конструктивно это обычная коптильня с дымогенератором. Отличие в длине подводящего дымохода. Он делается такой, чтобы дым не успевал остывать и поступал в коптильную камеру нагретый до необходимой температуры.
Если удлинить дымоход, то коптилку полугорячего копчения легко превратить в коптильню холодного копчения своими руками.
Коптильня для полугорячего копчения
Процесс изготовления
Прежде чем приступать к изготовлению коптильни в домашних условиях, необходимо сделать чертежи будущего строения. Только после этого можно с помощью разработанной схемы самому построить коптильню для холодного копчения. Для начала необходимо определиться с габаритами конструкции, а затем подобрать для нее место.
Выбрав коптильню из кирпича, необходимо сделать проект данной конструкции. Это поможет сэкономить время и выбрать правильное место для установки. Участок должен иметь протяжность в четыре метра, причем лучше, если место будет с уклоном, чтобы дымоход проходил под нужным углом. Сделав необходимые расчеты, можно рыть траншею.
Популярные статьи Ангелочек своими руками из ниток. ангелок в шаре из нитей
Для начала необходимо заложить фундамент. Затем на том месте, где будет расположена коптильня, надо убрать грунт. Яма при этом должна быть глубиной до 60 сантиметров. Затем в ней устанавливают опалубку, которая должна быть выше краев на 25 сантиметров. Делается армирование, а в центре ямы ставится обычное ведро, чтобы после заливки бетона получилось углубление.
Для стен используется красный кирпич. Величина коптильни полностью зависит от пожелания хозяина. В середине можно сделать небольшое окошко с выходом на северную сторону, чтобы прямые солнечные лучи не навредили продуктам.
Крыша кирпичной коптильни легка и удобна в обустройстве. Чтобы ее сделать, необходимо соорудить стропильную систему. На них укладываются или плиты ОСБ, или влагостойкая фанера. И только тогда на ровную основу укладывается черепица.
Для сооружения топки можно использовать огнеупорный кирпич или уже готовую печь из металла. Понадобится огнеупорная труба для отвода дыма из топки к камере копчения. Ее диаметр должен быть очень большим, чтобы дым медленно шел и, остывая, оставлял на ее стенках частички копоти. Над отверстием, где выходит дым, ставятся решетки и подвешиваются продукты, которые необходимо закоптить.
Чтобы соорудить деревянную коптильню, прежде всего нужно выкопать траншею на два штыка в глубину. В ней должны разместиться труба, камера для топки и сама коптильня. Дым, попадая в яму, задерживается там и очищается, а затем поднимается в коптильню.
Дверку на топку нужно изготовить чугунную и надежно закрывающуюся. Ее основание делают из кирпича, а стены выводят немного вверх над землей. Затем на него ставится деревянная конструкция. Траншею, где находится дымоходная труба, засыпают землей, а затем хорошо трамбуют. Это необходимо для того, чтобы труба и дым охладились.
Из брусков из дерева делают основание для камеры. Затем к нему прибиваются ровные доски, которые должны прилегать очень плотно друг к другу. Это делается для того, чтобы дым не выходил через щели. Затем в крыше делается отверстие, в которое выводится труба.
Любая коптильня, даже изготовленная на скорую руку, должна состоять из дымогенератора, канала для дыма и емкости, используемой для продуктов копчения. Если находясь в походе или на турбазе захотелось копченостей, можно сделать коптильню с помощью прутьев и полиэтиленовой пленки.
Конструкция эта совсем не сложная, однако ее нужно правильно сделать. Каркас строится из жердей, сверху набрасывается пленка, а продукты для копчения можно разместить на шампурах. Угли от перегоревшего костра послужат прекрасным источником тепла. Для дыма подойдут свежие ветки с листвой. Соорудить очаг можно, вырыв яму в земле или взяв для этого обычное ведро. Преимущество такой коптильни – это быстрота сооружения и отсутствие покупного материала. Недостаток состоит в том, что необходимо постоянно контролировать очаг.
Такой вариант коптильни прекрасно подходит для тех, кто выезжает на дачу на время и не хочет выстраивать полноценную коптильню у себя на участке.
Также можно обратить внимание на такое сооружение, как коптильня из бочки. Для ее основы прекрасно подойдет дерево или другой материал. Нельзя использовать лишь пластмассу
У бочки снимают дно для свободного прохождения дыма. В нижней ее части нужно сделать отсек, куда будут укладываться дрова. Здесь понадобятся петли, на которые будет надета дверка. Так отсек сможет закрываться
Нельзя использовать лишь пластмассу. У бочки снимают дно для свободного прохождения дыма. В нижней ее части нужно сделать отсек, куда будут укладываться дрова. Здесь понадобятся петли, на которые будет надета дверка. Так отсек сможет закрываться.
В дне такой бочки делается несколько отверстий, которые послужат поддувалом, а также местом для удаления из топки золы. На высоте одной трети бочки нужно приварить железный лист, который послужит дном для коптильной камеры. Чтобы оно прослужило подольше, толщина листа должна быть около 4 миллиметров.
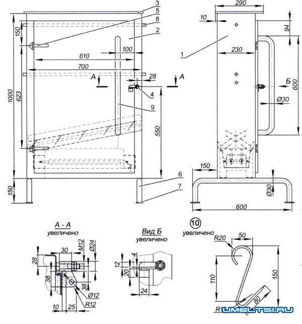
Чертежи и схемы для шкафа
На рисунке приведена схема низкотемпературной коптилки, пригодной для установки в частном доме, на даче или загородном участке. Необязательно точное соблюдение размеров, но длину дымохода меньше двух метров лучше не делать.

- Топка.
- Щепа.
- Дымоход.
- Кирпичная кладка.
- Железная решётка.
- Деревянная или металлическая ёмкость.
- Полуфабрикат.
- Негерметичная крышка (в данном случае мешковина).
- Дверка топки.
Проходная коптилка на склоне

- Источник дыма.
- Дымоход.
- Коптильная ёмкость.
Для схемы горячего копчения, приведённой ниже, подойдёт металлический корпус (шкаф или бочка).

Чертёж электрокоптилки

Второй вариант чертежа коптилки с размерами

Простой вариант коптильного шкафа из металлической бочки

Деревянный каркас с поддоном из металла

Простейший схематический чертеж деревянной камеры для копчения из вагонки
Как самому сделать коптильню горячего копчения для рыбы
Изготовление коптильни для рыбы сводится к обустройству шкафа. В качестве топки используют мангал, электропечь, газовую плиту. Чтобы соорудить наиболее функциональную конструкцию горячего копчения, потребуются инструменты и материалы:
- три пустых газовых баллона;
- сварочный аппарат;
- болгарка;
- металлическая труба диаметром 8-10 см;
- металлический профиль для ножек изделия.
Емкости из баллонов можно заменить на камеры из бочек. Этапы работ:
- Из металлического прута изготавливают ножки.
Высота ножек 60-78 см, зависит от личных предпочтений хозяина
- Из одного баллона изготавливают центральную часть – мангал. Для этого намечают маркером место для крышки, вырезают при помощи болгарки.
По бокам проделывают отверстия для вентиляции, с другой стороны выпиливают надрезы для установки шампуров
- На торцах вырезают отверстия для монтажа дымоходной трубы.
Прикладывают трубу, намечают ее размер и отрезают
- Делают топочную камеру из половины второго баллона. Для этого баллон разрезают на две части, размечают крышку и вырезают ее. Приваривают ножки.
Листом железа толщиной 0,3-0,5 см закрывают торец, оставляя место соединения камер незакрытым
- Детали крепят между собой, топочную камеру крепят на 20 см ниже мангала.
Элементы приваривают друг к другу отрезком трубы длиной до 10 см
- Готовят камеру для горячего копчения рыбы. Отрезают днище у первого баллона и приваривают остаток от второго. Получают шкаф. Определяют место для дверцы. Делают отверстие. Внутри конструкции приваривают болты, на которых будет установлена решетка. На крышке крепят трубу 50-70 см, которая является дымоотводом. К ней приделывают заслонку для регулировки температуры.
Сверху приваривают крюки из металлического прутка сечением 0,5-0,8 см
- Все элементы соединяют в единую конструкцию.
При желании сооружение снабжают колесами
Многофункциональная печь готова. Такое сооружение позволяет делать барбекю, шашлыки, жарить плов, установив казан на топку.
Коптильня для рыбы своими руками на видео:
Создаем коптильню своими руками
Для создания мини шедевра желательно иметь опыт в сварочных работах, уметь реализовывать чертежи, пользовательские навыки со слесарными инструментами в этом деле приветствуются.
Вариантов поделки коптильного шкафа очень много, его делают из листов металла (сваркой), из готовых бывших в употреблении бочек, неисправных холодильников, возводят из кирпича. Широко используется домашняя коптильня для плиты даже в многоэтажных городских домах!
Относится такой тип к горячему виду копчения, очень важно при этом помнить о правилах пожарной безопасности. Итак, к примеру источником подачи тепла может быть газовая плита или электрическая плитка
В данном случае извлечение дыма из коробки коптильни часто производится по резиновой трубке отвода в вытяжку или в форточку. Этот способ можно применять при минимальных объемах продукта, а с масштабным изготовлением копченостей рекомендуется использовать стационарные установки, с большими размерами.
Коптильня холодного копчения ИЗ БОЧКИ: 14 лучших идей
Коптильня холодного копчения из бочки. Что может быть проще. Сам процесс лёгкий, средств никаких вкладывать не нужно, только силы и энтузиазм. Сначала вырываем траншею с выходом к бочке, обкладываем её кирпичом, прикрываем шифером и засыпаем землёй. Дымоход готов. С бочкой тоже всё предельно просто. Вырезаем отверстие к выходу в «дымоход». Внутри устанавливаем решетки или палки, трубы для крюков. Закрываем крышкой и вуаля.
Вот как это выглядит на практике. Металлический лист у места, куда будем класть щепки, нужен чтобы не давать пламя разгораться.
О чём я и говорил. Поднос для небольших кусочков, крюки для больших.
Можно обойтись и без траншеи, заменив её железной трубой.
Универсальный вариант для холодного и горячего копчения. Красиво, у автора руки золотые.
Если что, имеется ввиду собранные готовые комплектующие.
Рабочий вид. Опять же, ничего сложного.
На колёсах… Что дача аккуратная, что коптильня. Конечно мне не завидно. Нет. Наверное…
Прутья или стержни можно устанавливать, как угодно.
Мини вариант. Правда расстояния маловато. При таком варианте вряд ли получится поддерживать 25-40 градусов.
Небольшая инструкция что и как делать с подготовленными деталями.
Менее эстетично, но за то практично. Такое я уважаю. Без излишеств.
Подборка с форума садоводов-любителей. Чем бы дитя не тешилось как говорится.
Опять же, универсальный вариант. Подойдёт для всех видов копчения.
Мажорить – так на все деньги.
Последний вариант конечно самый видный, но мне такой не нужен. Мне нужен практичный. Как я показывал ранее. Почему оставил его в статье? Всё просто. Для ознакомления. Вдруг кто-то захочет их делать на заказ. Как видно, ничего сложного или страшного нет. Сделайте коптильню сами и все друзья будут облизывать рты, а их жёны пить кровь, за то что у них такого нет. Удачи и хорошего отдыха!
Читать полностью (ссылка)
Создаем чертеж и план работы
Если уже решено построить коптильню своими руками, независимо от ее размера, продуманные чертежи и план – необходимый шаг. Работу легче расписать поэтапно, примерный план будет выглядеть так:
- Подготовка участка к заливке фундамента.
- Приобретение инструмента и строительных материалов.
- Установка фундамента.
- Кирпичная кладка.
- Если выбрана коптильня холодного копчения из кирпича необходимо возведение подвода для дыма.
- Тестирование готовой конструкции.
Материалы, которые потребуются для постройки кирпичной коптильни.
При выборе кирпича лучше отдать предпочтение огнеупорной или керамической продукции. Силикатный кирпич не подходит для построек такого типа. Также понадобятся:
- Дверки и крышка из нержавеющего металла.
- Цемент.
- Лопата, уровень, шпатель и емкость для замешивания раствора.
- Решетка для продуктов из металла (можно использовать прутья).
Закладываем фундамент и кладку для коптильни
Бетонную подушку создают с помощью цельной бетонной плиты или собственноручно из стальной сетки, щебня, песка и бетона следующим образом:
- Копаем яму, глубиной 20-30 см.
- На дно укладывается щебенка и песок, утрамбовываем и выравниваем.
- Устанавливается сетка, поверх которой заливают бетон.
- Стройку начинают только после полного высыхания бетона (1-3 дня), желательно накрыть фундамент рубероидом или другим гидроизолирующим материалом.
Процесс кладки кирпича
Кладку делают, промазывая раствором тычок (малой боковой стороны кирпича), что позволяет заполнить вертикальные швы, так как при укладке камень сдвигается к стыку. Перед этим наносится раствор на фундамент. При появлении излишков раствора (при надавливании кирпича), остатки убирают мастерком.
Рис 2. Кладка основания
Для того чтобы кладка была ровной, кирпич слегка ударяют резиновым молотком. Использование строительного уровня обязательно для соблюдения ровных углов постройки. Кладка происходит по рядам, после каждого замеряется высота постройки, чтобы избежать неровности. Чтобы коптильня своими руками из кирпича приобрела эстетичный вид, стоит воспользоваться несколькими советами:
- Швы между кирпичами не должны превышать толщиной 12 мм.
- Выкладка нового ряда должна обязательно начинаться с угла.
- После завершения работы швы затирают, для придания аккуратного внешнего вида.
Укладка дымохода
Разница между коптильнями холодного и горячего копчения видна в длине дымохода. Так как для процесса холодного копчения требуется остывший дым, дымоход должен иметь необходимую длину. Когда устанавливается коптильня горячего копчения, дымоход должен быть коротким. С одной стороны такой дымоход ограничен очагом (топкой), с другой – камерой для копчения.
Рис 4. Коптильная камера и монтаж дымоходов
Камера для копчения
Камера для копчения продуктов может иметь круглую, овальную или прямоугольную форму (высота до 1,5, размер 1 кв. м). Для возведения такой камеры используют глиняный раствор (или цемент), постепенно укладывая на него кирпич ребром. Почему используют глину? Потому что при нагревании она не выделяет вредных веществ, а значит коптилка не испортит продукт. В верхней части устанавливаются прутья или решетка для продуктов, в нижней части можно установить мешковину, которая будет служить своеобразным фильтром для дыма. На дно камеры желательно положить поддон для сбора жира.
Рис 5. Предфинальная готовность: установка дверц, решеток и пробный запуск
Оборудование топки
Топку устанавливают на другом конце дымохода, ее можно изготовить из толстого листового железа, необходимо проследить, чтобы под ней имелось поддувала для получения тяги и сбора золы. Снаружи топку обкладывают кирпичом.
Чем отличается по конструкции коптильня холодного копчения своими руками от «горячей»?
В конструкции коптилен разных видов имеются отличия. В процессе горячего копчения необходимо установить очаг непосредственно под камерой копчения, при холодном – очаг располагается в стороне, а к камере устанавливают дымоход.
Подготовка дров
От состава щепы во многом зависит вкус и запах конечного продукта. Разнообразное готовое сырье для копчения продается в магазинах, но приготовить дрова можно самостоятельно.
Если в саду проводятся работы по формированию крон и обрезке плодовых деревьев, не нужно спешить выбрасывать ветки и сучья. После хорошей просушки их измельчают и используют по назначению. Особенно аппетитный аромат приобретают копчености от стружек яблони.

Щепа должна быть сухой и чистой
Виноградную лозу для копчения и приготовления шашлыка часто применяют на Кавказе. Дым от тлеющей лозы придает деликатесу нежный фруктовый вкус и золотистый цвет. На дачных и приусадебных участках более северной зоны эта теплолюбивая культура тоже довольно распространена. При ежегодной обрезке остается много ненужных веток, которые можно высушить, измельчить и использовать в смеси с древесными опилками.

Для придания пряных ноток в щепу добавляют веточки можжевельника, рябины, акации. Они не только обогащают продукт ярким ароматом, но и дополнительно оказывают бактерицидное действие.



























